


Storhaug og Partnere AS har gleden av å presentere Langsundveien 1313
Velkommen til Ringvassøya og fine Langsundveien 1313, en stor, innholdsrik og velholdt enebolig med godkjent utleiedel.
Boligen er tilbaketrukket fra veien og nyter rolige omgivelser omkranset av flott natur.
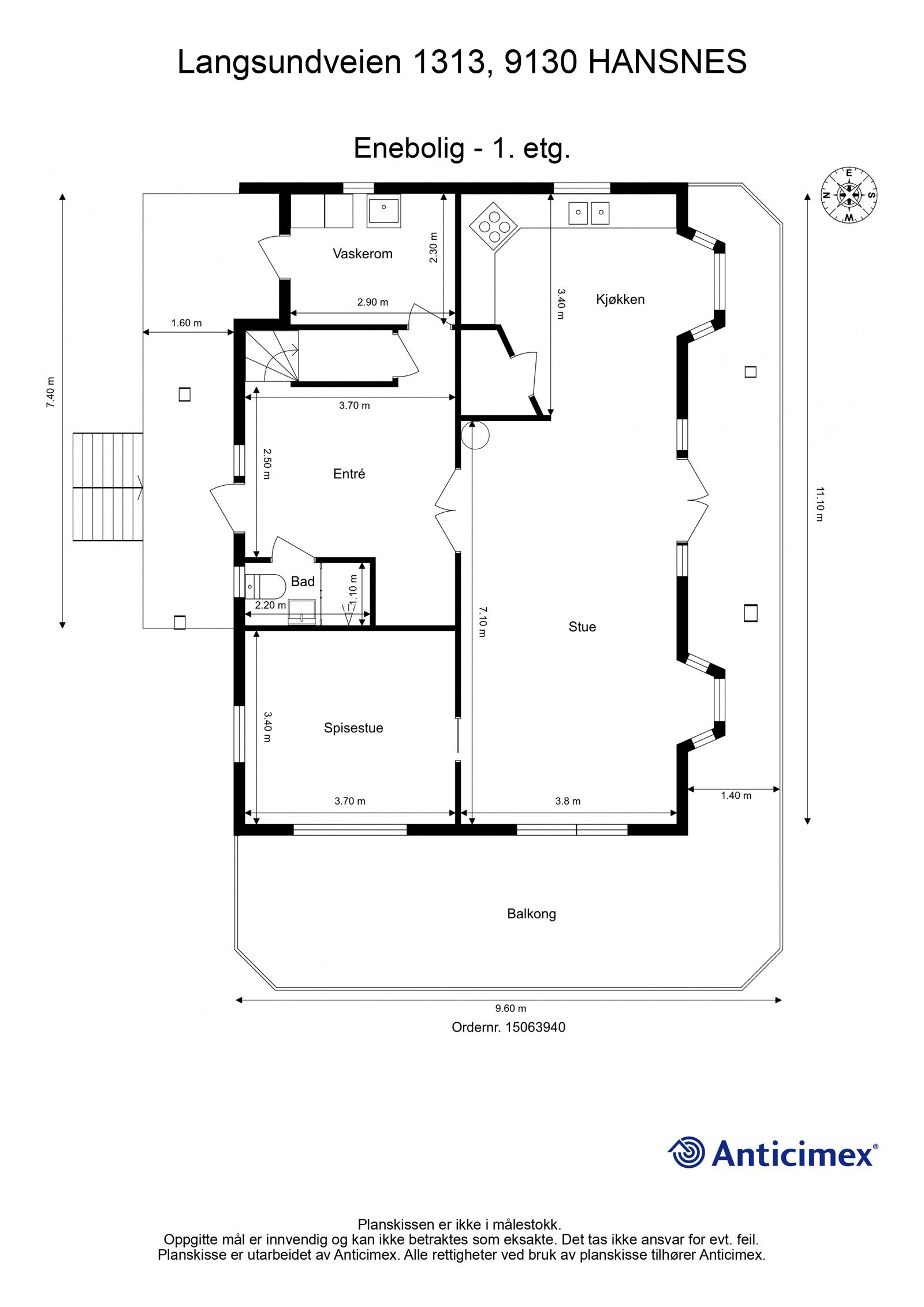
Langsundveien 1313 strekker seg over 3 etasjer hvor du i hoveddelen har inngangsparti, gjestetoalett, vaskerom, stor stue, kjøkken og spisestue.
2. etasje består av 4 soverom, lekkert bad og loftsstue.
U. etasje er i helhet dedikert til en stor 3-roms utleieleilighet som bringer inn gode inntekter.
Eier har gjort flotte oppgraderinger og boligen fremstår innbydende og koselig.
Store veranda og platt-arealer hvor man kan nyte sol og utsikt.
Stor frittstående redskapsbod på hele 15m2
Dette er en sjelden mulighet å skaffe deg en flott og komplett enebolig ca.12km fra Hansnes og 5mil fra Tromsø.
Salgsoppgaven beskriver vesentlig og lovpålagt informasjon om eiendommen
Se komplett salgsoppgaveLangsundveien 1313
på annonsen
prisantydning per kvadratmeter
Pris per m² ligger 1 214 kr under snittet for eneboliger i Karlsøy.
Grafen viser antall eneboliger solgt i Karlsøy siste året fordelt på pris per m² - totalt 16 eneboliger
Antall boliger
Kvadratmeterpris tilsvarer prisantydning pluss fellesgjeld per kvadratmeter (p-rom eller BRA-i). Prisene i grafen er avrundet til nærmeste 1000 kr.












Annonsene kan være mangelfulle i forhold til lovpålagt opplysningsplikt. Før bindende avtale inngås oppfordres interessenter til å innhente komplett informasjon fra meglerforetaket, selger eller utleier.