Bildegalleri

Velkommen til Steindalsvegen 5! Foto: Ivar Flagestad.
Blekalia
Ny pris! Trivelig enebolig i Steindalsvegen på Otta med flott utsikt mot sentrum. Biloppstillingsplass like ved boligen.
Prisantydning1 100 000 kr
Nøkkelinfo
- Boligtype
- Enebolig
- Eieform
- Eier (Selveier)
- Soverom
- 2
- Internt bruksareal
- 125 m² (BRA-i)
- Bruksareal
- 138 m²
- Eksternt bruksareal
- 13 m² (BRA-e)
- Etasje
- 2
- Byggeår
- 1959
- Energimerking
- G - Rød
- Rom
- 4
- Tomteareal
- 811 m² (eiet)
Fasiliteter
Barnevennlig
Garasje/P-plass
Hage
Kjæledyr tillatt
Offentlig vann/kloakk
Peis/Ildsted
Rolig
Sentralt
Utsikt
Turterreng
Visning
Vi legger til rette for gode visninger med tid til alle. Kontakt megler på telefon for å avtale tidspunkt eller via visningspåmeldings-linken. Det vil ikke bli avholdt visning uten påmelding. Tidligste akseptfrist for bud settes til mandag 18. november kl 12.00
VisningspåmeldingOm boligen
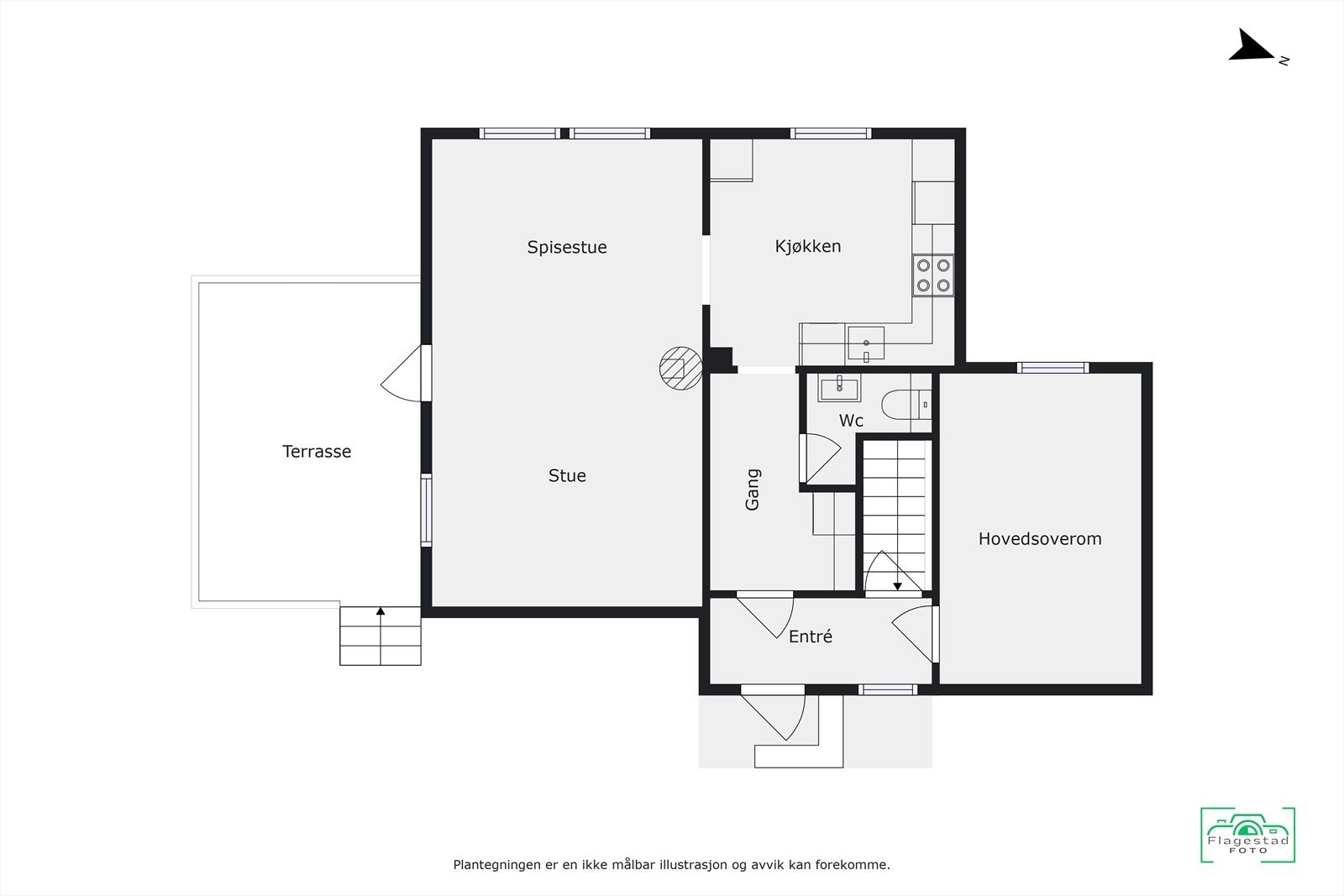
EiendomsMegler1 Lillehammer og Gudbrandsdal presenterer Steindalsvegen 5 på Otta - En hyggelig enebolig over to plan, med tilhørende garasje. Underetasjen har vært utleid gjennom AirBnb med gode leieinntekter. Underetasje er pusset opp og innredet av selger iflg. egenerklæringsskjema. Dette forholdet er ikke godkjent. Det er to soverom i boligen, ett bad og ett toalettrom. Det er også en stue og ett kjøkken i hver etasje.
Eiendommen ligger luftig til, da den ligger litt opp i høyden. God utsikt og solgang. Det er kun en liten spasertur ned til Otta sentrum. Her finner man alt av sentrumsfunksjoner, siden Otta er et knutepunkt mellom sør, nord og vest. Fra eiendommen er det kort avstand til fine friluftsområder, som for eksempel Rondane. Her er det utallige turmuligheter for enhver smak.
Eiendommen ligger luftig til, da den ligger litt opp i høyden. God utsikt og solgang. Det er kun en liten spasertur ned til Otta sentrum. Her finner man alt av sentrumsfunksjoner, siden Otta er et knutepunkt mellom sør, nord og vest. Fra eiendommen er det kort avstand til fine friluftsområder, som for eksempel Rondane. Her er det utallige turmuligheter for enhver smak.
NB: Knappen for å vise hele beskrivelsen har kun en visuell effekt.
NB: Knappen for å vise hele beskrivelsen har kun en visuell effekt.
Salgsoppgaven beskriver vesentlig og lovpålagt informasjon om eiendommen
Se komplett salgsoppgaveNyttige lenker
Nærområdet
EiendomsMegler 1 Lillehammer og Gudbrandsdal - avd Gudbrandsdal
Vi loser deg trygt gjennom hele boligsalget
Annonseinformasjon
| FINN-kode | 378879051 |
|---|---|
| Sist endret | 06. feb. 2026 12:15 |
| Referanse | 1312240147 |
Annonsene kan være mangelfulle i forhold til lovpålagt opplysningsplikt. Før bindende avtale inngås oppfordres interessenter til å innhente komplett informasjon fra meglerforetaket, selger eller utleier.


































