Bildegalleri

EiendomsMegler 1 v/Frank Robert Bae har gleden av å presentere et flott rekkehus med særdeles god beliggenhet på Charlottenlund!
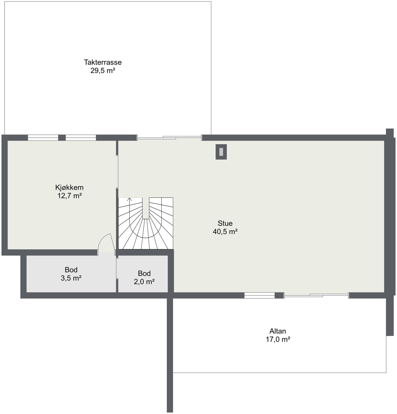
Vesentlig oppgradert rekkehus på hele 185 m² - Særdeles barnevennlig beliggenhet grensende til friareal -Carport m/lader
Nøkkelinfo
- Boligtype
- Rekkehus
- Eieform
- Eier (Selveier)
- Soverom
- 4
- Internt bruksareal
- 185 m² (BRA-i)
- Bruksareal
- 185 m²
- Balkong/Terrasse
- 93 m² (TBA)
- Byggeår
- 1965
- Energimerking
- E - Oransje
- Rom
- 6
- Tomteareal
- 172 m² (eiet)
Fasiliteter
Om boligen
Boligen er innholdsrik med sine 185 kvm og har en effektiv planløsning som strekker seg over tre plan. Det har blitt gjennomført en rekke vesentlige oppgraderinger i nyere tid, og boligen holder en gjennomgående pen standard.
Huset ligger usjenert til omkranset av skogsområder, og beliggenheten må sies å være en av de aller bedre i området. Her nyter man glimrende solforhold fra tidlig morgen til 21-tiden på sommerstid, og store vindusflater bidrar til boligens helt særegne og luftige atmosfære. For barnefamilien er det helt topp å ha nevnte friområder rett utenfor døra, og dette innbyr til mye lek og moro i trygge omgivelser.
Fra boligen er det kort vei til barnehager, skole, busstopp, dagligvarebutikk og øvrige servicefasiliteter, samt flere turområder. Området beskrives best som svært barnevennlig.
Velkommen til en hyggelig visning!
Salgsoppgaven beskriver vesentlig og lovpålagt informasjon om eiendommen
Se komplett salgsoppgaveNyttige lenker
Nærområdet
EiendomsMegler 1 Grilstadporten
Prisstatistikk
Almevegen 6 B
på annonsen
prisantydning per kvadratmeter
Prisfordeling
Pris per m² ligger 12 217 kr under snittet for rekkehus i Trondheim Øst.
Grafen viser antall rekkehus solgt i Trondheim Øst siste året fordelt på pris per m² - totalt 194 rekkehus
Antall boliger
Kvadratmeterpris tilsvarer prisantydning pluss fellesgjeld per kvadratmeter (p-rom eller BRA-i). Prisene i grafen er avrundet til nærmeste 1000 kr.
Annonseinformasjon
| FINN-kode | 378483111 |
|---|---|
| Sist endret | 17. juni 2025 09:56 |
| Referanse | 33240302 |
Annonsene kan være mangelfulle i forhold til lovpålagt opplysningsplikt. Før bindende avtale inngås oppfordres interessenter til å innhente komplett informasjon fra meglerforetaket, selger eller utleier.















































