Bildegalleri

Velkommen til denne nydelige leiligheten i Hjalmar Brantings vei 69! Presenteres med glede av Ingvar Nypan (45259737) for Eiendomsmegler Krogsveen
Solgt
FANTASTISK BELIGGENHET I VESTRE SÆLEMYR
Nydelig, stilren 3-roms leilighet med 2 balkonger og gode solforhold | Perfekt beliggenhet rett ved Oasen og Bybane!
Prisantydning3 990 000 kr
Nøkkelinfo
- Boligtype
- Leilighet
- Eieform
- Andel
- Soverom
- 2
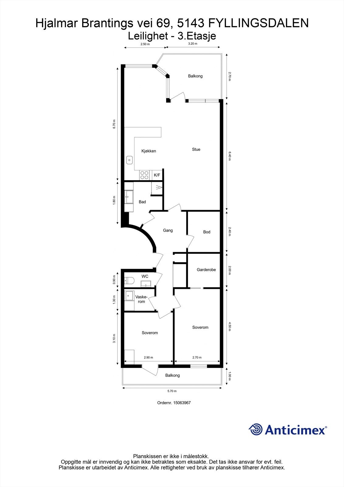
- Internt bruksareal
- 92 m² (BRA-i)
- Bruksareal
- 96 m²
- Eksternt bruksareal
- 4 m² (BRA-e)
- Balkong/Terrasse
- 14 m² (TBA)
- Etasje
- 3
- Byggeår
- 1973
- Energimerking
- F - Rød
- Rom
- 3
- Tomteareal
- 61 267 m² (eiet)
Fasiliteter
Balkong/Terrasse
Barnevennlig
Bredbåndstilknytning
Kabel-TV
Offentlig vann/kloakk
Rolig
Sentralt
Utsikt
Turterreng
Lademulighet
Om boligen
Velkommen til rålekre Hjalmar Brantings vei 69! En nydelig leilighet i hjertet av Fyllingsdalen med umiddelbar nærhet til Bybanen og Oasen kjøpesenter, samt gangavstand til skole og barnehager.
- Stilrene og moderne gulv- og veggflater gjennomgående i leiligheten
- Moderne og lyst kjøkken/bad
- 2 balkonger som gir boligen fine solforhold fra tidlig morgen til sen ettermiddag
- Svært fin plassering både i borettslaget og bygget- friere beliggenhet med fin utsikt
- Rett ved boligen finner man Bybanen, samt sykkel- og gangtunnelen som tar deg raskt til Minde/Haukeland/sentrum
- Varmtvann inkl. i fellesutgiftene!
- Borettslaget disponerer gode parkeringsmuligheter
- Bilfri adkomst til Oasen Bydelssenter over gangbro, og bilfri barneskolevei
- Svært gode turmuligheter
NB: Knappen for å vise hele beskrivelsen har kun en visuell effekt.
NB: Knappen for å vise hele beskrivelsen har kun en visuell effekt.
Salgsoppgaven beskriver vesentlig og lovpålagt informasjon om eiendommen
Se komplett salgsoppgaveNyttige lenker
Nærområdet
Krogsveen Fyllingsdalen
Verdien av en god megler.
Annonseinformasjon
| FINN-kode | 378302884 |
|---|---|
| Sist endret | 24. feb. 2025 09:11 |
| Referanse | KR70.24153 |
Annonsene kan være mangelfulle i forhold til lovpålagt opplysningsplikt. Før bindende avtale inngås oppfordres interessenter til å innhente komplett informasjon fra meglerforetaket, selger eller utleier.














































