Bildegalleri

EIE eiendomsmegling v/ Ida Holan ønsker velkommen til Svend Foyns gate 6G!
Stor og delikat leilighet over 2 plan med lite innsyn, moderne standard, 3 soverom, vinterhage og solfylt takterrasse.
Nøkkelinfo
- Boligtype
- Tomannsbolig
- Eieform
- Andel
- Soverom
- 3
- Internt bruksareal
- 100 m² (BRA-i)
- Bruksareal
- 118 m²
- Eksternt bruksareal
- 4 m² (BRA-e)
- Innglasset balkong
- 14 m² (BRA-b)
- Balkong/Terrasse
- 9 m² (TBA)
- Byggeår
- 1979
- Energimerking
- G - Oransje
- Tomteareal
- 299 m²
Fasiliteter
Om boligen
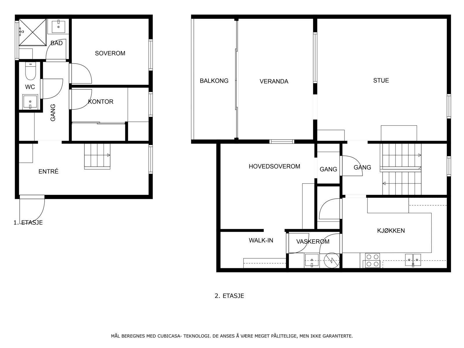
Svend Foyns gate 6 G er en stor, delikat andelsleilighet over to etasjer, med lite innsyn. Leiligheten ligger i et stille og rolig område ved Gunnarsbøparken, med kort vei til byens fasiliteter. Det er bussholdeplass like ved og ellers mulighet for leie av garasjeplass. Leiligheten ligger i henholdsvis første og andre etasje, og er hovedsakelig pusset opp i 2014 og 2021, noe som har resultert i en moderne standard.
I første etasje er det entré med lekker trapp, et flislagt bad, wc og to soverom. Oppe i andre etasje er det kjøkken, stue og et vaskerom tilknyttet hovedsoverom med garderobe. Kjøkkenet ligger i eget rom med massevis av skapplass og integrerte hvitevarer. Stuen er usjenert og har utgang til en herlig vinterhage på ca. 14 kvm og videre ut til en solfylt takterrasse på ca. 9 kvm.
Salgsoppgaven beskriver vesentlig og lovpålagt informasjon om eiendommen
Se komplett salgsoppgaveNærområdet
EIE eiendomsmegling Tønsberg
Annonseinformasjon
| FINN-kode | 378268759 |
|---|---|
| Sist endret | 14. apr. 2025 09:44 |
| Referanse | 67240342 |
Annonsene kan være mangelfulle i forhold til lovpålagt opplysningsplikt. Før bindende avtale inngås oppfordres interessenter til å innhente komplett informasjon fra meglerforetaket, selger eller utleier.
































