Bildegalleri

Svært god beliggenhet på Nøste!
Nøste
Enebolig i et svært barnevennlig område. Solrikt med fjordutsikt. Praktisk avstand til togstasjon/Brakerøya og sykehuset
Prisantydning6 590 000 kr
Nøkkelinfo
- Boligtype
- Enebolig
- Eieform
- Eier (Selveier)
- Soverom
- 4
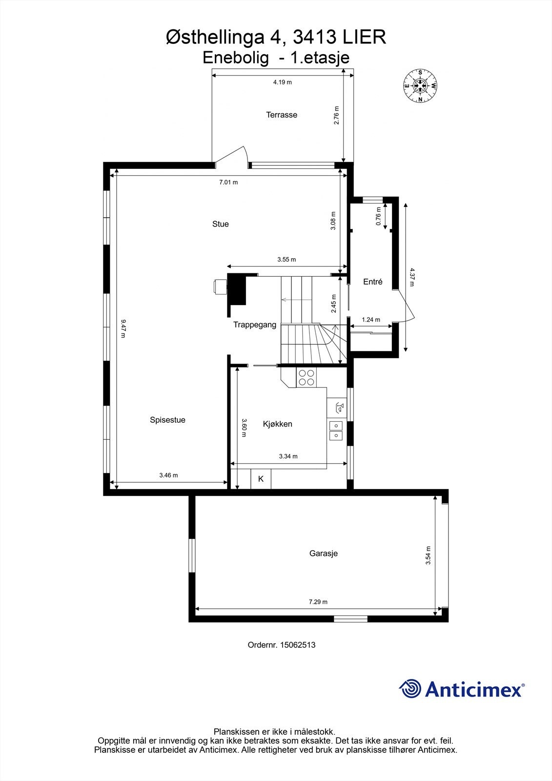
- Internt bruksareal
- 158 m² (BRA-i)
- Bruksareal
- 196 m²
- Eksternt bruksareal
- 38 m² (BRA-e)
- Balkong/Terrasse
- 12 m² (TBA)
- Etasje
- 2
- Byggeår
- 1959
- Energimerking
- G - Rød
- Rom
- 5
- Tomteareal
- 947 m² (eiet)
Fasiliteter
Balkong/Terrasse
Barnevennlig
Bredbåndstilknytning
Garasje/P-plass
Hage
Kjæledyr tillatt
Offentlig vann/kloakk
Peis/Ildsted
Rolig
Utsikt
Turterreng
Visning
For å delta på visning, ber vi om at du melder deg på. Da sikrer vi at du får nødvendig informasjon og at det er satt av tilstrekkelig med tid. Kontakt megler dersom annet tidspunkt ønskes. Husk å lese salgsoppgaven før visningen, så du stiller forberedt.
Ønsker du kun å bli holdt orientert, kan du fra eiendommens hjemmeside få varsel om solgtpris, eller kontakte megler.
VisningspåmeldingOm boligen
Særpreget enebolig med en svært attraktiv beliggenhet.
- Kort og trygg vei til barnehage, barneskole, ungdomsskole, videregående skoler
- Romslig vinkelstue med store vindusflater som gir mye lys og flott utsikt
- Profilert Norema kjøkkeninnredning med god skap- og skuffplass
- Bad, praktisk vaskerom og ekstra wc-rom i u. etg
- Godt med lagringsplass i flere boder i boligen
- Enkelte rom og bygningsdeler har et tidsmessig oppgraderingsbehov
- Parkering i integrert garasje og på gruset gårdsplass
- Teglstein fra Oslo Spektrum med runde hus-/vindushjørner
- Solrik sydvendt terrasse på ca. 12 kvm med utsikt over fjorden og Lierdalen
- Stille og rolige omgivelser i et barnevennlig boligområde
- Ca. 5 min kjøring til Drammen sentrum med sentrumsfasiliteter
NB: Knappen for å vise hele beskrivelsen har kun en visuell effekt.
NB: Knappen for å vise hele beskrivelsen har kun en visuell effekt.
Salgsoppgaven beskriver vesentlig og lovpålagt informasjon om eiendommen
Se komplett salgsoppgaveNyttige lenker
Nærområdet
Krogsveen Drammen
Velkommen til en enklere boligreise.
Annonseinformasjon
| FINN-kode | 378257224 |
|---|---|
| Sist endret | 31. des. 2025 21:10 |
| Referanse | KR20.24290 |
Annonsene kan være mangelfulle i forhold til lovpålagt opplysningsplikt. Før bindende avtale inngås oppfordres interessenter til å innhente komplett informasjon fra meglerforetaket, selger eller utleier.








































