Bildegalleri

Velkommen til Sagene og Bentsebrugata 29 B!
Lys & pen 2-roms med 2 balkonger mot sydøst I Moderne kjøkken fra 2022 I Vinduer fra 2018 I Fjernvarme/VV & bredbånd ink
Nøkkelinfo
- Boligtype
- Leilighet
- Eieform
- Andel
- Soverom
- 1
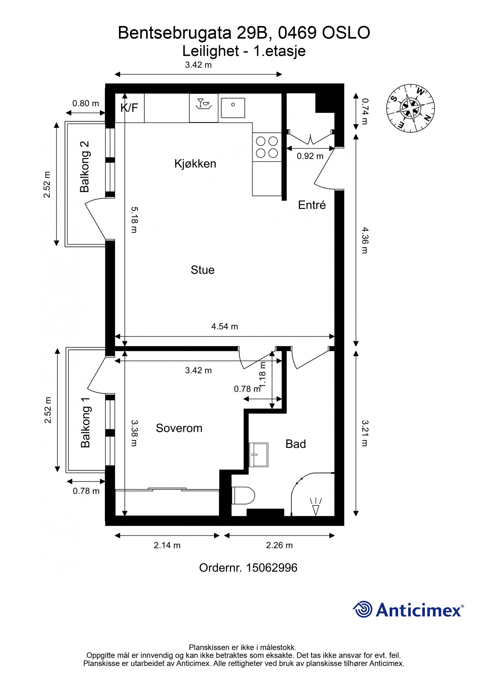
- Internt bruksareal
- 39 m² (BRA-i)
- Bruksareal
- 44 m²
- Eksternt bruksareal
- 5 m² (BRA-e)
- Balkong/Terrasse
- 4 m² (TBA)
- Etasje
- 1
- Byggeår
- 1939
- Energimerking
- G - Mørkegrønn
- Rom
- 2
- Tomteareal
- 1 335 m² (eiet)
Fasiliteter
Om boligen
En lys og pen 2-roms leilighet med god standard og 2 balkonger. Leiligheten har en god planløsning med åpen stue- og kjøkkenløsning og soverom med stor skyvedørsgarderobe. Både fra stuen og soverommet er det utgang til fine balkonger som vender mot sydøst. Store vindusflater og god takhøyde gir en luftig romfølelse.
God beliggenhet midt på Sagene med kort gange til alt av servicetilbud, flotte grønne parker og frodige Akerselva. Bussen stopper rett utenfor døren og tar deg raskt opp til Nydalen og BI.
- 2 fine balkonger mot sydøst
- Store vindusflater fra 2018
- Moderne kjøkken fra 2022 med medfølgende hvitevarer
- Skjult elektrisk anlegg
- Soverom med stor skyvedørsgarderobe
- Lyst flislagt baderom oppusset i 2006
- Romslig skap i gangen + 2 kjellerboder
- Fjernvarme, varmtvann og bredbånd inkl.
- Ingen forkjøpsrett
Salgsoppgaven beskriver vesentlig og lovpålagt informasjon om eiendommen
Se komplett salgsoppgaveNyttige lenker
Nærområdet
Schala &Partners Sagene
Prisstatistikk
Bentsebrugata 29 B
på annonsen
prisantydning per kvadratmeter
Prisfordeling
Pris per m² ligger 5 139 kr over snittet for leiligheter i Sagene - Torshov.
Grafen viser antall leiligheter solgt i Sagene - Torshov siste året fordelt på pris per m² - totalt 2 434 leiligheter
Antall boliger
Kvadratmeterpris tilsvarer prisantydning pluss fellesgjeld per kvadratmeter (p-rom eller BRA-i). Prisene i grafen er avrundet til nærmeste 1000 kr.
Annonseinformasjon
| FINN-kode | 378001000 |
|---|---|
| Sist endret | 09. nov. 2024 12:19 |
| Referanse | 19240500 |
Annonsene kan være mangelfulle i forhold til lovpålagt opplysningsplikt. Før bindende avtale inngås oppfordres interessenter til å innhente komplett informasjon fra meglerforetaket, selger eller utleier.









































