Bildegalleri

Rekkehuset har skjermet beliggenhet omgitt av natur og solrike uteplasser på til sammen 43 m².
Solgt
Åvangen
Flott rekkehus med skjermet beliggenhet og solrike uteplasser på 43m² - Kjøkken fra 2020 og stor walk-in - Garasjeplass
Prisantydning2 850 000 kr
Nøkkelinfo
- Boligtype
- Rekkehus
- Eieform
- Andel
- Soverom
- 2
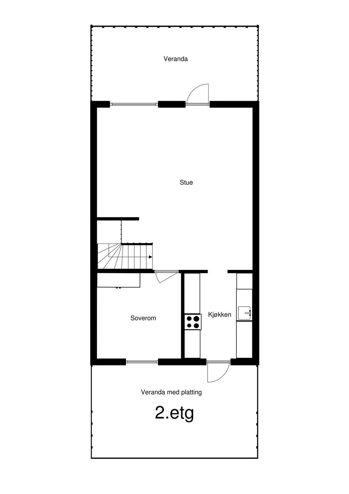
- Internt bruksareal
- 92 m² (BRA-i)
- Bruksareal
- 92 m²
- Balkong/Terrasse
- 43 m² (TBA)
- Etasje
- 2
- Byggeår
- 1983
- Energimerking
- F - Rød
- Rom
- 3
- Tomteareal
- 43 477 m² (eiet)
Fasiliteter
Balkong/Terrasse
Barnevennlig
Bredbåndstilknytning
Garasje/P-plass
Ingen gjenboere
Kabel-TV
Offentlig vann/kloakk
Rolig
Sentralt
Utsikt
Vaktmester-/vektertjeneste
Turterreng
Om boligen
Velkommen til Spolen 31!
* Nyere overflater og kjøkken fra 2020.
* Eget vaskerom og walk-in garderobe.
* Solrike øst- og vestvendte uteplasser på til sammen 43m².
* Skjermet beliggenhet innerst på boligfelt.
* Parkering i garasjeanlegg og lekeområde rett utenfor.
* TV/internett inkludert i felleskostnader.
* Kort vei til skoler, barnehager, butikker og buss.
* Nærhet til tur- og rekreasjonsområder for alle aldre.
Eiendommen ligger i et barnevennlig og veletablert område på Åvangen, grensende mot naturområder med fjell, skog- og grøntområder. Vil du bo i et veletablert, familievennlig og sentralt boligområde med begrenset biltrafikk, nærhet til skoler, barnehager, butikk, buss og turområder, så er dette en perfekt plass for deg.
Velkommen til en hyggelig visning!
* Nyere overflater og kjøkken fra 2020.
* Eget vaskerom og walk-in garderobe.
* Solrike øst- og vestvendte uteplasser på til sammen 43m².
* Skjermet beliggenhet innerst på boligfelt.
* Parkering i garasjeanlegg og lekeområde rett utenfor.
* TV/internett inkludert i felleskostnader.
* Kort vei til skoler, barnehager, butikker og buss.
* Nærhet til tur- og rekreasjonsområder for alle aldre.
Eiendommen ligger i et barnevennlig og veletablert område på Åvangen, grensende mot naturområder med fjell, skog- og grøntområder. Vil du bo i et veletablert, familievennlig og sentralt boligområde med begrenset biltrafikk, nærhet til skoler, barnehager, butikk, buss og turområder, så er dette en perfekt plass for deg.
Velkommen til en hyggelig visning!
NB: Knappen for å vise hele beskrivelsen har kun en visuell effekt.
NB: Knappen for å vise hele beskrivelsen har kun en visuell effekt.
Salgsoppgaven beskriver vesentlig og lovpålagt informasjon om eiendommen
Se komplett salgsoppgaveNyttige lenker
Nærområdet
Nordvik Moss
Vi vet hva det er verdt
Annonseinformasjon
| FINN-kode | 377994982 |
|---|---|
| Sist endret | 08. apr. 2025 06:50 |
| Referanse | 41-0169/24 |
Annonsene kan være mangelfulle i forhold til lovpålagt opplysningsplikt. Før bindende avtale inngås oppfordres interessenter til å innhente komplett informasjon fra meglerforetaket, selger eller utleier.























