Bildegalleri

Velkommen til Hårstad Mindes veg 14!
Tiller
LEKKER 3-ROMS ANDELSLEILIGHET FRA 2022 - Hjørnebeliggenhet - Terrasse - P-plass - Mulighet for å nedbetale fellesgjeld
Prisantydning1 390 000 kr
Nøkkelinfo
- Boligtype
- Leilighet
- Eieform
- Andel
- Soverom
- 2
- Internt bruksareal
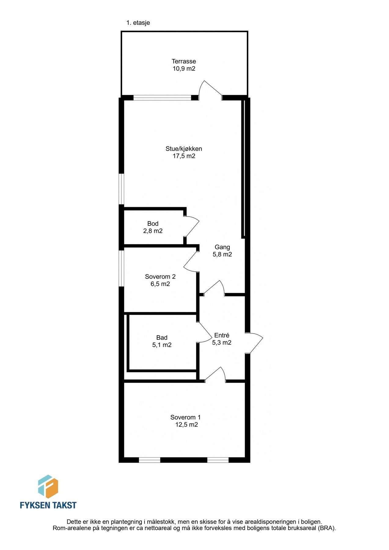
- 59 m² (BRA-i)
- Bruksareal
- 64 m²
- Eksternt bruksareal
- 5 m² (BRA-e)
- Etasje
- 1
- Byggeår
- 2022
- Energimerking
- C - Mørkegrønn
- Rom
- 3
- Tomteareal
- 2 823 m² (eiet)
Fasiliteter
Barnevennlig
Balkong/Terrasse
Garasje/P-plass
Kabel-TV
Heis
Offentlig vann/kloakk
Parkett
Turterreng
Vaktmester-/vektertjeneste
Sentralt
Bredbåndstilknytning
Moderne
Rolig
Lademulighet
Balansert ventilasjon
Om boligen
Velkommen til Hårstad Mindes veg 14! En meget flott 3-roms beliggende i 1.etasje. Leiligheten har en fin beliggenhet på hjørne og har en sørvendt terrasse med gode solforhold. Bygget ble ferdigstilt i 2022 og har nybyggsgaranti til og med 2027.
Av kvaliteter kan man nevne:
Av kvaliteter kan man nevne:
- Felleskostnader som bl.a inkl. fjernvarme, parkering, kommunale avgifter, kabel-tv og internett.
- Innvendig bod pluss en sportsbod i kjeller.
- Delikat og romslig bad med god plass til vaskemaskin.
- Svært delikat 3-roms med gjennomgående høy standard.
- Sørvendt balkong med gode solforhold.
- Parkeringsplass med elbillader i oppvarmet kjeller.
- Balansert ventilasjon.
- Heis i bygget.
- Flotte naturomgivelser i nærheten.
- Med meget kort vei til kollektivtrafikk og tilbudene på Tiller, har du alt du trenger i hverdagen.
Velkommen til visning!
NB: Knappen for å vise hele beskrivelsen har kun en visuell effekt.
NB: Knappen for å vise hele beskrivelsen har kun en visuell effekt.
Salgsoppgaven beskriver vesentlig og lovpålagt informasjon om eiendommen
Se komplett salgsoppgaveNyttige lenker
Nærområdet
EiendomsMegler 1 Heimdal
Vi loser deg trygt gjennom hele boligsalget
Annonseinformasjon
| FINN-kode | 377829038 |
|---|---|
| Sist endret | 01. feb. 2026 12:53 |
| Referanse | 31240727 |
Annonsene kan være mangelfulle i forhold til lovpålagt opplysningsplikt. Før bindende avtale inngås oppfordres interessenter til å innhente komplett informasjon fra meglerforetaket, selger eller utleier.
























