Bildegalleri

EIE Eiendomsmegling v/ Jr. Partner Håkon Hovland presenterer Pedersgata 19!
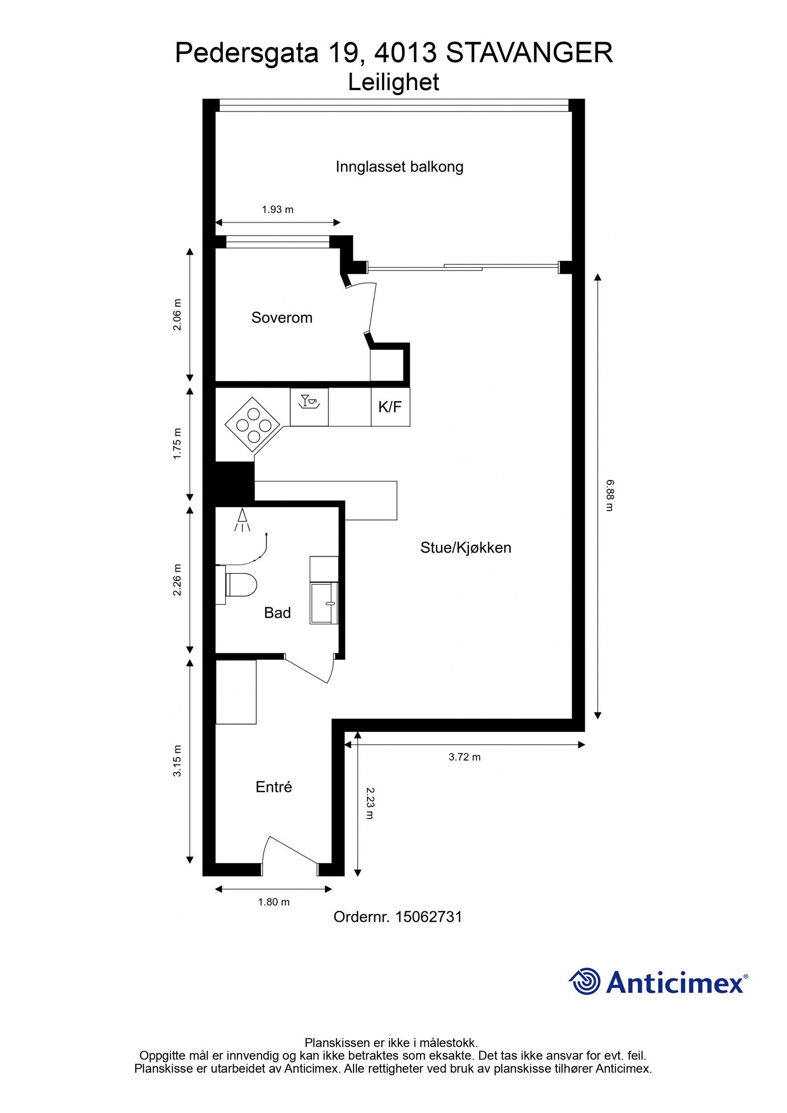
Sjarmerende, innflytningsklar sentrumsleilighet i 8. etg med innglasset balkong, fantastisk utsikt og gode solforhold!
Nøkkelinfo
- Boligtype
- Leilighet
- Eieform
- Andel
- Internt bruksareal
- 43 m² (BRA-i)
- Bruksareal
- 56 m²
- Eksternt bruksareal
- 2 m² (BRA-e)
- Innglasset balkong
- 11 m² (BRA-b)
- Etasje
- 8
- Byggeår
- 1970
- Energimerking
- E - Rød
- Rom
- 1
- Tomteareal
- 1 551 m² (eiet)
Fasiliteter
Om boligen
EIE Eiendomsmegling v/ Jr. Partner Håkon Hovland presenterer Pedersgata 19!
Dette er en unik mulighet til å sikre deg en sjelden perle midt i Stavanger sentrum! Leiligheten ligger i et svært attraktivt område med Pedersgata og Nytorget like rundt hjørnet, og gir deg kort vei til alt av butikker, restauranter og byens mange kulturtilbud. Boligen har en arealeffektiv planløsning, en solrik innglasset balkong og en utsikt som virkelig tar pusten fra deg. Her får du et hjem som kombinerer moderne komfort med en sentral beliggenhet i Stavanger!
Om boligen:
- Utsikt mot by, fjord og fjell
- Solvendt innglasset balkong
- Luftig beliggenhet i byggets 8.etg
- Romslig, flislagt bad
- God standard, 67% TG1
- Mulighet for å leie parkeringsplass
- Bod i kjelleretasje
- Sykkelparkering
Velkommen til visning!
Salgsoppgaven beskriver vesentlig og lovpålagt informasjon om eiendommen
Se komplett salgsoppgaveNærområdet
EIE eiendomsmegling - Rogaland Eiendomsmegling AS
Annonseinformasjon
| FINN-kode | 377316360 |
|---|---|
| Sist endret | 08. nov. 2024 20:14 |
| Referanse | 54240345 |
Annonsene kan være mangelfulle i forhold til lovpålagt opplysningsplikt. Før bindende avtale inngås oppfordres interessenter til å innhente komplett informasjon fra meglerforetaket, selger eller utleier.































