Bildegalleri

EIE eiendomsmegling ved Yasin Unal har gleden av å presentere Brøsetvegen 186A.
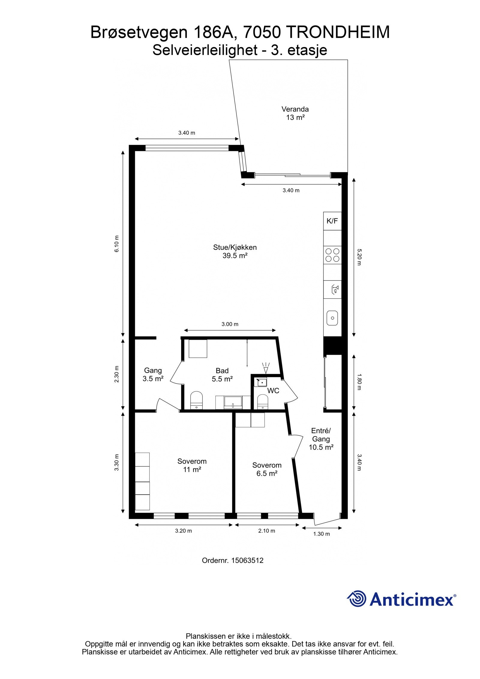
Innbydende og romslig 3-roms i bygg fra 2006. Heis og p-plass i kjeller. Ekstra toalettrom, fjernvarme og bod i kjeller.
Nøkkelinfo
- Boligtype
- Leilighet
- Eieform
- Eier (Selveier)
- Soverom
- 2
- Internt bruksareal
- 81 m² (BRA-i)
- Bruksareal
- 86 m²
- Eksternt bruksareal
- 5 m² (BRA-e)
- Balkong/Terrasse
- 13 m² (TBA)
- Etasje
- 3
- Byggeår
- 2006
- Energimerking
- D - Mørkegrønn
- Rom
- 3
- Tomt
- Festet
- Festeavgift
- 271 920 kr
Fasiliteter
Om boligen
EIE Eiendomsmegling ved Yasin Unal har gleden av å presentere Brøsetvegen 186 A!
En attraktiv og moderne leilighet som ligger sentralt til i et veletablert og populært boligområde på Moholt. Eiendommen tilbyr en lys og romslig planløsning, med kort vei til både byens fasiliteter og flotte turområder. Leiligheten har en flott og solrik balkong med panoramautsikt over byen.
Merk deg følgende:
- Nærhet til dagligvarebutikker, treningssenter og andre fasiliteter
- TG1 på 94%
- Boligen oppvarmes via fjernvarme
- Heis i bygget
- Parkering i oppvarmet parkeringskjeller
- Nærhet til flotte turområder i Estenstadmarka
- 2 soverom med gode lysforhold
- Flott utsikt og lite innsyn
- Gode kollektivtilbud
Velkommen til visning!
Salgsoppgaven beskriver vesentlig og lovpålagt informasjon om eiendommen
Se komplett salgsoppgaveNærområdet
EIE eiendomsmegling Heimdal
Annonseinformasjon
| FINN-kode | 377302410 |
|---|---|
| Sist endret | 17. jan. 2025 18:14 |
| Referanse | 97240186 |
Annonsene kan være mangelfulle i forhold til lovpålagt opplysningsplikt. Før bindende avtale inngås oppfordres interessenter til å innhente komplett informasjon fra meglerforetaket, selger eller utleier.



























