Bildegalleri

Amalie Marthinsen v/Nordvik Nydalen har gleden av å presentere Sandakerveien 10F!
Solgt
ØVRE GRÜNERLØKKA/NEDRE TORSHOV
Lys og gjennomgående 2-roms med sørvestvendt brannbalkong. "Alt" inkl i FK. Ingen forkjøpsrett. Idyllisk ved Akerselva.
Prisantydning3 950 000 kr
Nøkkelinfo
- Boligtype
- Leilighet
- Eieform
- Andel
- Soverom
- 1
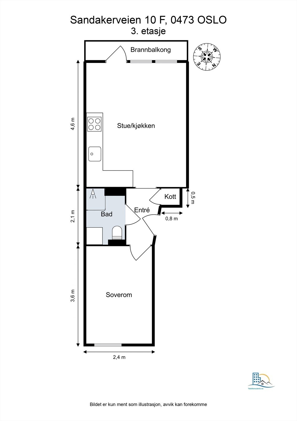
- Internt bruksareal
- 32 m² (BRA-i)
- Bruksareal
- 34 m²
- Eksternt bruksareal
- 2 m² (BRA-e)
- Etasje
- 3
- Byggeår
- 1935
- Energimerking
- F - Mørkegrønn
- Rom
- 2
- Tomteareal
- 4 653 m² (eiet)
Fasiliteter
Balkong/Terrasse
Barnevennlig
Bredbåndstilknytning
Fellesvaskeri
Kjæledyr tillatt
Kabel-TV
Offentlig vann/kloakk
Parkett
Rolig
Sentralt
Utsikt
Bademulighet
Fiskemulighet
Turterreng
Om boligen
Amalie Marthinsen v/Nordvik Nydalen har gleden av å presentere Sandakerveien 10F! Leiligheten ligger attraktivt til på Øvre Grünerløkka/Nedre Torshov med enkel adkomst til det meste av byens fasiliteter. Her har du gangavstand til dagligvare, treningssentre, apotek, restauranter, kaféer, offentlig kommunikasjon m.m. Leiligheten danner også et godt utgangspunkt for å benytte nærliggende rekreasjonsområder med Akerselva som nærmeste nabo.
- Flott 2-roms med god planløsning
- Høyt og fritt i 3. etajse
- Utgang til sørvestvendt brannbalkong
- Akerselva som nærmeste nabo
- Tv, bredbånd, varmtvann og fyring inkl. i felleskost.
- Ingen forkjøpsrett eller dok.avgift
- Kjellerbod på 2 kvm og loftsbod med 8 kvm gulvflate
- Nærhet til offentlig transport
NB: Knappen for å vise hele beskrivelsen har kun en visuell effekt.
NB: Knappen for å vise hele beskrivelsen har kun en visuell effekt.
Salgsoppgaven beskriver vesentlig og lovpålagt informasjon om eiendommen
Se komplett salgsoppgaveNyttige lenker
Nærområdet
Nordvik Nydalen
Annonseinformasjon
| FINN-kode | 376899738 |
|---|---|
| Sist endret | 08. nov. 2024 12:19 |
| Referanse | 20-0095/24 |
Annonsene kan være mangelfulle i forhold til lovpålagt opplysningsplikt. Før bindende avtale inngås oppfordres interessenter til å innhente komplett informasjon fra meglerforetaket, selger eller utleier.



































