Bildegalleri

Velkommen til Sandakerveien 16E!
Solgt
Moderne og stilren 4-roms leilighet i bygg fra 2020 - Vestvendt balkong - Herlige fellesarealer - "Alt" inkl. felleskost
Prisantydning7 950 000 kr
Nøkkelinfo
- Boligtype
- Leilighet
- Eieform
- Andel
- Soverom
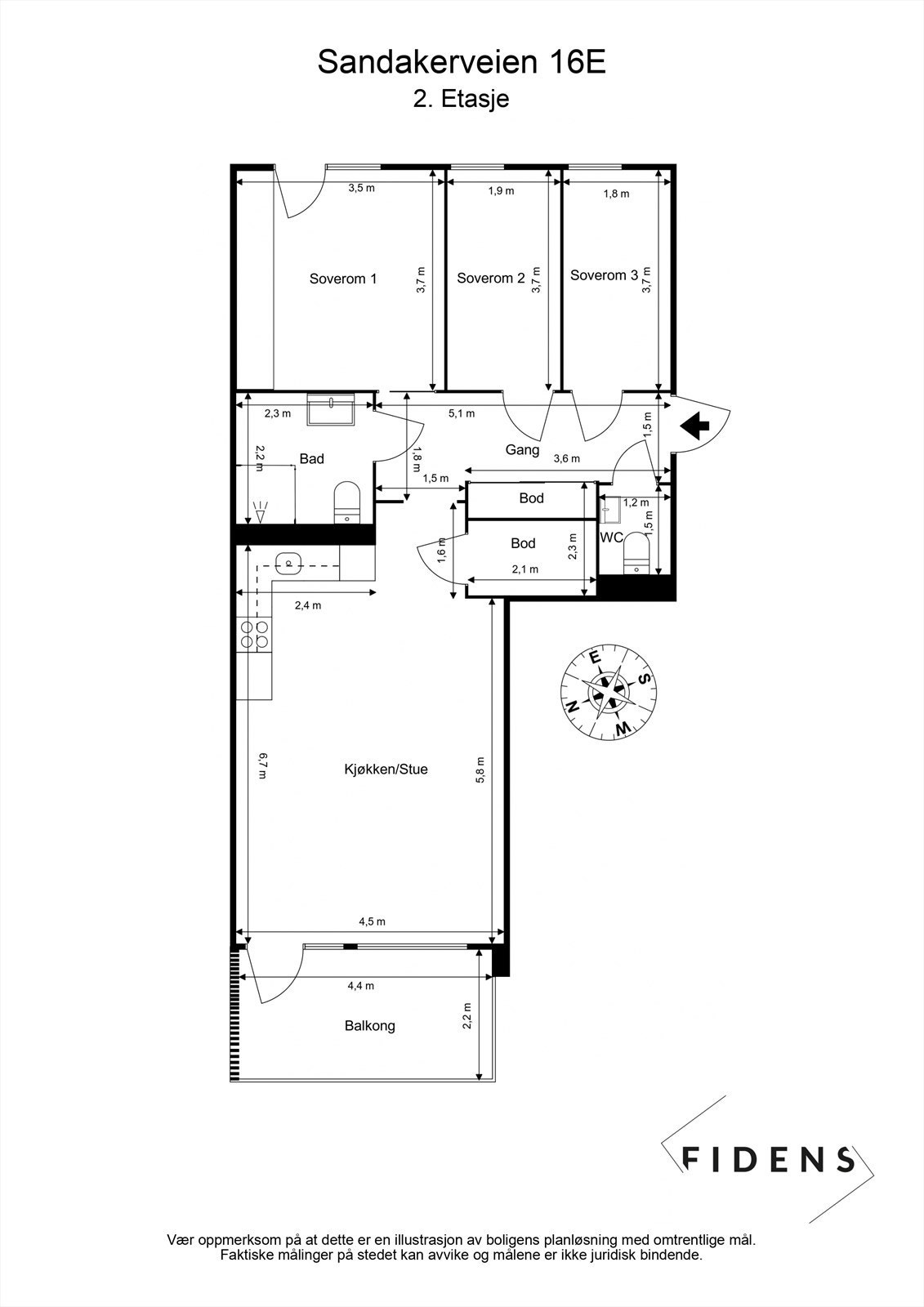
- 3
- Internt bruksareal
- 81 m² (BRA-i)
- Bruksareal
- 86 m²
- Eksternt bruksareal
- 5 m² (BRA-e)
- Balkong/Terrasse
- 10 m² (TBA)
- Etasje
- 2
- Byggeår
- 2020
- Energimerking
- A - Mørkegrønn
- Rom
- 4
- Tomteareal
- 4 369 m² (eiet)
Fasiliteter
Takterrasse
Balkong/Terrasse
Barnevennlig
Bredbåndstilknytning
Garasje/P-plass
Heis
Kjæledyr tillatt
Kabel-TV
Offentlig vann/kloakk
Parkett
Rolig
Sentralt
Vaktmester-/vektertjeneste
Turterreng
Lademulighet
Balansert ventilasjon
Om boligen
Velkommen til Sandakerveien 16E! En lys og moderne 4-roms leilighet fra 2020 med fantastiske kvaliteter!
Bakgården er perfekt for småbarnsfamilier og er flittig i bruk. Her kan du nyte et trygt og barnevennlig miljø, med et trivelig fellesskap blant naboer og barnefamilier - ideelt for både lek og sosialt samvær. I tillegg har boligen tilgang til en veldig attraktiv takterrasse, nesten som en privat park med panorama utsikt!
Kvaliteter:
- Nydelig enstavs parkett med vannbåren gulvvarme i flere rom
- Vestvendt balkong på 10 kvm!
- 3 Soverom
- IN-ordning
- Stilsikkert kjøkken med integrerte hvitevarer
- Åpen og luftig stue-/kjøkkenløsning
- Selger leier garasjeplass i kjeller med el. lader for kr 1873,- per mnd.
- Kjellerbod på 5 kvm
- Ingen dok.avgift eller forkjøpsrett
Bakgården er perfekt for småbarnsfamilier og er flittig i bruk. Her kan du nyte et trygt og barnevennlig miljø, med et trivelig fellesskap blant naboer og barnefamilier - ideelt for både lek og sosialt samvær. I tillegg har boligen tilgang til en veldig attraktiv takterrasse, nesten som en privat park med panorama utsikt!
Kvaliteter:
- Nydelig enstavs parkett med vannbåren gulvvarme i flere rom
- Vestvendt balkong på 10 kvm!
- 3 Soverom
- IN-ordning
- Stilsikkert kjøkken med integrerte hvitevarer
- Åpen og luftig stue-/kjøkkenløsning
- Selger leier garasjeplass i kjeller med el. lader for kr 1873,- per mnd.
- Kjellerbod på 5 kvm
- Ingen dok.avgift eller forkjøpsrett
NB: Knappen for å vise hele beskrivelsen har kun en visuell effekt.
NB: Knappen for å vise hele beskrivelsen har kun en visuell effekt.
Salgsoppgaven beskriver vesentlig og lovpålagt informasjon om eiendommen
Se komplett salgsoppgaveNyttige lenker
Nærområdet
Nordvik St.Hanshaugen
Annonseinformasjon
| FINN-kode | 376669985 |
|---|---|
| Sist endret | 08. nov. 2024 11:24 |
| Referanse | 5-0312/24 |
Annonsene kan være mangelfulle i forhold til lovpålagt opplysningsplikt. Før bindende avtale inngås oppfordres interessenter til å innhente komplett informasjon fra meglerforetaket, selger eller utleier.













































