Bildegalleri

Velkommen til Hovseterveien 84D presentert av Erik Høyem v/EIE eiendomsmegling avd. Røa.
Lys og moderne 2(3)-roms leilighet | Stor balkong | Bad 2018 | Kjøkken 2016 | Heis | Sentral og rolig | Ingen dok.avgift
Nøkkelinfo
- Boligtype
- Leilighet
- Eieform
- Andel
- Soverom
- 2
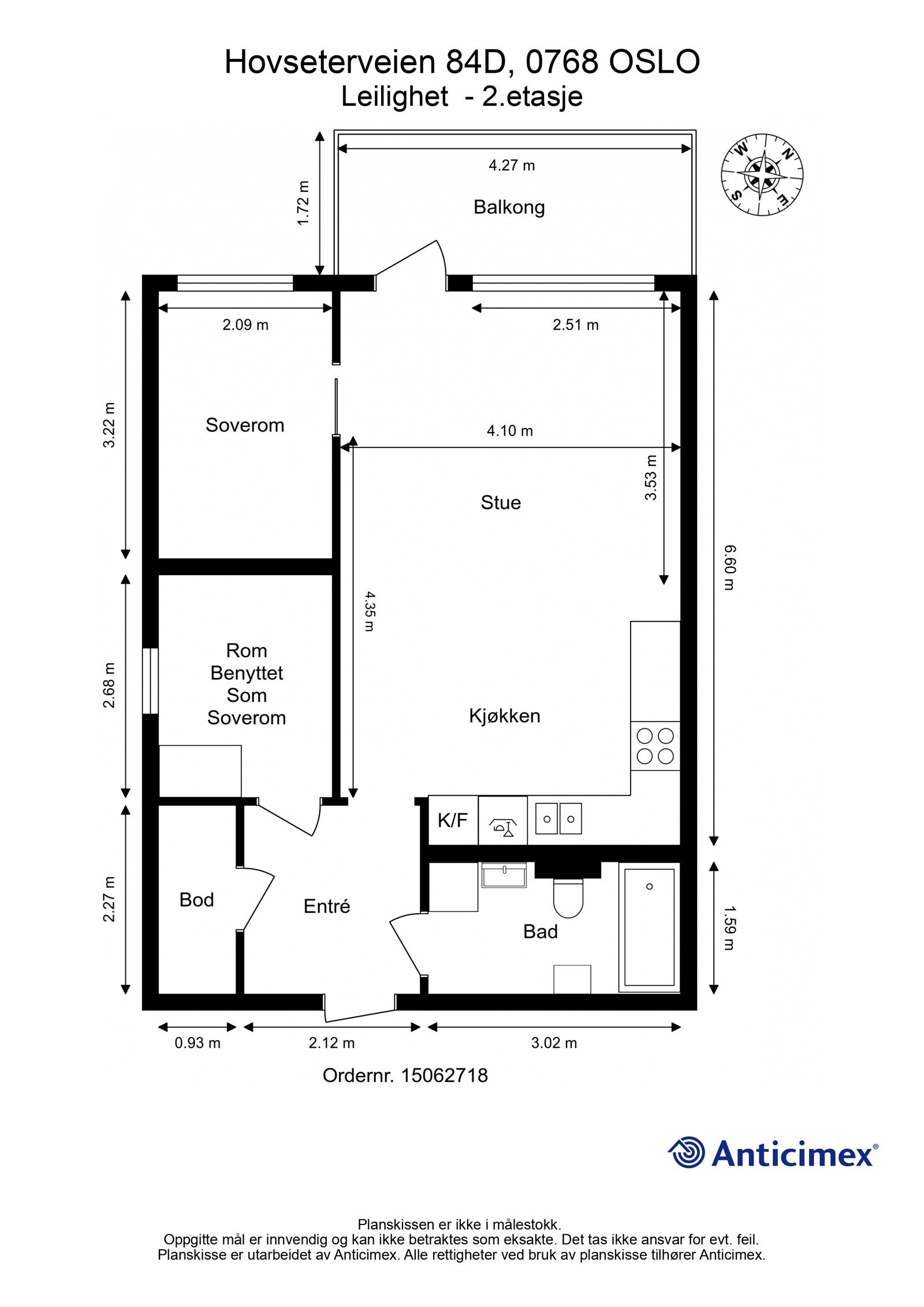
- Internt bruksareal
- 53 m² (BRA-i)
- Bruksareal
- 56 m²
- Eksternt bruksareal
- 3 m² (BRA-e)
- Balkong/Terrasse
- 8 m² (TBA)
- Etasje
- 2
- Byggeår
- 1974
- Energimerking
- E - Rød
- Tomteareal
- 2 113 m² (eiet)
Fasiliteter
Om boligen
Velkommen til Hovseterveien 84D!
Dette er en lekker og innflytningsklar 2(3)-roms leilighet med heisadkomst. Leiligheten har en stor vestvendt balkong med arealeffektiv planløsning som holder en gjennomgående god standard. Det er gjort moderne og lyse fargevalg på vegg- og gulvflater.
Her bor du med umiddelbar nærhet til et rikt utvalg av servicetilbud og fine rekreasjon- og fritidstilbud, samt gangavstand til offentlig transport som enkelt tar deg til sentrum på få minutter.
- Soverom+disp.rom(ikke godkjent grunnet dagens ventilasjon og rømningsvei)
- Kjøkken fra 2016
- Baderom pusset opp i regi av borettslaget i 2018
- Ny balkong og fasade i 2020
- Heisadkomst til leilighetsplan
- Umiddelbar nærhet til dagligvarebutikk, samt Frukt og grønt (søndagsåpent)
- Fine turområder i Mærradalen, skiløyper om vinteren
Salgsoppgaven beskriver vesentlig og lovpålagt informasjon om eiendommen
Se komplett salgsoppgaveNærområdet
EIE eiendomsmegling Røa, Skøyen og Ullern
Annonseinformasjon
| FINN-kode | 376229952 |
|---|---|
| Sist endret | 01. nov. 2024 16:44 |
| Referanse | 50240234 |
Annonsene kan være mangelfulle i forhold til lovpålagt opplysningsplikt. Før bindende avtale inngås oppfordres interessenter til å innhente komplett informasjon fra meglerforetaket, selger eller utleier.







































