Bildegalleri

Ingrid Elgaaen v/Nordvik (tlf. 41 61 34 53) ønsker velkommen til Turbinveien 10!
Solgt
Kværnerbyen
Moderne og lekker 4-roms med herlig sørvendt balkong på 13 m² | Garasjeplass m. elbillader | Heis |Felles takterrasse
Prisantydning7 200 000 kr
Nøkkelinfo
- Boligtype
- Leilighet
- Eieform
- Andel
- Soverom
- 3
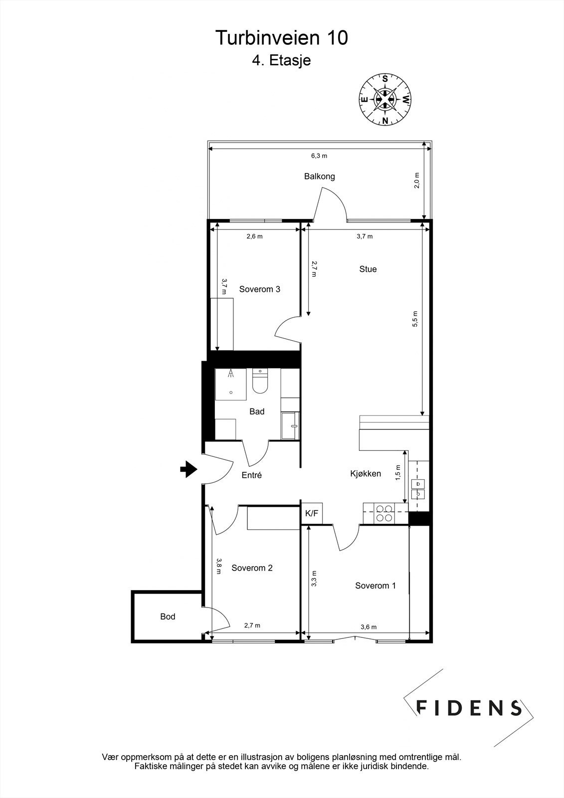
- Internt bruksareal
- 79 m² (BRA-i)
- Bruksareal
- 85 m²
- Eksternt bruksareal
- 6 m² (BRA-e)
- Balkong/Terrasse
- 13 m² (TBA)
- Etasje
- 4
- Byggeår
- 2013
- Energimerking
- D - Mørkegrønn
- Rom
- 3
- Tomteareal
- 8 904 m² (eiet)
Fasiliteter
Takterrasse
Balkong/Terrasse
Barnevennlig
Garasje/P-plass
Heis
Kjæledyr tillatt
Offentlig vann/kloakk
Parkett
Rolig
Sentralt
Utsikt
Turterreng
Lademulighet
Om boligen
Delikat og moderne 4-roms med utgang til en stor balkong på hele 13 kvm. Leiligheten har en gjennomgående planløsning som byr på en sosial og åpen stue/kjøkkenløsning, tre gode soverom, flislagt bad, innebod og en romslig entré. Garasjeplassen ligger rett ved heisen som tar deg opp til leilighetsplan.
Kort sagt:
-Garasjeplass med elbillader
-Fantastisk felles takterrasse med utsikt over Ekebergåsen
-Kjellerbod 6 m²
-Sørvendt balkong 13 m²
-Heis
-Innvendig bod
-1-stavseikeparkett
-Det er montert plisségardiner på mål i alle rom og skyvedørsgarderober på alle soverom
Kværnerbyen ligger mellom Vålerenga, Gamlebyen og Bjørvika. Her bor du kun fem minutter unna Oslo sentrum, med tilgang til alle
servicetilbud man kan tenke seg!
Velkommen til en hyggelig visning!
Kort sagt:
-Garasjeplass med elbillader
-Fantastisk felles takterrasse med utsikt over Ekebergåsen
-Kjellerbod 6 m²
-Sørvendt balkong 13 m²
-Heis
-Innvendig bod
-1-stavseikeparkett
-Det er montert plisségardiner på mål i alle rom og skyvedørsgarderober på alle soverom
Kværnerbyen ligger mellom Vålerenga, Gamlebyen og Bjørvika. Her bor du kun fem minutter unna Oslo sentrum, med tilgang til alle
servicetilbud man kan tenke seg!
Velkommen til en hyggelig visning!
NB: Knappen for å vise hele beskrivelsen har kun en visuell effekt.
NB: Knappen for å vise hele beskrivelsen har kun en visuell effekt.
Salgsoppgaven beskriver vesentlig og lovpålagt informasjon om eiendommen
Se komplett salgsoppgaveNyttige lenker
Nærområdet
Nordvik Torshov
Vi vet hva det er verdt
Annonseinformasjon
| FINN-kode | 376201748 |
|---|---|
| Sist endret | 01. nov. 2024 12:49 |
| Referanse | 29-0346/24 |
Annonsene kan være mangelfulle i forhold til lovpålagt opplysningsplikt. Før bindende avtale inngås oppfordres interessenter til å innhente komplett informasjon fra meglerforetaket, selger eller utleier.










































