Bildegalleri

Velkommen til St Marie gate 42, presentert av Eiendomsmegler 1 v/Gjermund Haugeneset
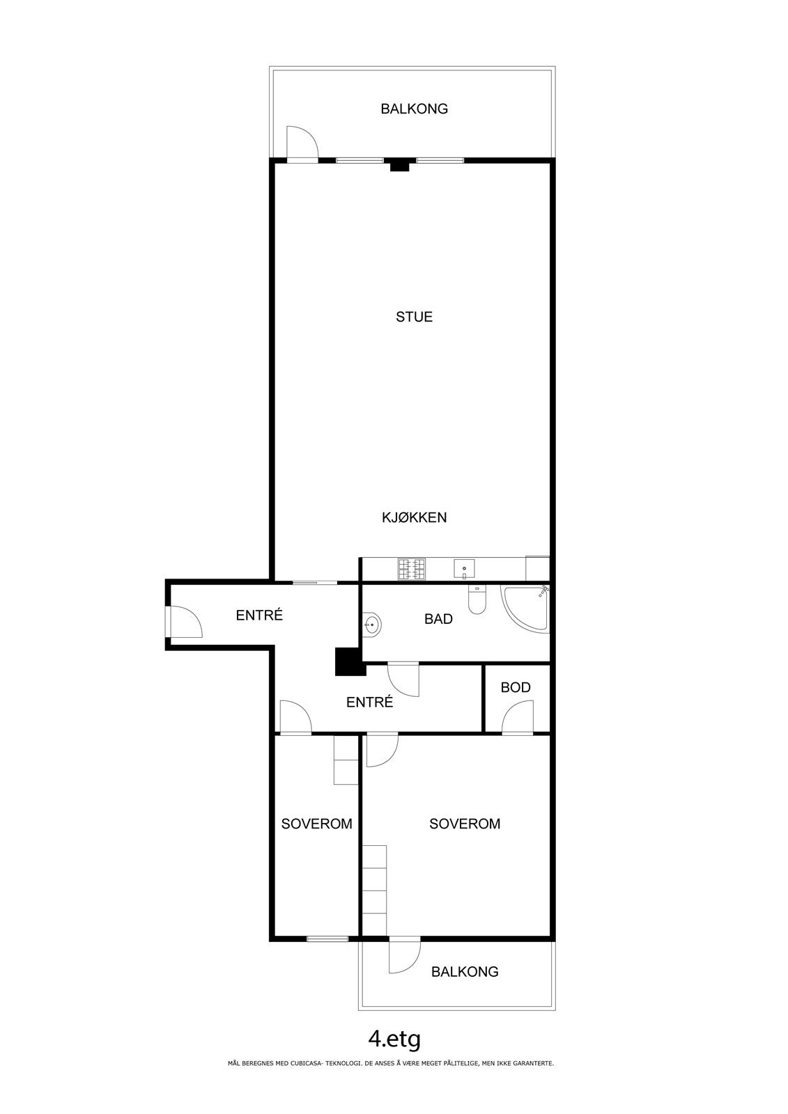
Romslig 3-roms i 4.etg. | Gjennomgående | 2 balkonger | Heis | Garasje
Prisantydning2 950 000 kr
Nøkkelinfo
- Boligtype
- Leilighet
- Eieform
- Andel
- Soverom
- 2
- Internt bruksareal
- 108 m² (BRA-i)
- Bruksareal
- 113 m²
- Eksternt bruksareal
- 5 m² (BRA-e)
- Balkong/Terrasse
- 15 m² (TBA)
- Etasje
- 4
- Byggeår
- 1979
- Energimerking
- D - Mørkegrønn
- Rom
- 3
- Tomteareal
- 1 568 m² (eiet)
Fasiliteter
Balkong/Terrasse
Garasje/P-plass
Heis
Kabel-TV
Offentlig vann/kloakk
Sentralt
Utsikt
Vaktmester-/vektertjeneste
Balansert ventilasjon
Visning
Ønsker du å delta på visningen ber vi om at du melder deg på slik at vi vet at du kommer. På den måten kan vi bistå deg best mulig og gi deg tid på visningen. Visningen avholdes bare dersom det er påmeldte 2 timer innen oppsatt visningstidspunkt. Ta gjerne kontakt med megler på telefon 906 78 774 før visningen, hvis du har noen spørsmål. Velkommen!
VisningspåmeldingOm boligen
3-roms som er gjennomgående leilighet beliggende i 4 etg.i St. Marieplass Borettslag som ligger vis-a-vis skoleparken. Romslig stue/kjøkken i en åpen løsning med utgang til balkong mot St.Marie gate. Fra hovedsoverom er utgang til den andre balkongen som ligger ut mot syd. Delikat bad med fliser på vegg og gulv, utstyrt med wc, dusj, servant i innredning og uttak for vaskemaskin og tørketrommel. Det er heis til leilighetene og garasjeanlegg som ligger i kjeller. Til byens torg og Kulåsparken er det ca 10 min gange.
Velkommen til St. Marie gate 42 presentert av eiendomsmegler Gjermund Haugeneset MNEF
- romslig stue/kjøkken
- 2 balkonger
- gjennomgående
- heis
- 2 soverom
- garasje
Velkommen til St. Marie gate 42 presentert av eiendomsmegler Gjermund Haugeneset MNEF
- romslig stue/kjøkken
- 2 balkonger
- gjennomgående
- heis
- 2 soverom
- garasje
NB: Knappen for å vise hele beskrivelsen har kun en visuell effekt.
NB: Knappen for å vise hele beskrivelsen har kun en visuell effekt.
Salgsoppgaven beskriver vesentlig og lovpålagt informasjon om eiendommen
Se komplett salgsoppgaveNyttige lenker
Nærområdet
EiendomsMegler 1 Sarpsborg
Annonseinformasjon
| FINN-kode | 376125781 |
|---|---|
| Sist endret | 13. jan. 2026 14:02 |
| Referanse | 5370240349 |
Annonsene kan være mangelfulle i forhold til lovpålagt opplysningsplikt. Før bindende avtale inngås oppfordres interessenter til å innhente komplett informasjon fra meglerforetaket, selger eller utleier.
































