Bildegalleri

Velkommen til Sentrum park og Eivind Torps veg 2!
SENTRUM
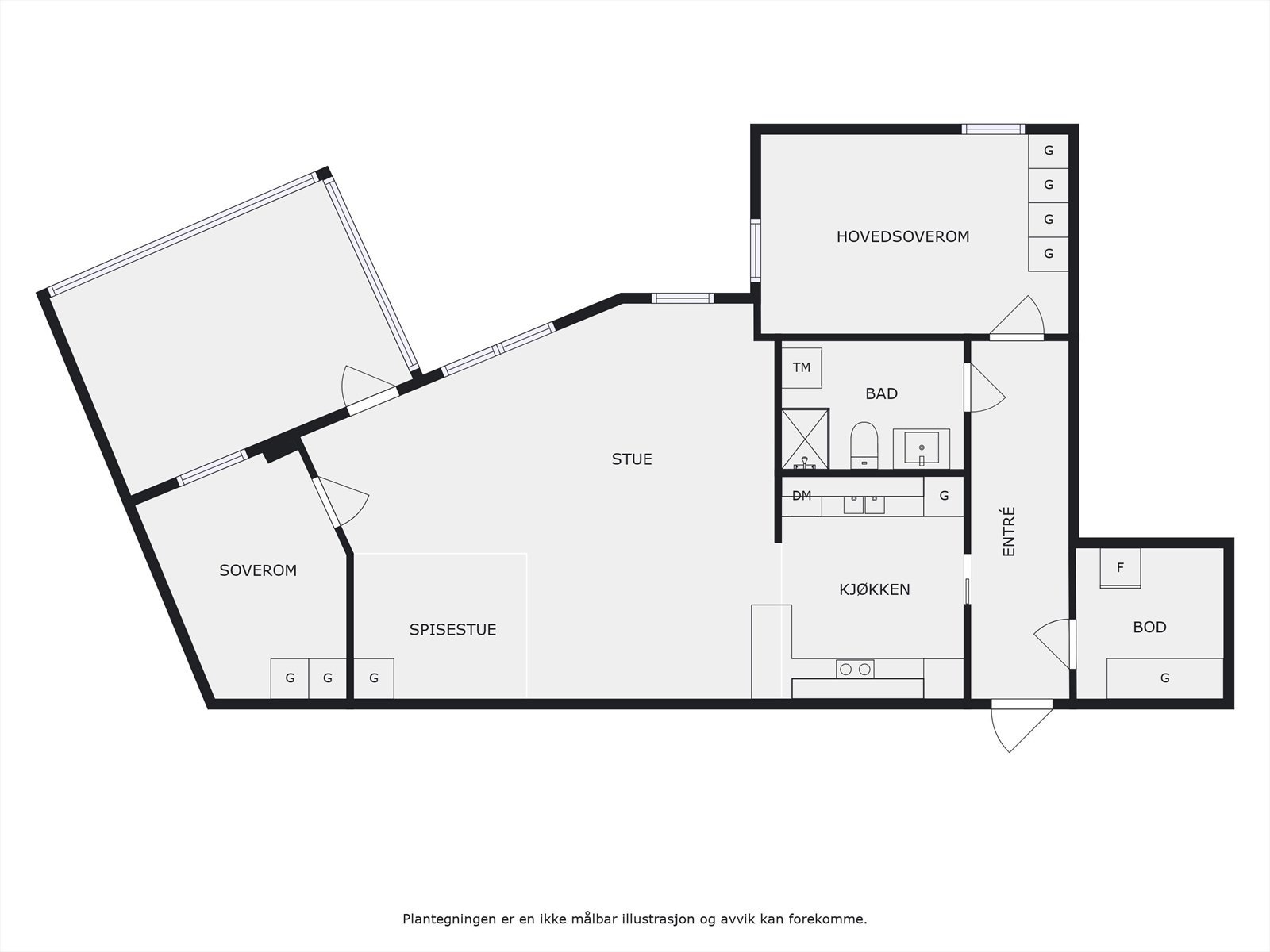
Lettstelt og moderne 3-roms selveierleilighet i 3.etasje m/ sentral beliggenhet midt i sentrum. Balkong, heis og garasje
Prisantydning4 190 000 kr
Nøkkelinfo
- Boligtype
- Leilighet
- Eieform
- Eier (Selveier)
- Soverom
- 2
- Internt bruksareal
- 83 m² (BRA-i)
- Bruksareal
- 97 m²
- Innglasset balkong
- 14 m² (BRA-b)
- Etasje
- 3
- Byggeår
- 2019
- Energimerking
- C - Mørkegrønn
- Rom
- 3
- Tomteareal
- 3 295 m² (eiet)
Fasiliteter
Balkong/Terrasse
Barnevennlig
Bredbåndstilknytning
Garasje/P-plass
Heis
Kjæledyr tillatt
Kabel-TV
Offentlig vann/kloakk
Parkett
Rolig
Sentralt
Vaktmester-/vektertjeneste
Turterreng
Balansert ventilasjon
Visning
mandag, 12. januar
18:00 – 18:30
Ved annonsert visning er det viktig at du melder deg på visningen ved å bruke visningspåmeldingsknappen eller kontakter megler. Annonserte visninger hvor det ikke er noen påmeldte innen kl. 16.00 dagen før visningsdagen vil ikke bli avholdt.
For visninger utover dette, ta direkte kontakt med megler.
Ta kontakt for å avtale visning utover oppsatt fellesvisning.
VisningspåmeldingOm boligen
Velkommen til Sentrum park og Eivind Torps veg 2!
En stor og moderne 3-roms selveierleilighet i et nyere og attraktivt bygg fra 2019. Leiligheten ligger i byggets 3. etasje og vender i sin helhet mot rolig og pent opparbeidet gårdsrom uten biltrafikk. Her bor du godt i et nyere bygg med vannbåren gulvvarme og garasjeplass i kjelleren med heis opp til leiligheten.
Sentrum Park ligger i Elverum sentrum med de fleste av byens fasiliteter i nærheten. Her ligger torget, kjøpesenter med forretninger og matbutikker like ved i tillegg til flere spisesteder, kaféer og servicetilbud. Glomma ligger rett nedenfor bygget med gang- og sykkelsti.
* Moderne bygg fra 2019
* Stor og flott innglasset balkong på ca. 14m²
* Vannbåren gulvvarme
* Balansert ventilasjon
* Garasjeplass og bod i kjeller
* Heis
En stor og moderne 3-roms selveierleilighet i et nyere og attraktivt bygg fra 2019. Leiligheten ligger i byggets 3. etasje og vender i sin helhet mot rolig og pent opparbeidet gårdsrom uten biltrafikk. Her bor du godt i et nyere bygg med vannbåren gulvvarme og garasjeplass i kjelleren med heis opp til leiligheten.
Sentrum Park ligger i Elverum sentrum med de fleste av byens fasiliteter i nærheten. Her ligger torget, kjøpesenter med forretninger og matbutikker like ved i tillegg til flere spisesteder, kaféer og servicetilbud. Glomma ligger rett nedenfor bygget med gang- og sykkelsti.
* Moderne bygg fra 2019
* Stor og flott innglasset balkong på ca. 14m²
* Vannbåren gulvvarme
* Balansert ventilasjon
* Garasjeplass og bod i kjeller
* Heis
NB: Knappen for å vise hele beskrivelsen har kun en visuell effekt.
NB: Knappen for å vise hele beskrivelsen har kun en visuell effekt.
Salgsoppgaven beskriver vesentlig og lovpålagt informasjon om eiendommen
Se komplett salgsoppgaveNærområdet
Aktiv Innlandet
Annonseinformasjon
| FINN-kode | 376108087 |
|---|---|
| Sist endret | 02. jan. 2026 12:27 |
| Referanse | 1211240414 |
Annonsene kan være mangelfulle i forhold til lovpålagt opplysningsplikt. Før bindende avtale inngås oppfordres interessenter til å innhente komplett informasjon fra meglerforetaket, selger eller utleier.






























