Bildegalleri

Eiendomsmegler Krogsveen v/Per Inge Hunvik ønsker velkommen til Vestbygata 6A
Solgt
Lillestrøm
Pen og lys 2-roms endeleilighet | Flott utsikt og solrik balkong | God planløsning | Parkeringsplass | Sentralt
Prisantydning3 500 000 kr
Nøkkelinfo
- Boligtype
- Leilighet
- Eieform
- Andel
- Soverom
- 1
- Internt bruksareal
- 52 m² (BRA-i)
- Bruksareal
- 61 m²
- Eksternt bruksareal
- 9 m² (BRA-e)
- Balkong/Terrasse
- 6 m² (TBA)
- Etasje
- 3
- Byggeår
- 1958
- Energimerking
- G - Rød
- Rom
- 2
- Tomteareal
- 9 062 m² (eiet)
Fasiliteter
Balkong/Terrasse
Barnevennlig
Bredbåndstilknytning
Garasje/P-plass
Hage
Kabel-TV
Offentlig vann/kloakk
Rolig
Sentralt
Utsikt
Turterreng
Om boligen
Vestbygata 6A er en romslig 2-roms endeleilighet med attraktiv beliggenhet. Kort gangavstand til Lillestrøm sentrum med alt av bymessige fasiliteter, men allikevel tilbaketrukket fra sentrumsstøy.
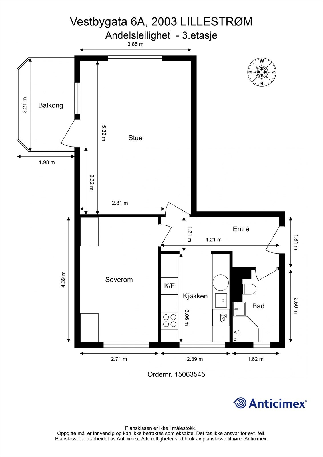
Leiligheten har god planløsning med entré, baderom, romslig stue, separat kjøkken og stort soverom med garderobeskap.
* Sydvendt balkong med flott utsyn.
* God lagringsplass i to medfølgende boder.
* Parkeringsplass og felles ladeanlegg for el-biler.
* Fyring via. radiator er inkl. i felleskostnadene.
Her bor du i sentrale omgivelser med kort vei til "alt" du trenger i hverdagen. Buss og nærbutikk finnes like utenfor døren.
Leiligheten har god planløsning med entré, baderom, romslig stue, separat kjøkken og stort soverom med garderobeskap.
* Sydvendt balkong med flott utsyn.
* God lagringsplass i to medfølgende boder.
* Parkeringsplass og felles ladeanlegg for el-biler.
* Fyring via. radiator er inkl. i felleskostnadene.
Her bor du i sentrale omgivelser med kort vei til "alt" du trenger i hverdagen. Buss og nærbutikk finnes like utenfor døren.
NB: Knappen for å vise hele beskrivelsen har kun en visuell effekt.
NB: Knappen for å vise hele beskrivelsen har kun en visuell effekt.
Salgsoppgaven beskriver vesentlig og lovpålagt informasjon om eiendommen
Se komplett salgsoppgaveNyttige lenker
Nærområdet
Krogsveen Lillestrøm
Verdien av en god megler.
Prisstatistikk
Vestbygata 6A
1 205 klikk
på annonsen
69 174 kr
prisantydning per kvadratmeter
Prisfordeling
Pris per m² ligger 2 826 kr under snittet for leiligheter i Skedsmo.
Grafen viser antall leiligheter solgt i Skedsmo siste året fordelt på pris per m² - totalt 999 leiligheter
Antall boliger
Kvadratmeterpris tilsvarer prisantydning pluss fellesgjeld per kvadratmeter (p-rom eller BRA-i). Prisene i grafen er avrundet til nærmeste 1000 kr.
Annonseinformasjon
| FINN-kode | 375988736 |
|---|---|
| Sist endret | 27. okt. 2024 13:39 |
| Referanse | KR60.24390 |
Annonsene kan være mangelfulle i forhold til lovpålagt opplysningsplikt. Før bindende avtale inngås oppfordres interessenter til å innhente komplett informasjon fra meglerforetaket, selger eller utleier.
































