Bildegalleri

EiendomsMegler1 har gleden av å presentere Nordre Langgate 82! Foto: Thomassen Friluft
NY PRIS! Stor enebolig med garasje og sentral plassering i Vardø | 3 plan | Romslig planløsning
Prisantydning1 800 000 kr
Nøkkelinfo
- Boligtype
- Enebolig
- Eieform
- Eier (Selveier)
- Soverom
- 3
- Internt bruksareal
- 249 m² (BRA-i)
- Bruksareal
- 294 m²
- Eksternt bruksareal
- 45 m² (BRA-e)
- Byggeår
- 1950
- Energimerking
- E - Oransje
- Rom
- 5
- Tomteareal
- 439 m² (festet)
- Festeavgift
- 1 200 kr
Fasiliteter
Barnevennlig
Balkong/Terrasse
Garasje/P-plass
Kabel-TV
Offentlig vann/kloakk
Ingen gjenboere
Peis/Ildsted
Sentralt
Bredbåndstilknytning
Moderne
Rolig
Om boligen
Eiendomsmegler1 presenterer Nordre Langgate 82.
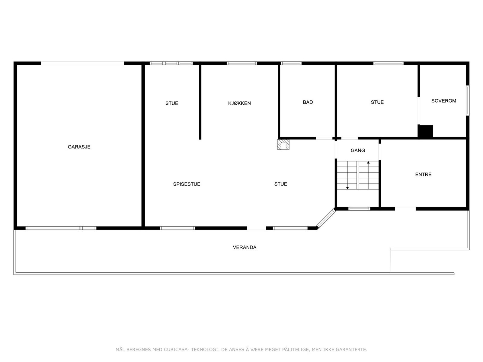
Dette er en romslig enebolig over tre plan. Boligen er beliggende nord på Vardøya med kort avstand til Vardøs fasiliteter. Boligen ligger på en hjørnetomt, med noe hageareal og parkering i tilbygd garasje. Boligen har vært jevnlig vedlikehold og større oppgraderinger er gjennomført i senere tid.
Dette er en romslig enebolig over tre plan. Boligen er beliggende nord på Vardøya med kort avstand til Vardøs fasiliteter. Boligen ligger på en hjørnetomt, med noe hageareal og parkering i tilbygd garasje. Boligen har vært jevnlig vedlikehold og større oppgraderinger er gjennomført i senere tid.
NB: Knappen for å vise hele beskrivelsen har kun en visuell effekt.
NB: Knappen for å vise hele beskrivelsen har kun en visuell effekt.
Salgsoppgaven beskriver vesentlig og lovpålagt informasjon om eiendommen
Se komplett salgsoppgaveNyttige lenker
Nærområdet
EiendomsMegler 1 Kirkenes
Vi loser deg trygt gjennom hele boligsalget
Annonsene kan være mangelfulle i forhold til lovpålagt opplysningsplikt. Før bindende avtale inngås oppfordres interessenter til å innhente komplett informasjon fra meglerforetaket, selger eller utleier.

































