Bildegalleri

En delikat 2-roms andelsleilighet med sentral og attraktiv beliggenhet. Romslig stue/kjøkken på ca. 24,5m² med ypperlige møbleringsmuligheter
Solgt
MØLLENBERG/ BURAN
INNBYDENDE & PEN 2-ROMS MED BAD FRA 2021 | Kort vei til solsiden | Heis | Felles takterrasse | Parkeringsmulighet
Prisantydning2 890 000 kr
Nøkkelinfo
- Boligtype
- Leilighet
- Eieform
- Andel
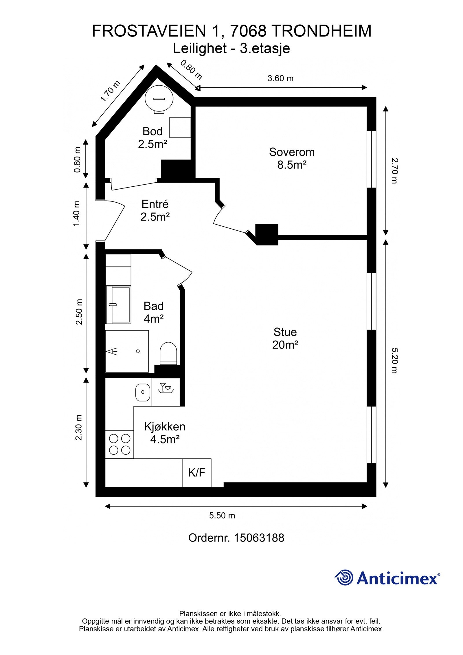
- Soverom
- 1
- Internt bruksareal
- 45 m² (BRA-i)
- Bruksareal
- 45 m²
- Etasje
- 3
- Byggeår
- 1940
- Energimerking
- G - Rød
- Tomt
- Eiet
Fasiliteter
Balkong/Terrasse
Barnevennlig
Bredbåndstilknytning
Garasje/P-plass
Heis
Kabel-TV
Moderne
Offentlig vann/kloakk
Rolig
Sentralt
Utsikt
Om boligen
EIE eiendomsmegling v/Daniel Bruce presenterer Frostaveien 1 - En innbydende og moderne 2-roms leilighet med god beliggenhet på Buran/Møllenberg. Her bor man i gang- og sykkelavstand til Solsiden, Trondheim Torg og byens studiesteder.
Kvaliteter som fremheves:
- Nydelig 2-roms med en god planløsning og fine rom.
- Lekkert flislagt bad fra 2021 med gulvvarme.
- Solrik felles takterrasse med flere sittegrupper hvor man kan grille og nyte varme sommerdager.
- Stort hobbyrom som kan disponeres av alle beboere.
- Tilgang til heis i bygget.
- Veldig bra kollektivtilbud.
- Rikelig med lagringsplass i bod i leilighet og på loft.
- Ingen dok.avgift.
- Kort avstand til Solsiden og sentrum.
- Borettslaget leier ut garasjeplasser m/lademuligheter, hvor beboere kan leie fast parkeringsplass til kr. 475 pr mnd.
Velkommen på visning!
NB: Knappen for å vise hele beskrivelsen har kun en visuell effekt.
NB: Knappen for å vise hele beskrivelsen har kun en visuell effekt.
Salgsoppgaven beskriver vesentlig og lovpålagt informasjon om eiendommen
Se komplett salgsoppgaveNærområdet
EIE eiendomsmegling Trondheim sentrum
Annonseinformasjon
| FINN-kode | 375787438 |
|---|---|
| Sist endret | 29. nov. 2024 16:59 |
| Referanse | 133240236 |
Annonsene kan være mangelfulle i forhold til lovpålagt opplysningsplikt. Før bindende avtale inngås oppfordres interessenter til å innhente komplett informasjon fra meglerforetaket, selger eller utleier.
































