Bildegalleri

DNB Eiendom ved Michael Almvik Meyer og Nvar G. Helan har gleden av å presentere Løvliveien 19!
Inaktiv
Begby
Rålekker funkisbolig med usjenert beliggenhet innerst i blindvei | Gode solforhold | Stor tomt | Garasje | 4 soverom
Prisantydning7 250 000 kr
Nøkkelinfo
- Boligtype
- Enebolig
- Eieform
- Eier (Selveier)
- Soverom
- 4
- Internt bruksareal
- 185 m² (BRA-i)
- Bruksareal
- 185 m²
- Balkong/Terrasse
- 177 m² (TBA)
- Byggeår
- 2007
- Tomteareal
- 1 048 m² (eiet)
Fasiliteter
Balkong/Terrasse
Barnevennlig
Bredbåndstilknytning
Garasje/P-plass
Hage
Offentlig vann/kloakk
Rolig
Sentralt
Turterreng
Visning
Velkommen til visning! Meld deg på ved å trykke "visningspåmelding" i våre boligannonser. Ta gjerne kontakt med megler i forkant av visningen om du har spørsmål.
Ta også kontakt for privatvisning utenom oppsatt tidspunkt!
VisningspåmeldingOm boligen
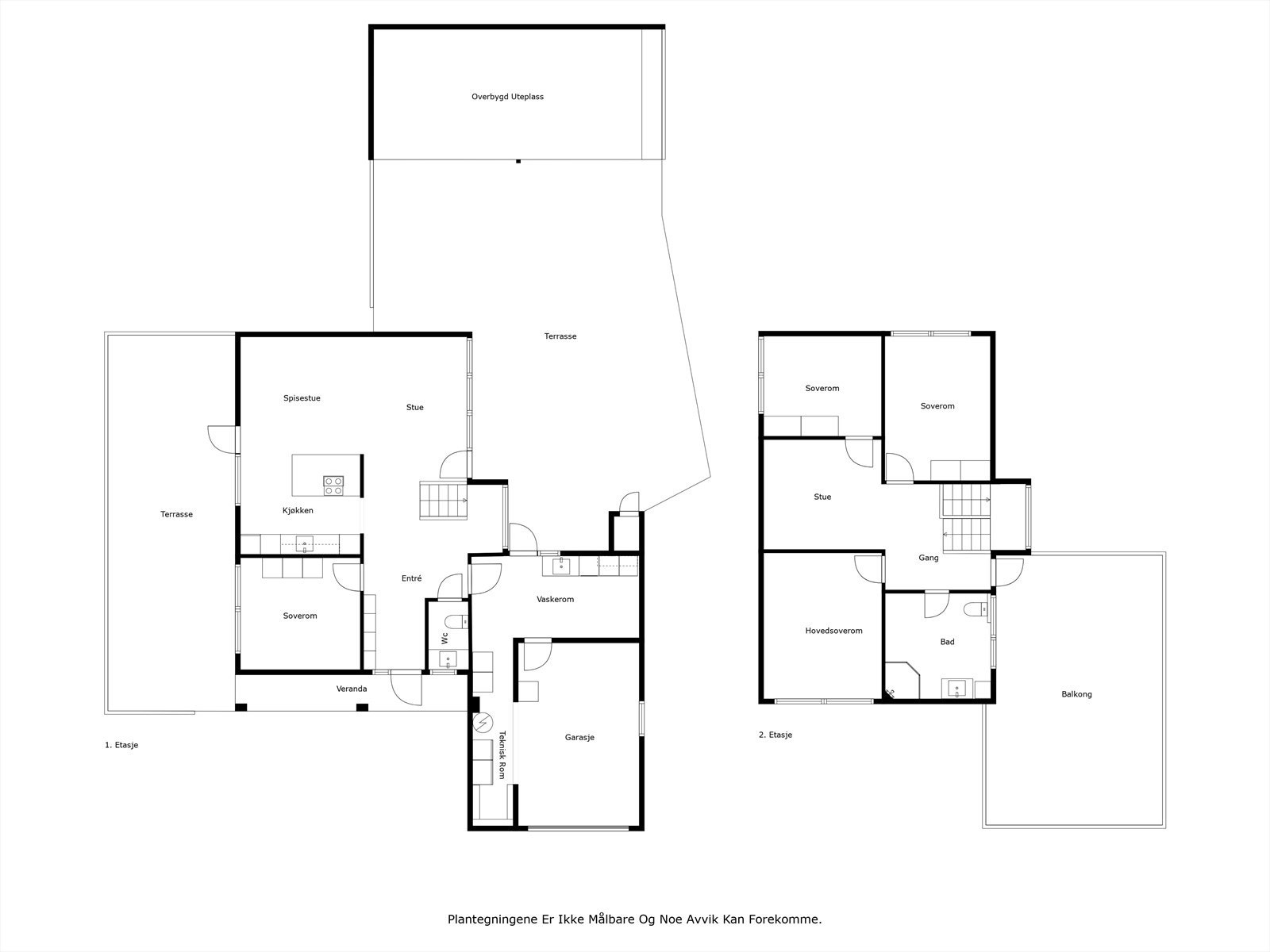
Velkommen til Løvliveien 19 - En gjennomført, moderne og innholdsrik familiebolig med rolig og barnevennlig beliggenhet på populære Begby. Eiendommen er solrik og har flotte uteområder med stor hage, terrasseplattinger og gårdsplass. Her er masse boltreplass for barn i alle aldre. Eneboligen er oppført med to etasjer og har en meget praktisk planløsning med blant annet 4 soverom, bad, vaskerom, wc, stue/kjøkken og TV-stue. Rikelig med parkering i integrert garasje og romslig gårdsplass.
Fra eiendommen er det kort vei til lysløype, golfbane samt flotte tur- og rekreasjonsmuligheter i skog og mark. Et steinkast unna ligger en idyllisk andedam. Kun ca 6 minutter med bil til Fredrikstad sentrum og ca 3 km til Gamlebyen. Gangavstand til barnehage og kort kjørevei til flere skoler.
Fra eiendommen er det kort vei til lysløype, golfbane samt flotte tur- og rekreasjonsmuligheter i skog og mark. Et steinkast unna ligger en idyllisk andedam. Kun ca 6 minutter med bil til Fredrikstad sentrum og ca 3 km til Gamlebyen. Gangavstand til barnehage og kort kjørevei til flere skoler.
NB: Knappen for å vise hele beskrivelsen har kun en visuell effekt.
NB: Knappen for å vise hele beskrivelsen har kun en visuell effekt.
Salgsoppgaven beskriver vesentlig og lovpålagt informasjon om eiendommen
Se komplett salgsoppgaveNyttige lenker
Nærområdet
DNB Eiendom AS
Fra hjem til hjem
Annonseinformasjon
| FINN-kode | 375656812 |
|---|---|
| Sist endret | 26. aug. 2025 09:39 |
| Referanse | 217240233 |
Annonsene kan være mangelfulle i forhold til lovpålagt opplysningsplikt. Før bindende avtale inngås oppfordres interessenter til å innhente komplett informasjon fra meglerforetaket, selger eller utleier.


























































