Bildegalleri

Velkommen til Sannergata 38C, presentert av Schala & Partners ved Kjerstin Falkum, tlf. 922 04 707.
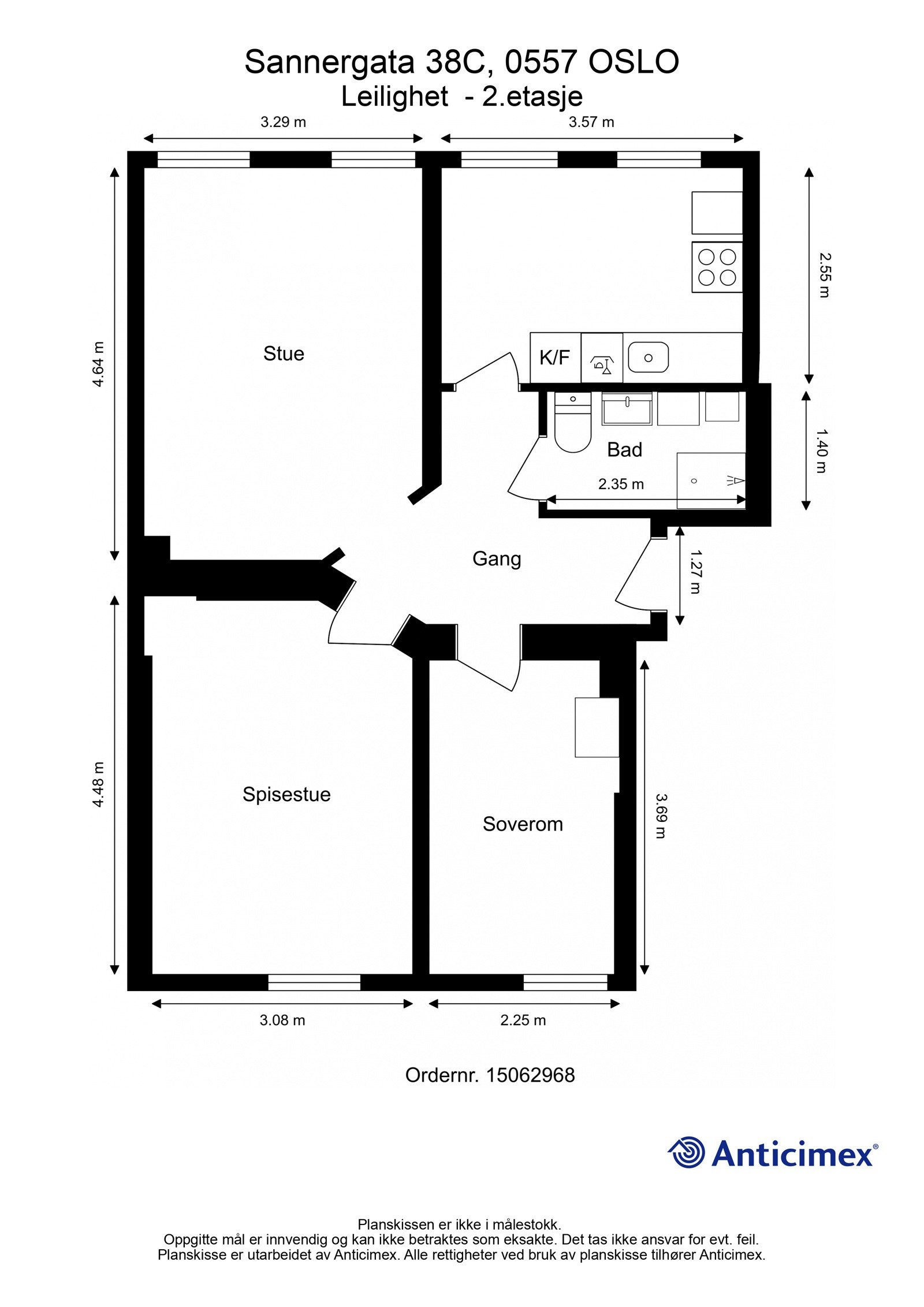
Klassisk og gjennomgående 3-roms | 60 kvm | God takhøyde | Moderniseringsbehov med masse potensiale!
Nøkkelinfo
- Boligtype
- Leilighet
- Eieform
- Andel
- Soverom
- 2
- Internt bruksareal
- 60 m² (BRA-i)
- Bruksareal
- 69 m²
- Eksternt bruksareal
- 9 m² (BRA-e)
- Etasje
- 2
- Byggeår
- 1904
- Energimerking
- G - Rød
- Tomteareal
- 730 m² (eiet)
Fasiliteter
Visning
Om boligen
Velkommen til en lys og klassisk 3-roms med attraktiv og tilbaketrukket beliggenhet. Leiligheten byr på en gjennomgående planløsning, store vindusflater, samt fin takhøyde som gir gode innvendige lysforhold og en luftig atmosfære. Flere klassiske detaljer som originale tregulv og stukkatur. Leilighet med noe moderniseringsbehov og masse potensiale.
Sentral beliggenhet på Grünerløkka samtidig som den ligger skjermet og tilbaketrukket til, med adkomst via lukket bakgård og vendt mot blindgate. Her bor du i nærheten av alt du trenger.
- Gjennomgående planløsning
- God takhøyde (opptil 2,90m)
- Klassiske detaljer
- Kjøkken i eget rom
- Overflater malt i 22/24
- Vinduer i stue og kjøkken fra 2018
- Mulighet for peis
- Bod i 2.etasje
- Kjellerbod på 7m²
- Veldrevet og hyggelig borettslag
- Ingen forkjøpsrett
Salgsoppgaven beskriver vesentlig og lovpålagt informasjon om eiendommen
Se komplett salgsoppgaveNyttige lenker
Nærområdet
Schala & Partners Carl Berner
Annonseinformasjon
| FINN-kode | 375545777 |
|---|---|
| Sist endret | 12. des. 2024 13:10 |
| Referanse | 17240105 |
Annonsene kan være mangelfulle i forhold til lovpålagt opplysningsplikt. Før bindende avtale inngås oppfordres interessenter til å innhente komplett informasjon fra meglerforetaket, selger eller utleier.































