Bildegalleri

Velkommen til Kamper Bas 26!
Solgt
Kamper Bas
Innholdsrik enebolig med barnevennlig beliggenhet og fin utsikt!
Prisantydning4 390 000 kr
Nøkkelinfo
- Boligtype
- Enebolig
- Eieform
- Eier (Selveier)
- Soverom
- 3
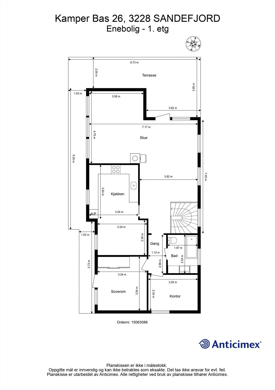
- Internt bruksareal
- 162 m² (BRA-i)
- Bruksareal
- 183 m²
- Eksternt bruksareal
- 21 m² (BRA-e)
- Balkong/Terrasse
- 39 m² (TBA)
- Etasje
- 2
- Byggeår
- 1983
- Energimerking
- F - Oransje
- Rom
- 5
- Tomteareal
- 737 m² (eiet)
Fasiliteter
Balkong/Terrasse
Barnevennlig
Bredbåndstilknytning
Garasje/P-plass
Hage
Kjæledyr tillatt
Kabel-TV
Offentlig vann/kloakk
Peis/Ildsted
Rolig
Sentralt
Utsikt
Turterreng
Om boligen
Velkommen til Kamper Bas 26 - En romslig og fleksibel familiebolig med meget fin utsikt!
Eiendommen ligger i et rolig, barnevennlig nabolag, perfekt for familier og dem som setter pris på et fredelig bomiljø samtidig som man har gangavstand til bykjernen. Område byr på fine turområder (Preståsen), lekeplasser, og Sandefjord sentrum, som tilbyr et variert utvalg av butikker, kafeer og kulturelle opplevelser. Boligen byr på en praktisk og innbydende planløsning, stor gårdsplass, fine uteområder og flott utsikt over omkringliggende områder.
Eiendommen er beliggende i en blindvei uten gjennomgangstrafikk og det er kun 6 boliger i denne stikkveien.
Boligens hovedetasje ble renovert i 2018 med nye overflater samt belysning!
Opprinnelig 4 soverom i boligen!
Velkommen til visning!
Eiendommen ligger i et rolig, barnevennlig nabolag, perfekt for familier og dem som setter pris på et fredelig bomiljø samtidig som man har gangavstand til bykjernen. Område byr på fine turområder (Preståsen), lekeplasser, og Sandefjord sentrum, som tilbyr et variert utvalg av butikker, kafeer og kulturelle opplevelser. Boligen byr på en praktisk og innbydende planløsning, stor gårdsplass, fine uteområder og flott utsikt over omkringliggende områder.
Eiendommen er beliggende i en blindvei uten gjennomgangstrafikk og det er kun 6 boliger i denne stikkveien.
Boligens hovedetasje ble renovert i 2018 med nye overflater samt belysning!
Opprinnelig 4 soverom i boligen!
Velkommen til visning!
NB: Knappen for å vise hele beskrivelsen har kun en visuell effekt.
NB: Knappen for å vise hele beskrivelsen har kun en visuell effekt.
Salgsoppgaven beskriver vesentlig og lovpålagt informasjon om eiendommen
Se komplett salgsoppgaveNyttige lenker
Nærområdet
Krogsveen Sandefjord
Verdien av en god megler.
Annonseinformasjon
| FINN-kode | 375500764 |
|---|---|
| Sist endret | 23. jan. 2026 13:26 |
| Referanse | KR22.24346 |
Annonsene kan være mangelfulle i forhold til lovpålagt opplysningsplikt. Før bindende avtale inngås oppfordres interessenter til å innhente komplett informasjon fra meglerforetaket, selger eller utleier.

































