Bildegalleri

Nå kan denne drømmeleiligheten i Vestfoldgata 2A bli din!
Solgt
ROLIG SIDEGATE I GAMLEBYEN
Nydelig, klassisk og påkostet 3(4)-roms leilighet - Stort sosialt kjøkken - 2 peisovner - P-plass*
Prisantydning6 600 000 kr
Nøkkelinfo
- Boligtype
- Leilighet
- Eieform
- Andel
- Soverom
- 2
- Internt bruksareal
- 74 m² (BRA-i)
- Bruksareal
- 80 m²
- Eksternt bruksareal
- 6 m² (BRA-e)
- Byggeår
- 1905
- Energimerking
- G - Oransje
- Rom
- 3
- Tomteareal
- 883 m² (eiet)
Fasiliteter
Barnevennlig
Bredbåndstilknytning
Garasje/P-plass
Kjæledyr tillatt
Offentlig vann/kloakk
Peis/Ildsted
Rolig
Sentralt
Om boligen
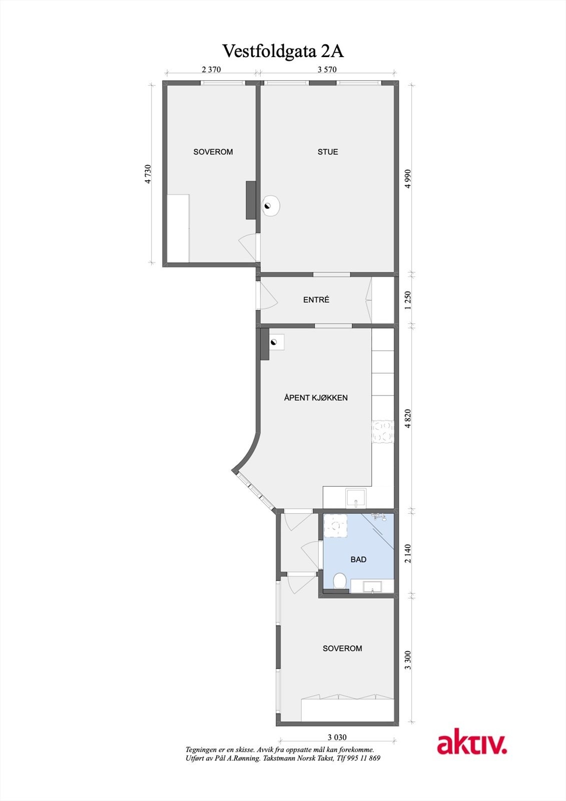
Et drømmehjem kan være så mangt, men for de fleste er det en bolig med en unik sjarm, og en stemning som er til å ta og føle på. Høyt på ønskelista er også en klassisk bygårdsleilighet med vakre detaljer og herlig takhøyde.
Denne lekre og uvanlig store 3-roms leiligheten har alt dette, i tillegg til en svært rolig og tilbaketrukket beliggenhet i hjertet av Gamlebyen. Den gode takhøyden og vinduer på begge sider skaper en svært god romfølelse, og det sosiale kjøkkenet blir garantert ditt favoritt oppholdssted. Leiligheten kan ellers by på en koselig stue med peis, to soverom og et romslig bad.
- Lekkert spisekjøkken (2019)
- Stukkatur, rosett, store vinduer og god takhøyde
- Stilrent bad (2015)
- Nytt gulv (2021)
- Mul. for 3 soverom
- Leie av p-plass kr. 300,- pr mnd
Denne lekre og uvanlig store 3-roms leiligheten har alt dette, i tillegg til en svært rolig og tilbaketrukket beliggenhet i hjertet av Gamlebyen. Den gode takhøyden og vinduer på begge sider skaper en svært god romfølelse, og det sosiale kjøkkenet blir garantert ditt favoritt oppholdssted. Leiligheten kan ellers by på en koselig stue med peis, to soverom og et romslig bad.
- Lekkert spisekjøkken (2019)
- Stukkatur, rosett, store vinduer og god takhøyde
- Stilrent bad (2015)
- Nytt gulv (2021)
- Mul. for 3 soverom
- Leie av p-plass kr. 300,- pr mnd
NB: Knappen for å vise hele beskrivelsen har kun en visuell effekt.
NB: Knappen for å vise hele beskrivelsen har kun en visuell effekt.
Salgsoppgaven beskriver vesentlig og lovpålagt informasjon om eiendommen
Se komplett salgsoppgaveNærområdet
Aktiv Gamle Oslo/Bjørvika
Prisstatistikk
Vestfoldgata 2A
3 889 klikk
på annonsen
91 756 kr
prisantydning per kvadratmeter
Prisfordeling
Pris per m² ligger 11 244 kr under snittet for leiligheter i Gamle Oslo.
Grafen viser antall leiligheter solgt i Gamle Oslo siste året fordelt på pris per m² - totalt 2 068 leiligheter
Antall boliger
Kvadratmeterpris tilsvarer prisantydning pluss fellesgjeld per kvadratmeter (p-rom eller BRA-i). Prisene i grafen er avrundet til nærmeste 1000 kr.
Annonseinformasjon
| FINN-kode | 374481424 |
|---|---|
| Sist endret | 18. feb. 2025 08:40 |
| Referanse | 1002240304 |
Annonsene kan være mangelfulle i forhold til lovpålagt opplysningsplikt. Før bindende avtale inngås oppfordres interessenter til å innhente komplett informasjon fra meglerforetaket, selger eller utleier.





































