Bildegalleri

Velkommen til Risør
Flytt rett inn i 3-roms moderne selveier med nydelig sjøutsikt, solrik terrasse, 2 bad og garasjeplass
Prisantydning3 400 000 kr
Nøkkelinfo
- Boligtype
- Leilighet
- Eieform
- Eier (Selveier)
- Soverom
- 2
- Primærrom
- 70 m²
- Bruksareal
- 77 m²
- Etasje
- 1
- Byggeår
- 2023
- Energimerking
- B - Mørkegrønn
- Tomteareal
- 4 155 m² (eiet)
Fasiliteter
Barnevennlig
Balkong/Terrasse
Garasje/P-plass
Heis
Offentlig vann/kloakk
Ingen gjenboere
Parkett
Turterreng
Utsikt
Sentralt
Bredbåndstilknytning
Moderne
Rolig
Lademulighet
Balansert ventilasjon
Om boligen
Velkommen til Grevlingen 28, en topp moderne hjørneleilighet med privat terrasse, gjennomtenkt planløsning og fantastisk utsikt. Boligen er strategisk plassert med optimale solforhold gjennom hele dagen. Her bor du i et naturskjønt område med nærhet til både turområder, skjærgård og Risør sentrum.
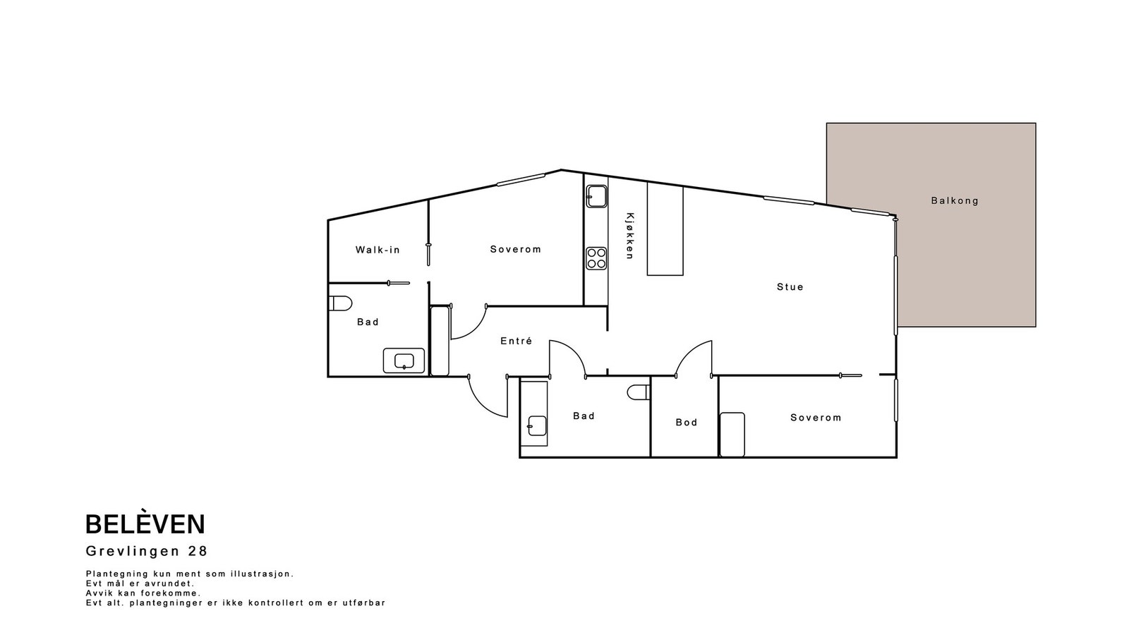
Leiligheten har en åpen og luftig planløsning med en lun og harmonisk fargepalett. En innbydende entré leder deg direkte til stuen hvor et stilrent kjøkken ligger i åpen løsning. Den praktiske kjøkkenøyen gir ekstra arbeidsplass med sitteplass og gir et naturlig skille til stuen. Fra stuen har man direkte utgang til en stor terrasse hvor solen og utsikten kan nytes til det fulle. Videre byr leiligheten på to flislagt baderom og to soverom, hvorav hovedsoverommet ligger i suiteløsning med walk-through og baderommet. Det er også god oppbevaringsplass i innvendig bod, samt at leiligheten disponerer to boder i garasjeanlegg.
Leiligheten disponerer én garasjeplass med mulighet for elbil-lader.
Leiligheten har en åpen og luftig planløsning med en lun og harmonisk fargepalett. En innbydende entré leder deg direkte til stuen hvor et stilrent kjøkken ligger i åpen løsning. Den praktiske kjøkkenøyen gir ekstra arbeidsplass med sitteplass og gir et naturlig skille til stuen. Fra stuen har man direkte utgang til en stor terrasse hvor solen og utsikten kan nytes til det fulle. Videre byr leiligheten på to flislagt baderom og to soverom, hvorav hovedsoverommet ligger i suiteløsning med walk-through og baderommet. Det er også god oppbevaringsplass i innvendig bod, samt at leiligheten disponerer to boder i garasjeanlegg.
Leiligheten disponerer én garasjeplass med mulighet for elbil-lader.
NB: Knappen for å vise hele beskrivelsen har kun en visuell effekt.
NB: Knappen for å vise hele beskrivelsen har kun en visuell effekt.
Salgsoppgaven beskriver vesentlig og lovpålagt informasjon om eiendommen
Se komplett salgsoppgaveNyttige lenker
Nærområdet
Belèven Eiendomsmegling
Annonsene kan være mangelfulle i forhold til lovpålagt opplysningsplikt. Før bindende avtale inngås oppfordres interessenter til å innhente komplett informasjon fra meglerforetaket, selger eller utleier.

























