Bildegalleri

EIE eiendomsmegling v/Daniel Bruce presenterer en flott og moderne tomannsbolig på hele 157 kvadratmeter. Glimrende beliggenhet i rolige omgivelser og nærme marka!
Tomannsbolig med fantastisk beliggenhet | Gode solforhold | Carport m/lader | Mulighet for utleie - kr 8 500,- /mnd
Nøkkelinfo
- Boligtype
- Tomannsbolig
- Eieform
- Eier (Selveier)
- Soverom
- 3
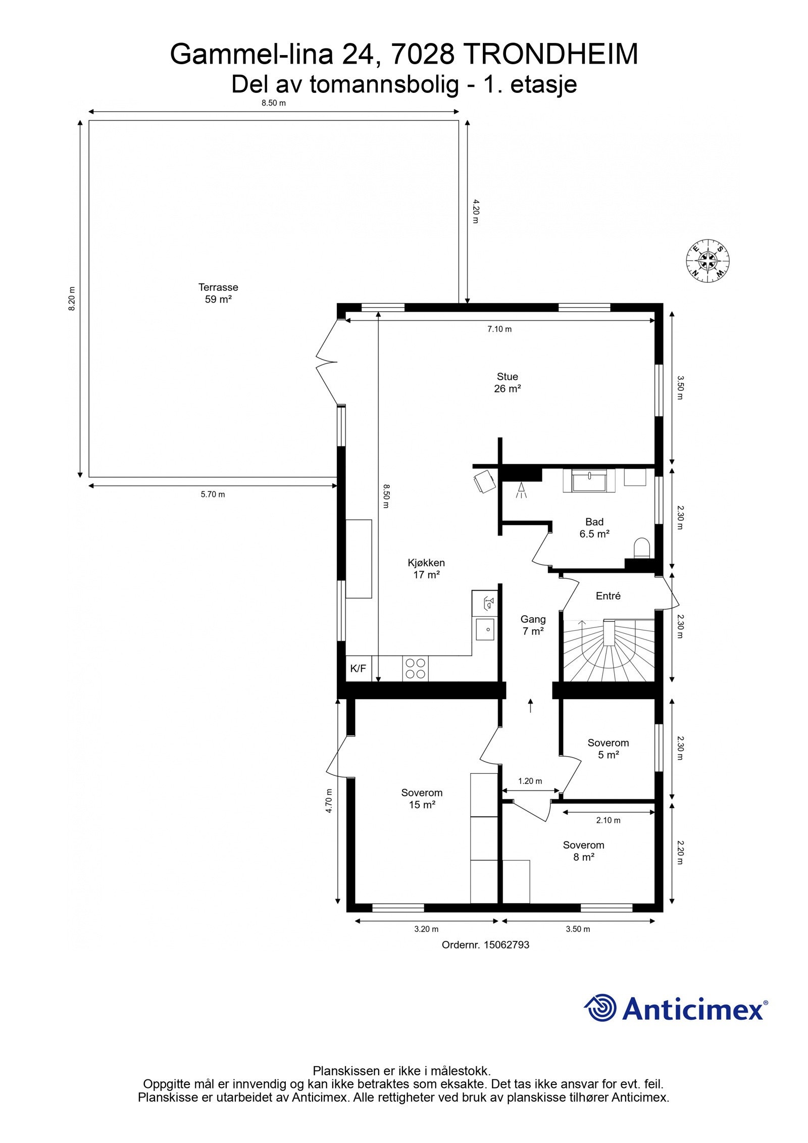
- Internt bruksareal
- 146 m² (BRA-i)
- Bruksareal
- 157 m²
- Eksternt bruksareal
- 11 m² (BRA-e)
- Balkong/Terrasse
- 59 m² (TBA)
- Byggeår
- 1939
- Energimerking
- F - Gul
- Rom
- 5
- Tomteareal
- 1 025 m² (eiet)
Fasiliteter
Om boligen
EIE eiendomsmegling ved Daniel Bruce har gleden av å presentere Gammel-lina 24!
En flott og innholdsrik tomannsbolig over to plan som har vært gjenstand for større oppgraderinger. Her bor du i et veletablert og rolig område, med solrik tomt og flere fine uteområder. Boligen har mulighet for utleie i kjeller, noe som gir ekstra inntektsmuligheter eller plass til gjester. I tillegg finner du en praktisk carport med elbillader, som sørger for moderne bekvemmelighet. Her får du et hjem som kombinerer komfort, funksjonalitet og en flott beliggenhet!
Merk deg dette:
- Mulighet for utleie - kr 8 500,- /mnd
- Carport med elbillader
- Sørvendt og solrik terrasse
- Rolig område uten gjennomgangstrafikk
- Nærhet til "alt" man måtte trenge i hverdagen
- Store oppgraderinger fra 2020-2024
Velkommen til visning!
Salgsoppgaven beskriver vesentlig og lovpålagt informasjon om eiendommen
Se komplett salgsoppgaveNærområdet
EIE eiendomsmegling Trondheim sentrum
Annonseinformasjon
| FINN-kode | 374230134 |
|---|---|
| Sist endret | 09. des. 2024 10:54 |
| Referanse | 133240229 |
Annonsene kan være mangelfulle i forhold til lovpålagt opplysningsplikt. Før bindende avtale inngås oppfordres interessenter til å innhente komplett informasjon fra meglerforetaket, selger eller utleier.


































