Bildegalleri

Benjamin Ådna v/ Nordvik har gleden av å presentere denne lekre 3-roms leiligheten i populære Gråbeinskvartalet. Tøyens svar på Bakkebygrenda med et eventyrlig gårdsrom og Botanisk hage som nærmeste nabo!
Solgt
Populære Tøyenhagen v/ Botanisk hage
Lekker, sjarmerende 3-roms i populært borettslag - Balkong mot Tøyens fineste bakgård - God takhøyde 3m - Peis
Prisantydning7 950 000 kr
Nøkkelinfo
- Boligtype
- Leilighet
- Eieform
- Andel
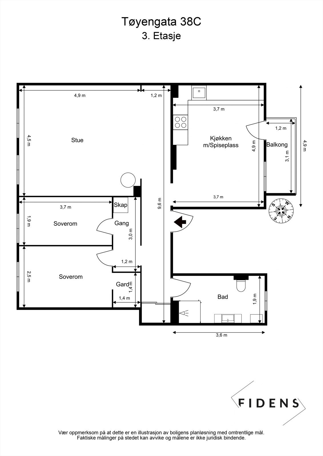
- Soverom
- 2
- Internt bruksareal
- 88 m² (BRA-i)
- Bruksareal
- 97 m²
- Eksternt bruksareal
- 9 m² (BRA-e)
- Balkong/Terrasse
- 4 m² (TBA)
- Etasje
- 3
- Byggeår
- 1887
- Energimerking
- G - Oransje
- Rom
- 3
- Tomteareal
- 659 m² (eiet)
Om boligen
Benjamin Ådna v/ Nordvik har gleden av å presentere denne lekre 3-roms leiligheten i populære Gråbeinskvartalet. Tøyens svar på Bakkebygrenda med et eventyrlig gårdsrom og Botanisk hage som nærmeste nabo! Bakgården er virkelig en sentral del av det å bo her, og må oppleves. Her arrangeres det felles utekino, teltovernatting, 17. mai, juleverksted, sommerfest mm.
- Idyllisk balkong mot Tøyens fineste bakgård
- God takhøyde på ca. 3m og store vindusflater
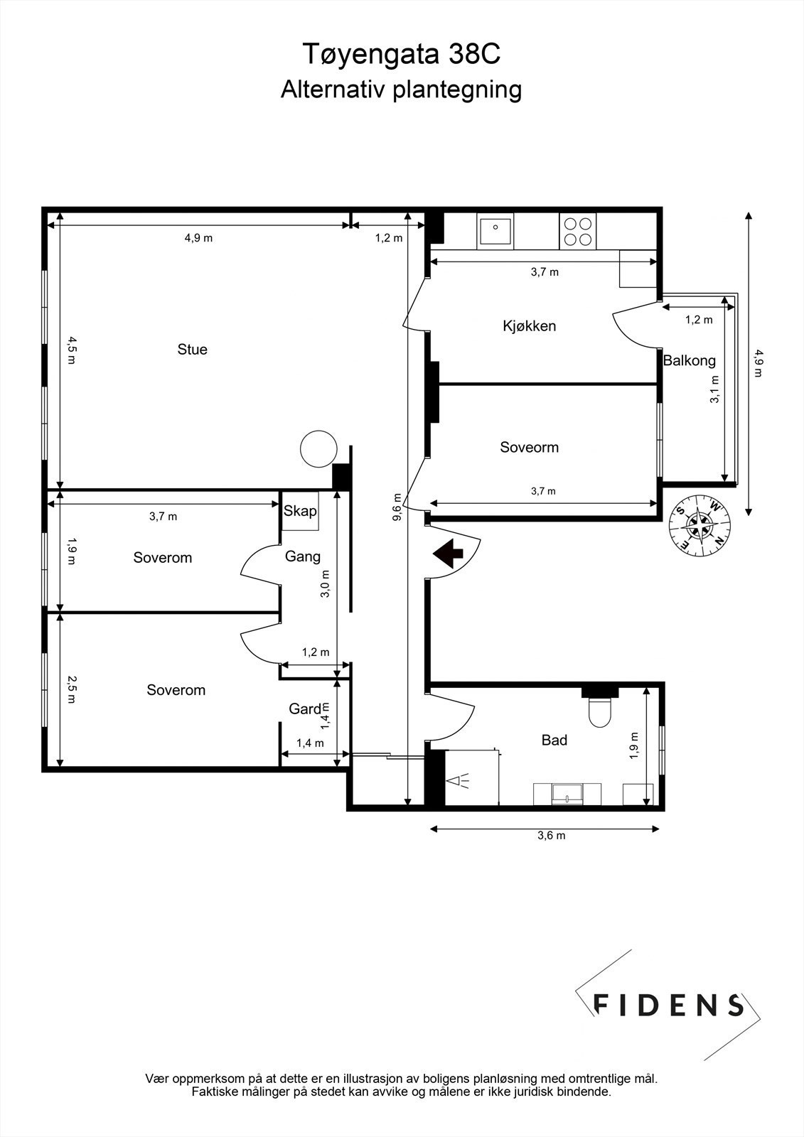
- Mulighet for 3 soverom, se alt. plantegning
- Moderne peis og original teglsten
- Nyere heltre Moelven furugulv
- Eget bakgårdshus til utleie for beboere
- Kjellerbod på 6m² og trappebod på 3m²
- Godt bomiljø - Veldrevet borettslag
- Stort delikat bad med vindu, uten innsyn
NB: Knappen for å vise hele beskrivelsen har kun en visuell effekt.
NB: Knappen for å vise hele beskrivelsen har kun en visuell effekt.
Salgsoppgaven beskriver vesentlig og lovpålagt informasjon om eiendommen
Se komplett salgsoppgaveNyttige lenker
Nærområdet
Nordvik Majorstuen
Annonseinformasjon
| FINN-kode | 373599526 |
|---|---|
| Sist endret | 11. feb. 2025 09:50 |
| Referanse | 8-0459/24 |
Annonsene kan være mangelfulle i forhold til lovpålagt opplysningsplikt. Før bindende avtale inngås oppfordres interessenter til å innhente komplett informasjon fra meglerforetaket, selger eller utleier.

















































