Bildegalleri

Sisilie Berg i Nordvik Frogner har gleden av å presentere Snøklokkeveien 5. En romslig 4-roms toppleilighet med attraktiv planløsning i et familievennlig og sjarmerende nabolag.
Solgt
LØRENSKOG/FINSTADJORDET
Familievennlig 4-roms toppleilighet m/innglasset balkong på 15 kvm |Utsikt |P-plass |Oppussingsobjekt m/stort potensial
Prisantydning3 990 000 kr
Nøkkelinfo
- Boligtype
- Leilighet
- Eieform
- Andel
- Soverom
- 3
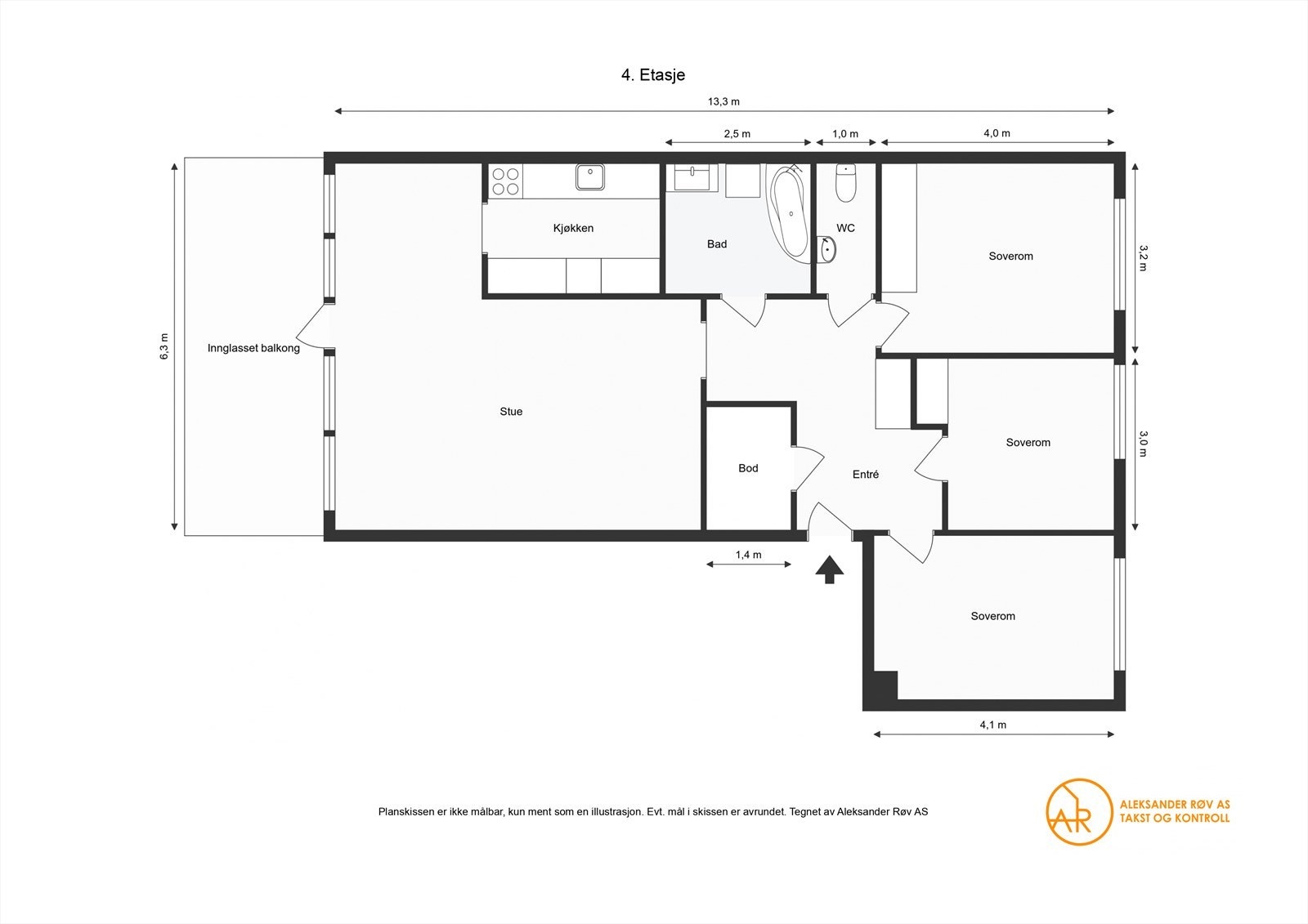
- Internt bruksareal
- 94 m² (BRA-i)
- Bruksareal
- 109 m²
- Innglasset balkong
- 15 m² (BRA-b)
- Etasje
- 4
- Byggeår
- 1973
- Energimerking
- E - Rød
- Rom
- 4
- Tomteareal
- 17 006 m² (eiet)
Fasiliteter
Alpinanlegg
Balkong/Terrasse
Barnevennlig
Bredbåndstilknytning
Garasje/P-plass
Kabel-TV
Offentlig vann/kloakk
Rolig
Sentralt
Utsikt
Vaktmester-/vektertjeneste
Turterreng
Lademulighet
Om boligen
Velkommen til denne innholdsrike 4-roms andelsleiligheten, som ligger i et rolig og barnevennlig område. Boligen har en gjennomtenkt planløsning som gir god flyt mellom rommene og rikelig med naturlig lys. Leiligheten byr på muligheter for modernisering, og gir deg sjansen til å skape ditt drømmehjem.
Leiligheten ligger på populære Finstadjordet, et område kjent for sin familievennlige atmosfære og nærhet til skoler, barnehager og kollektivtransport. Her bor du både sentralt og rolig, med flotte turområder i nærheten.
Høydepunkter
-Toppetasje med flott utsikt og lysinnslipp
-Innglasset balkong på ca. 15 kvm perfekt for å nyte uteområdet året rundt
-Privat parkeringsplass med elbillader
-Tre soverom
-Entrè m/bod
-Oppussingsobjekt som gir mulighet for personlig tilpasning
Leiligheten ligger på populære Finstadjordet, et område kjent for sin familievennlige atmosfære og nærhet til skoler, barnehager og kollektivtransport. Her bor du både sentralt og rolig, med flotte turområder i nærheten.
Høydepunkter
-Toppetasje med flott utsikt og lysinnslipp
-Innglasset balkong på ca. 15 kvm perfekt for å nyte uteområdet året rundt
-Privat parkeringsplass med elbillader
-Tre soverom
-Entrè m/bod
-Oppussingsobjekt som gir mulighet for personlig tilpasning
NB: Knappen for å vise hele beskrivelsen har kun en visuell effekt.
NB: Knappen for å vise hele beskrivelsen har kun en visuell effekt.
Salgsoppgaven beskriver vesentlig og lovpålagt informasjon om eiendommen
Se komplett salgsoppgaveNyttige lenker
Nærområdet
Nordvik Frogner
Annonseinformasjon
| FINN-kode | 373577565 |
|---|---|
| Sist endret | 28. feb. 2025 13:24 |
| Referanse | 14-0684/24 |
Annonsene kan være mangelfulle i forhold til lovpålagt opplysningsplikt. Før bindende avtale inngås oppfordres interessenter til å innhente komplett informasjon fra meglerforetaket, selger eller utleier.
































