Bildegalleri

Velkommen til Hårstad Mindes Veg 14!
Tiller
Delikat 3-roms hjørneleilighet i 2.etasje - Sørvendt balkong - P-plass - Heis - IN-ordning - Byggeår 2022
Prisantydning1 590 000 kr
Nøkkelinfo
- Boligtype
- Leilighet
- Eieform
- Andel
- Soverom
- 2
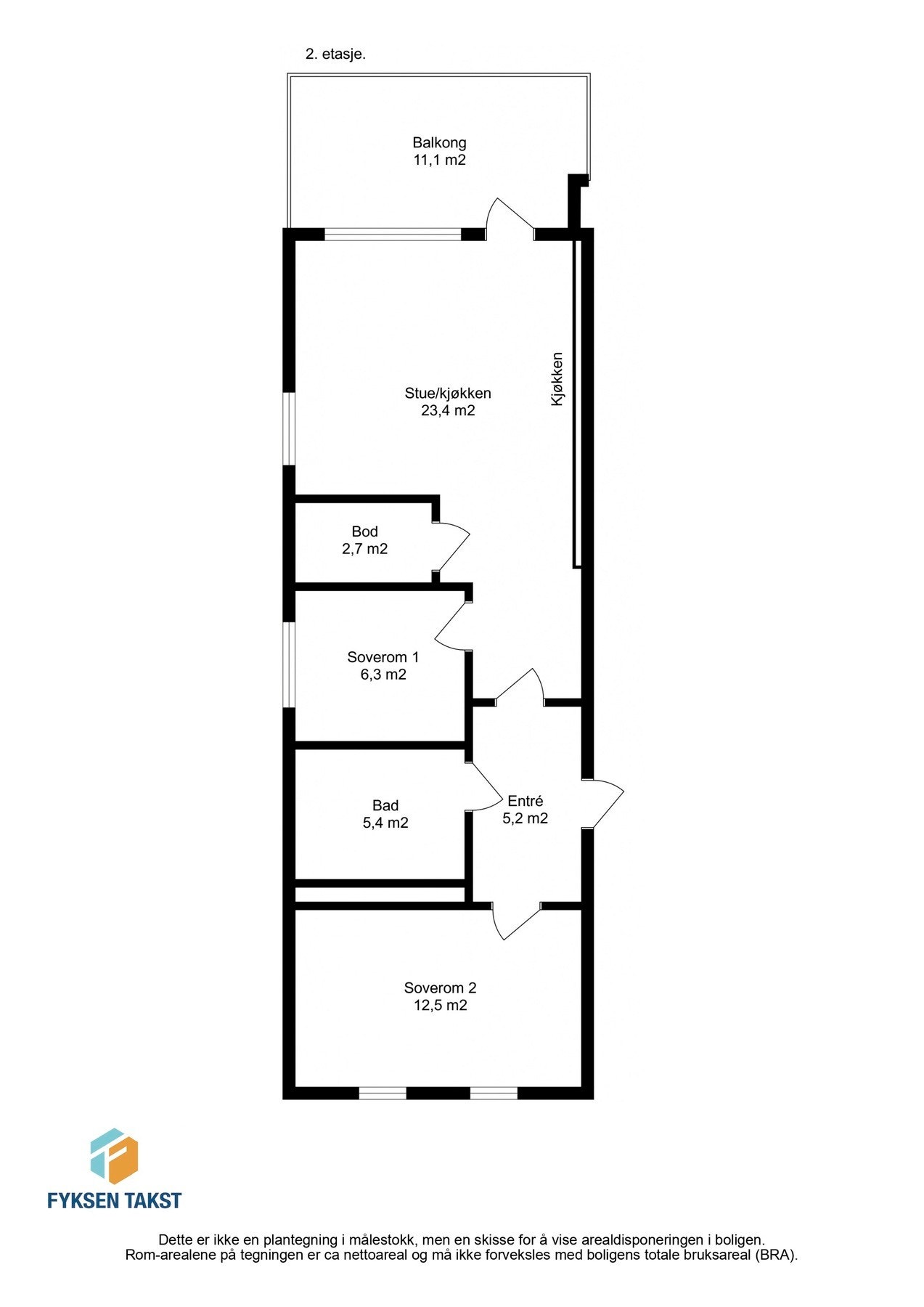
- Internt bruksareal
- 59 m² (BRA-i)
- Bruksareal
- 64 m²
- Eksternt bruksareal
- 5 m² (BRA-e)
- Etasje
- 2
- Byggeår
- 2022
- Energimerking
- B - Mørkegrønn
- Rom
- 3
- Tomteareal
- 2 823 m² (eiet)
Fasiliteter
Barnevennlig
Balkong/Terrasse
Garasje/P-plass
Kabel-TV
Heis
Offentlig vann/kloakk
Parkett
Turterreng
Bredbåndstilknytning
Moderne
Rolig
Lademulighet
Balansert ventilasjon
Om boligen
Velkommen til Hårstad Mindes Veg 14! En pen og romslig 3-roms hjørneleilighet på 64 kvm BRA. Leiligheten har en svært god planløsning med to romslige soverom. Leiligheten ligger i et attraktivt område på Tiller i et bygg fra 2022 og holder en gjennomgående høy standard!
Av kvaliteter kan man nevne:
Av kvaliteter kan man nevne:
- Fin beliggenhet i 2.etasje med lite innsyn og store vindusflater.
- Felleskostnader som inkl. parkering, fjernvarme, kabel-tv og internett.
- Mye bodplass. En romslig bod i leiligheten og en i kjeller.
- Nytt gulv i 2025.
- Pent bad med god plass til vaskemaskin.
- Sørvendt balkong.
- Nybyggsgaranti til og med 2027.
- Borettslaget har avtale om individuell nedbetaling (IN-ordning).
- P-plass i oppvarmet parkeringskjeller.
- Leiligheten holder en svært god standard og har fått kun TG1 og TG0 i takstrapporten.
- Rolig borettslag med en attraktiv beliggenhet.
Velkommen til visning!
NB: Knappen for å vise hele beskrivelsen har kun en visuell effekt.
NB: Knappen for å vise hele beskrivelsen har kun en visuell effekt.
Salgsoppgaven beskriver vesentlig og lovpålagt informasjon om eiendommen
Se komplett salgsoppgaveNyttige lenker
Nærområdet
EiendomsMegler 1 Heimdal
Vi loser deg trygt gjennom hele boligsalget
Annonseinformasjon
| FINN-kode | 373232743 |
|---|---|
| Sist endret | 23. apr. 2026 17:26 |
| Referanse | 31240671 |
Annonsene kan være mangelfulle i forhold til lovpålagt opplysningsplikt. Før bindende avtale inngås oppfordres interessenter til å innhente komplett informasjon fra meglerforetaket, selger eller utleier.

























