Bildegalleri

Velkommen til Ørnevegen 25!
Solgt
Kulstadlia
Koselig & modernisert enebolig med 3 soverom i blindgate // Garasje (2011), utebod og godt med hageareal
Prisantydning3 390 000 kr
Nøkkelinfo
- Boligtype
- Enebolig
- Eieform
- Eier (Selveier)
- Soverom
- 3
- Internt bruksareal
- 110 m² (BRA-i)
- Bruksareal
- 143 m²
- Eksternt bruksareal
- 33 m² (BRA-e)
- Balkong/Terrasse
- 50 m² (TBA)
- Byggeår
- 1990
- Energimerking
- D - Oransje
- Rom
- 4
- Tomteareal
- 736 m² (eiet)
Fasiliteter
Barnevennlig
Balkong/Terrasse
Garasje/P-plass
Offentlig vann/kloakk
Peis/Ildsted
Turterreng
Rolig
Om boligen
EiendomsMegler 1 Nord-Norge AS har påmelding til visning. Benytt visningspåmelding i annonsen.
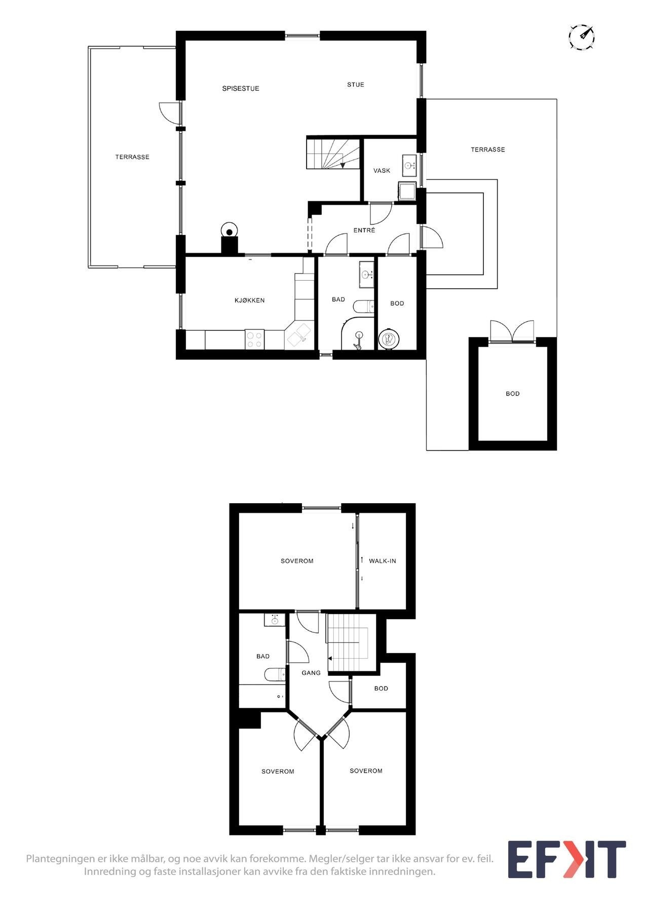
Velkommen til Ørnevegen 25! En nett og liten enebolig over 1 plan + loft. Boligen er jevnlig vedlikeholdt og fremstår som pen. Første etasje består av stue, kjøkken, entré, bad, vaskerom og teknisk rom. Loftet består av 3 soverom, et bad og en bod.
Velkommen til Ørnevegen 25! En nett og liten enebolig over 1 plan + loft. Boligen er jevnlig vedlikeholdt og fremstår som pen. Første etasje består av stue, kjøkken, entré, bad, vaskerom og teknisk rom. Loftet består av 3 soverom, et bad og en bod.
- 2003: Ny kjøkkeninnredning
2011:Tilbygget balkong.
2014: Renovert sikringsskap.
2014: Montert nye takrenner og nedløp.
2017: Renovert boligen innvendig med nytt gulv på stue, kjøkken, soverom og gang. Wall2paint på vegger. Ny himling på stue med downlights. Samt montert nye innvendige dører.
2018: Ny luft-til-luft varmepumpe og vedovn.
2021: Hvitevarer på kjøkken er byttet.
2022: Montert brannstige mot øst.
2023: Byttet vinduer på stue (ikke stor vinduer), kjøkken og soverommene.
2024: Malt boligen utvendig.
Er dette noe for deg? Last ned salgsoppgaven og still godt forberedt.
Vi ønsker deg velkommen til visning. Dersom ingen påmelding vil hovedvisning ikke bli avholdt.
NB: Knappen for å vise hele beskrivelsen har kun en visuell effekt.
NB: Knappen for å vise hele beskrivelsen har kun en visuell effekt.
Salgsoppgaven beskriver vesentlig og lovpålagt informasjon om eiendommen
Se komplett salgsoppgaveNyttige lenker
Nærområdet
EiendomsMegler 1 Mosjøen
Vi loser deg trygt gjennom hele boligsalget
Prisstatistikk
Ørnevegen 25
4 196 klikk
på annonsen
30 818 kr
prisantydning per kvadratmeter
Prisfordeling
Pris per m² ligger 12 818 kr over snittet for eneboliger i Vefsn.
Grafen viser antall eneboliger solgt i Vefsn siste året fordelt på pris per m² - totalt 85 eneboliger
Antall boliger
Kvadratmeterpris tilsvarer prisantydning pluss fellesgjeld per kvadratmeter (p-rom eller BRA-i). Prisene i grafen er avrundet til nærmeste 1000 kr.
Annonseinformasjon
| FINN-kode | 373218039 |
|---|---|
| Sist endret | 07. apr. 2025 07:48 |
| Referanse | 15240112 |
Annonsene kan være mangelfulle i forhold til lovpålagt opplysningsplikt. Før bindende avtale inngås oppfordres interessenter til å innhente komplett informasjon fra meglerforetaket, selger eller utleier.








































