Bildegalleri

Velkommen til Stordamveien 42A!
Solgt
Hellerud/Trasop
Enderekkehus m/solrike uteplasser|Garasje|Pipeløp|Verandadør og vinduer fra 2015|Barnevennlig|Nær marka|Rehabilitering
Prisantydning6 900 000 kr
Nøkkelinfo
- Boligtype
- Rekkehus
- Eieform
- Andel
- Soverom
- 3
- Internt bruksareal
- 127 m² (BRA-i)
- Bruksareal
- 127 m²
- Balkong/Terrasse
- 24 m² (TBA)
- Byggeår
- 1957
- Energimerking
- G - Rød
- Rom
- 5
- Tomteareal
- 7 529 m² (eiet)
Fasiliteter
Balkong/Terrasse
Barnevennlig
Garasje/P-plass
Kabel-TV
Rolig
Bademulighet
Fiskemulighet
Turterreng
Om boligen
Velkommen til Stordamveien 42A, rekkehus o/3 plan m/ barnevennlig beliggenhet i stille og skjermet miljø, og kort vei til idylliske Østmarka!
- Garasje i felles rekke medfølger.
- Enderekkehus over to etasjer + kjeller
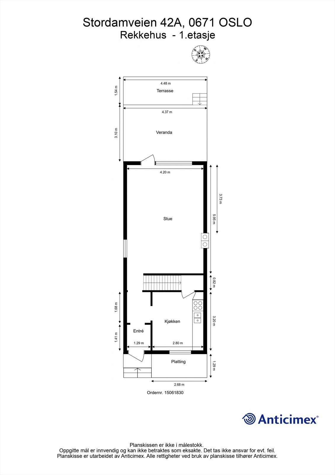
- Nordøstvendt platting v/inngangsparti (3 kvm), sydvestvendt veranda (14 kvm) & terrasse (7 kvm)
- Verandadør & vinduer fra 2015
- Romslig stue m/pipeløp - montere ildsted?
- Eldre separat, kjøkken m/komfyrvakt & plass til spisebord
- Eldre bad m/gulvvarme & badekar
- 3 romslige soverom, alle på samme plan m/garderobeløsninger
- Kjeller m/god lagringsplass
- Sokner til Godlia barneskole
Boligens standard er hovedsakelig fra byggeår. For å oppnå dagens krav til boligstandard må rehabilitering påregnes.
Her kan dere få bygget opp / lage deres eget drømmehjem!
Velkommen!
- Garasje i felles rekke medfølger.
- Enderekkehus over to etasjer + kjeller
- Nordøstvendt platting v/inngangsparti (3 kvm), sydvestvendt veranda (14 kvm) & terrasse (7 kvm)
- Verandadør & vinduer fra 2015
- Romslig stue m/pipeløp - montere ildsted?
- Eldre separat, kjøkken m/komfyrvakt & plass til spisebord
- Eldre bad m/gulvvarme & badekar
- 3 romslige soverom, alle på samme plan m/garderobeløsninger
- Kjeller m/god lagringsplass
- Sokner til Godlia barneskole
Boligens standard er hovedsakelig fra byggeår. For å oppnå dagens krav til boligstandard må rehabilitering påregnes.
Her kan dere få bygget opp / lage deres eget drømmehjem!
Velkommen!
NB: Knappen for å vise hele beskrivelsen har kun en visuell effekt.
NB: Knappen for å vise hele beskrivelsen har kun en visuell effekt.
Salgsoppgaven beskriver vesentlig og lovpålagt informasjon om eiendommen
Se komplett salgsoppgaveNyttige lenker
Nærområdet
Krogsveen Oppsal
Verdien av en god megler.
Prisstatistikk
Stordamveien 42A
3 847 klikk
på annonsen
57 881 kr
prisantydning per kvadratmeter
Prisfordeling
Pris per m² ligger 3 119 kr under snittet for rekkehus i Hellerud.
Grafen viser antall rekkehus solgt i Hellerud siste året fordelt på pris per m² - totalt 29 rekkehus
Antall boliger
Kvadratmeterpris tilsvarer prisantydning pluss fellesgjeld per kvadratmeter (p-rom eller BRA-i). Prisene i grafen er avrundet til nærmeste 1000 kr.
Annonseinformasjon
| FINN-kode | 372871646 |
|---|---|
| Sist endret | 27. nov. 2024 11:51 |
| Referanse | KR45.24105 |
Annonsene kan være mangelfulle i forhold til lovpålagt opplysningsplikt. Før bindende avtale inngås oppfordres interessenter til å innhente komplett informasjon fra meglerforetaket, selger eller utleier.



















































