Bildegalleri

EIE eiendomsmegling v/Michael Knutsen presenterer Audun Raudes gate 4. Foto: Martynas Milkevicius
Stor bolig med utleie og fin beliggenhet i Harstadåsen | Fantastisk utsikt | Innerst i blindvei
Prisantydning3 290 000 kr
Nøkkelinfo
- Boligtype
- Enebolig
- Eieform
- Eier (Selveier)
- Soverom
- 6
- Internt bruksareal
- 292 m² (BRA-i)
- Bruksareal
- 315 m²
- Eksternt bruksareal
- 23 m² (BRA-e)
- Balkong/Terrasse
- 32 m² (TBA)
- Byggeår
- 1951
- Rom
- 8
- Tomteareal
- 586 m² (eiet)
Fasiliteter
Barnevennlig
Balkong/Terrasse
Garasje/P-plass
Kabel-TV
Offentlig vann/kloakk
Peis/Ildsted
Turterreng
Utsikt
Aircondition
Sentralt
Bredbåndstilknytning
Moderne
Rolig
Om boligen
EIE eiendomsmegling v/Michael Knutsen har gleden av å presentere Audun Raudes gate 4, en stor og innholdsrik bolig med utleiemuligheter. Bolig med stort potensiale beliggende i populære Harstadåsen, innerst i en blindvei og med nydelig utsikt over byen.
- Attraktiv beliggenhet rett over sentrum, med fantastisk utsikt og innerst i en blindvei
- Svært romslig bolig med stort potensiale og utleiemuligheter
- Oppussingsbehov med mulighet til å sette sitt eget preg på valg av løsninger, materialer og fargevalg
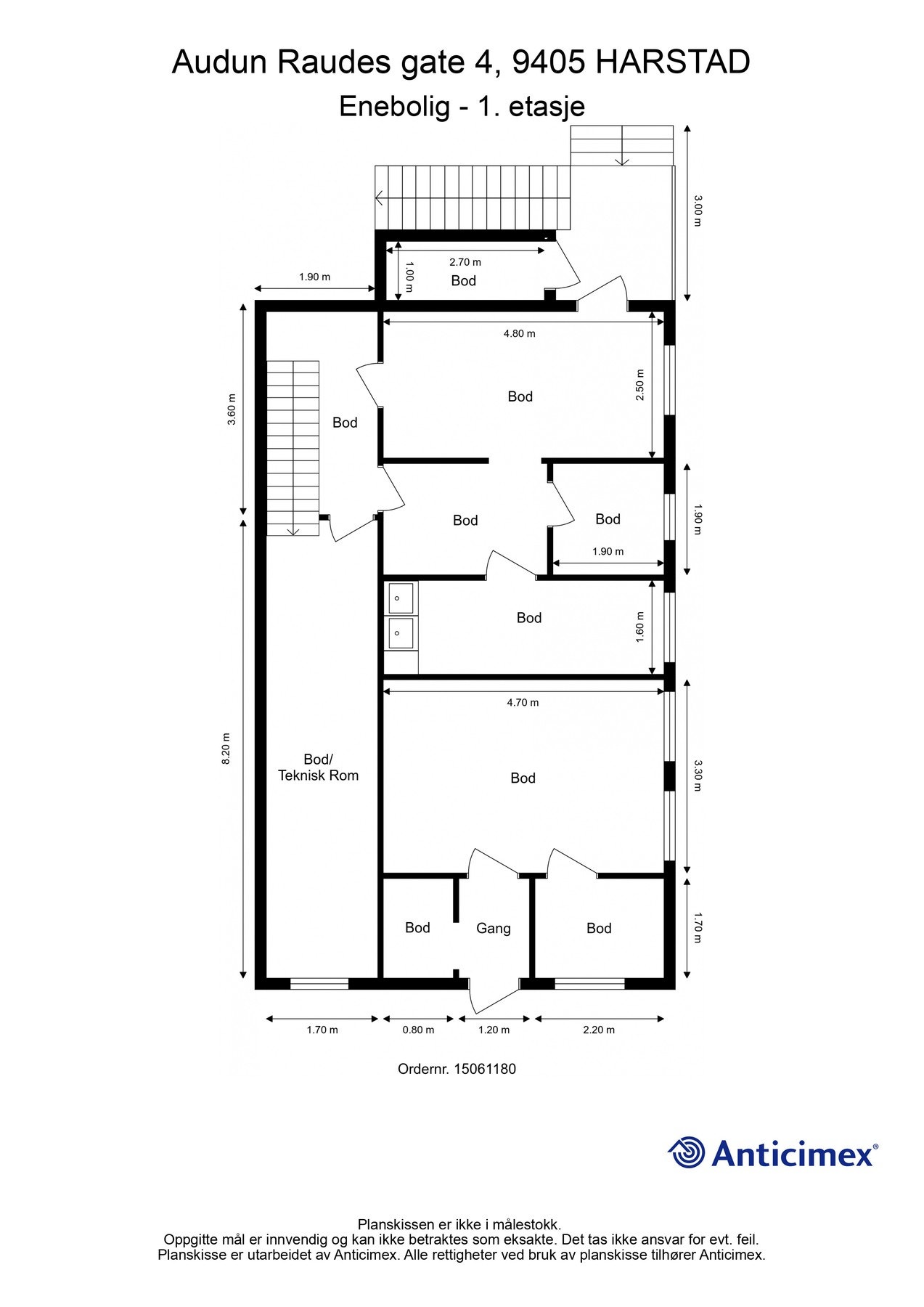
1. etasje: Boder + hybel
2. etasje: 2 ganger, stue, kjøkken, bad, 2 soverom og 4 boder.
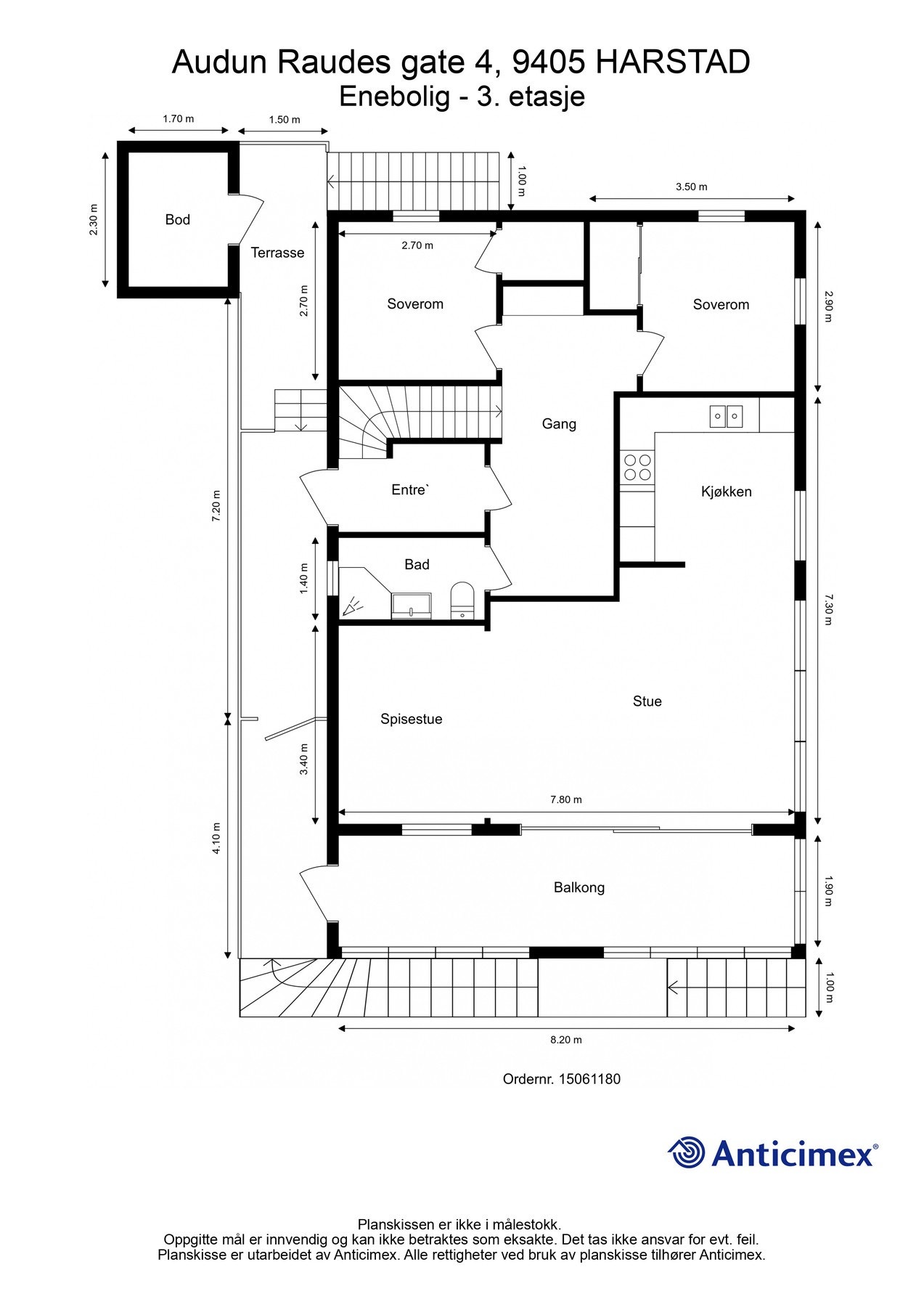
3. etasje: Entré, gang, stue, spisestue, kjøkken, bad, og 2 soverom
Loft: Gang, kjøkken, 2 soverom og wc
Velkommen til en hyggelig visning!
NB: Knappen for å vise hele beskrivelsen har kun en visuell effekt.
NB: Knappen for å vise hele beskrivelsen har kun en visuell effekt.
Salgsoppgaven beskriver vesentlig og lovpålagt informasjon om eiendommen
Se komplett salgsoppgaveNyttige lenker
Nærområdet
EIE eiendomsmegling Harstad
Annonsene kan være mangelfulle i forhold til lovpålagt opplysningsplikt. Før bindende avtale inngås oppfordres interessenter til å innhente komplett informasjon fra meglerforetaket, selger eller utleier.































































