Bildegalleri

Velkommen til Åsane Senter 4 v/Bente Østervold - Krogsveen
Solgt
Innbydende 2-roms m/trappefri adkomst | Vestvendt terrasse og innglasset balkong | Gode solforhold | Meget sentralt
Prisantydning2 590 000 kr
Nøkkelinfo
- Boligtype
- Leilighet
- Eieform
- Andel
- Soverom
- 1
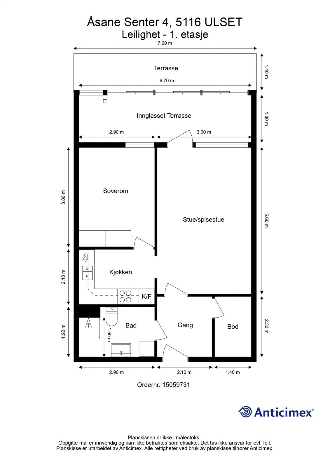
- Internt bruksareal
- 54 m² (BRA-i)
- Bruksareal
- 73 m²
- Eksternt bruksareal
- 6 m² (BRA-e)
- Innglasset balkong
- 13 m² (BRA-b)
- Balkong/Terrasse
- 10 m² (TBA)
- Etasje
- 1
- Byggeår
- 1976
- Rom
- 2
- Tomteareal
- 15 288 m² (eiet)
Fasiliteter
Balkong/Terrasse
Bredbåndstilknytning
Kabel-TV
Offentlig vann/kloakk
Rolig
Sentralt
Om boligen
En super leilighet med meget attraktiv beliggenhet like ved Åsane Storsenter og bussterminalen. Nabolaget og leiligheten passer ypperlig for de som er i etableringsfasen, eller eldre som ønsker et trygt og rolig bomiljø rundt seg. Enkel og trappefri adkomst til leiligheten. Her bor man i rolige omgivelser samtidig som man har alt man trenger til det daglige like utenfor døren.
Kort fortalt:
- Oppgradert bad i sept. 2024
- Nytt gulv i yttergang
- Innglasset terrasse med skyvbare vinduer som slipper solen inn på ettermiddags- og kveldstid (ca kl 12-21.30 sommer)
- Innvendig bod og 2 eksterne boder
- To minutters gange til Åsane Storsenter som tilbyr alt av servicetilbud og fasiliteter
- Åsane bussterminal to minutters gange unna
- Lave omkostninger ved kjøp
- Varmtvann inkl. i felleskost.
Kort fortalt:
- Oppgradert bad i sept. 2024
- Nytt gulv i yttergang
- Innglasset terrasse med skyvbare vinduer som slipper solen inn på ettermiddags- og kveldstid (ca kl 12-21.30 sommer)
- Innvendig bod og 2 eksterne boder
- To minutters gange til Åsane Storsenter som tilbyr alt av servicetilbud og fasiliteter
- Åsane bussterminal to minutters gange unna
- Lave omkostninger ved kjøp
- Varmtvann inkl. i felleskost.
NB: Knappen for å vise hele beskrivelsen har kun en visuell effekt.
NB: Knappen for å vise hele beskrivelsen har kun en visuell effekt.
Salgsoppgaven beskriver vesentlig og lovpålagt informasjon om eiendommen
Se komplett salgsoppgaveNyttige lenker
Nærområdet
Krogsveen Åsane
Verdien av en god megler.
Annonseinformasjon
| FINN-kode | 372319995 |
|---|---|
| Sist endret | 11. des. 2024 06:04 |
| Referanse | KR74.2461 |
Annonsene kan være mangelfulle i forhold til lovpålagt opplysningsplikt. Før bindende avtale inngås oppfordres interessenter til å innhente komplett informasjon fra meglerforetaket, selger eller utleier.





























