Bildegalleri

Hedmarksgata 10A - Presentert av Vilde Nadden.
Solgt
UTSIKTSLEILIGHET PÅ VÅLERENGA / KAMPEN
Utrolig koselig 2-roms selveier m/ solrik balkong, gj. gående planløsning og fantastisk utsikt. V.V og fyring inkl.
Prisantydning4 200 000 kr
Nøkkelinfo
- Boligtype
- Leilighet
- Eieform
- Eier (Selveier)
- Soverom
- 1
- Internt bruksareal
- 36 m² (BRA-i)
- Bruksareal
- 41 m²
- Eksternt bruksareal
- 5 m² (BRA-e)
- Balkong/Terrasse
- 5 m² (TBA)
- Etasje
- 4
- Byggeår
- 1939
- Energimerking
- G - Rød
- Rom
- 2
- Tomteareal
- 2 109 m² (eiet)
Fasiliteter
Balkong/Terrasse
Bredbåndstilknytning
Ingen gjenboere
Kabel-TV
Offentlig vann/kloakk
Parkett
Rolig
Utsikt
Vaktmester-/vektertjeneste
Turterreng
Om boligen
HEDMARKSGATA 10A
Presentert av Vilde Nadden
Velkommen inn til denne sjarmerende og lyse 2-roms selveierleiligheten med ettertraktet beliggenhet på Kampen/Vålerenga. Bo sentralt, men i et hyggelig boligområdet med koselig atmosfære, nær busstopp og T-bane.
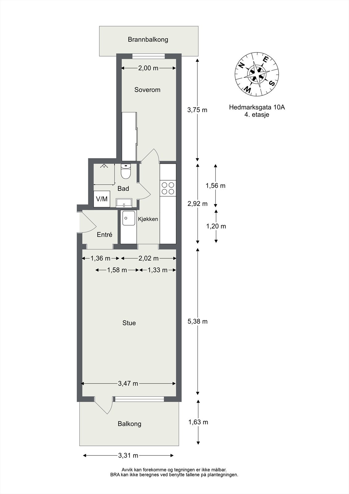
Leiligheten har en arealeffektiv planløsning og består av: Gang, soverom, kjøkken, stue og bad. God intern beliggenhet i byggets 4.etasje, skjermet for trafikk og innsyn, men samtidig med utgang til en solrik balkong med nydelig utsikt utover byen.
- Svært gode lys- og solforhold
- Nydelig utsikt, uten innsyn
- Usjenert balkong
- Meget arealeffektiv planløsning
- Fjernvarme og varmtvann inkl. i felleskostnadene
- Et perfekt førstegangs- og evt. utleieobjekt
- Gode oppbevaringsmuligheter med 2 boder
- Hyggelig for hage med utemøbler
Presentert av Vilde Nadden
Velkommen inn til denne sjarmerende og lyse 2-roms selveierleiligheten med ettertraktet beliggenhet på Kampen/Vålerenga. Bo sentralt, men i et hyggelig boligområdet med koselig atmosfære, nær busstopp og T-bane.
Leiligheten har en arealeffektiv planløsning og består av: Gang, soverom, kjøkken, stue og bad. God intern beliggenhet i byggets 4.etasje, skjermet for trafikk og innsyn, men samtidig med utgang til en solrik balkong med nydelig utsikt utover byen.
- Svært gode lys- og solforhold
- Nydelig utsikt, uten innsyn
- Usjenert balkong
- Meget arealeffektiv planløsning
- Fjernvarme og varmtvann inkl. i felleskostnadene
- Et perfekt førstegangs- og evt. utleieobjekt
- Gode oppbevaringsmuligheter med 2 boder
- Hyggelig for hage med utemøbler
NB: Knappen for å vise hele beskrivelsen har kun en visuell effekt.
NB: Knappen for å vise hele beskrivelsen har kun en visuell effekt.
Salgsoppgaven beskriver vesentlig og lovpålagt informasjon om eiendommen
Se komplett salgsoppgaveNyttige lenker
Nærområdet
Nordvik Torshov
Vi vet hva det er verdt
Annonseinformasjon
| FINN-kode | 372287728 |
|---|---|
| Sist endret | 10. sep. 2025 08:20 |
| Referanse | 29-0324/24 |
Annonsene kan være mangelfulle i forhold til lovpålagt opplysningsplikt. Før bindende avtale inngås oppfordres interessenter til å innhente komplett informasjon fra meglerforetaket, selger eller utleier.



































