Bildegalleri

Velkommen til Valhallveien 13 - en tiltalende og oppgradert rekkehusleilighet over 2 plan med nytt kjøkken i 2024. Her kan du flytte rett inn!
Inaktiv
Ekebergskrenten
Tiltalende rekkehusleilighet o/2 plan. Nytt kjøkken 2024. 2 bad. Flotte uteplasser. P-plass/garasje leie. Ekebergskole
Prisantydning8 200 000 kr
Nøkkelinfo
- Boligtype
- Leilighet
- Eieform
- Andel
- Soverom
- 3
- Internt bruksareal
- 121 m² (BRA-i)
- Bruksareal
- 124 m²
- Eksternt bruksareal
- 3 m² (BRA-e)
- Balkong/Terrasse
- 39 m² (TBA)
- Etasje
- 1
- Byggeår
- 1977
- Energimerking
- F - Rød
- Rom
- 4
- Tomteareal
- 15 185 m² (eiet)
Fasiliteter
Balkong/Terrasse
Barnevennlig
Kjæledyr tillatt
Ingen gjenboere
Kabel-TV
Offentlig vann/kloakk
Rolig
Sentralt
Turterreng
Visning
For å delta på visning, ber vi om at du melder deg på. Da sikrer vi at du får nødvendig informasjon og at det er satt av tilstrekkelig med tid. Kontakt megler dersom annet tidspunkt ønskes. Husk å lese salgsoppgaven før visningen, så du stiller forberedt.
Ønsker du kun å bli holdt orientert, kan du fra eiendommens hjemmeside få varsel om solgtpris, eller kontakte megler.
VisningspåmeldingOm boligen
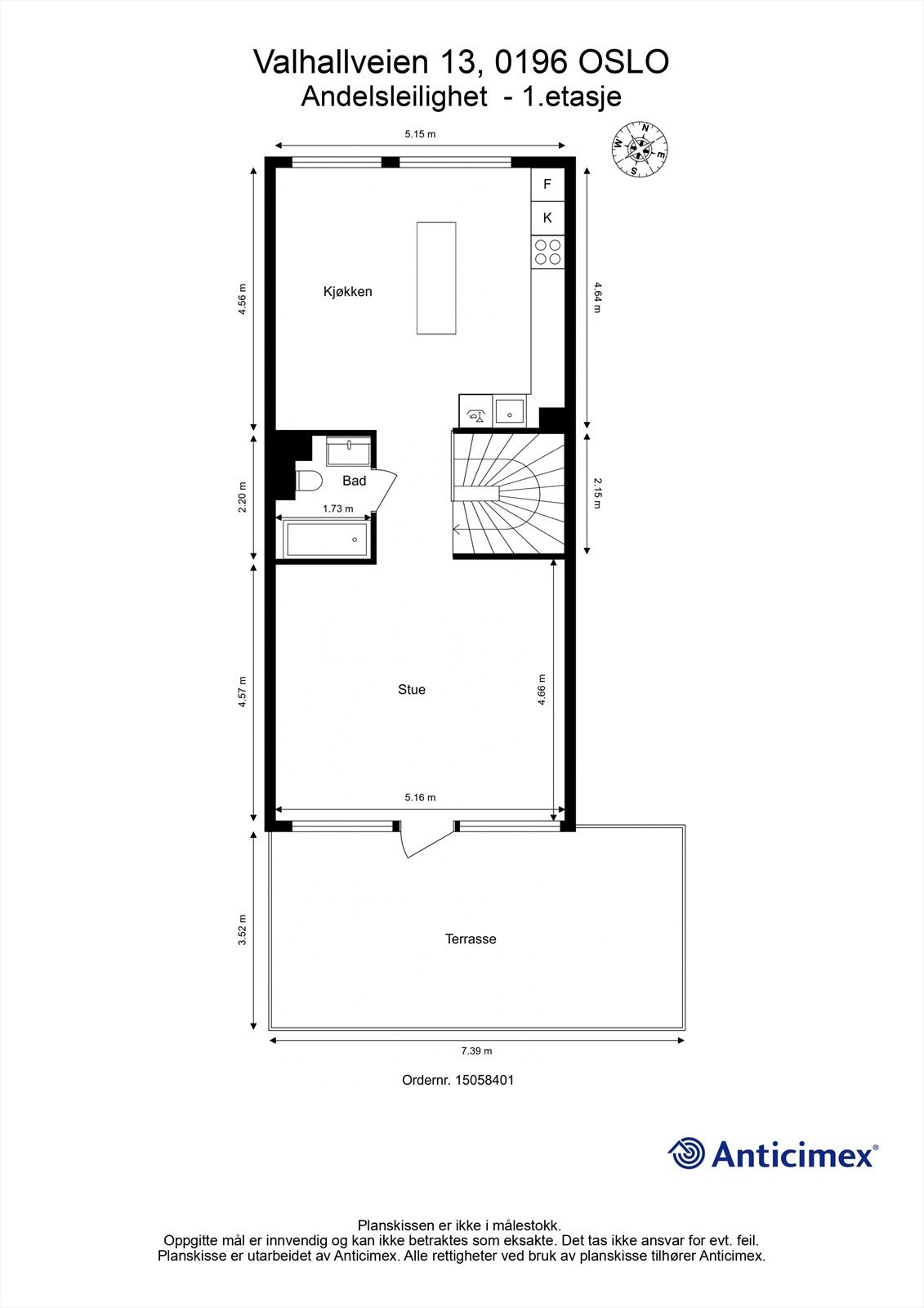
Tiltalende og familievennlig rekkehusleilighet over 2 plan beliggende i populære Ekebergskrenten. En innholdsrik bolig med en praktisk og god planløsning som bl.a. inneholder stue, spisestue og kjøkken (nytt i 2024) i åpen løsning. Entré, 3 soverom, 2 bad, samt boder som gir godt med oppbevaringsplass. Flotte uteplasser på begge sider av boligen. Boligen er pusset opp de senere år (2016-2024) og fremstår som innflytningsklar med en moderne og tidløs standard.
Noen høydepunkter:
- Kjøkken 2024
- 2 bad pusset opp i 2016/2022
- Store vindusflater gir godt med lys
- Innholdsrik planløsning
- Mulighet for å leie p-plass/garasje
- Varmtvann inkl. i fellesutg.
- Tilnærmet bilfritt bomiljø
- Ingen dok. avgift.
Se selgers blog:
https://www.sooatelier.com/post/welcome-to-valhallveien-13-sun
Noen høydepunkter:
- Kjøkken 2024
- 2 bad pusset opp i 2016/2022
- Store vindusflater gir godt med lys
- Innholdsrik planløsning
- Mulighet for å leie p-plass/garasje
- Varmtvann inkl. i fellesutg.
- Tilnærmet bilfritt bomiljø
- Ingen dok. avgift.
Se selgers blog:
https://www.sooatelier.com/post/welcome-to-valhallveien-13-sun
NB: Knappen for å vise hele beskrivelsen har kun en visuell effekt.
NB: Knappen for å vise hele beskrivelsen har kun en visuell effekt.
Salgsoppgaven beskriver vesentlig og lovpålagt informasjon om eiendommen
Se komplett salgsoppgaveNyttige lenker
Nærområdet
Krogsveen Nordstrand
Verdien av en god megler.
Annonseinformasjon
| FINN-kode | 372168827 |
|---|---|
| Sist endret | 21. nov. 2024 08:48 |
| Referanse | KR44.24180 |
Annonsene kan være mangelfulle i forhold til lovpålagt opplysningsplikt. Før bindende avtale inngås oppfordres interessenter til å innhente komplett informasjon fra meglerforetaket, selger eller utleier.





























































