Bildegalleri

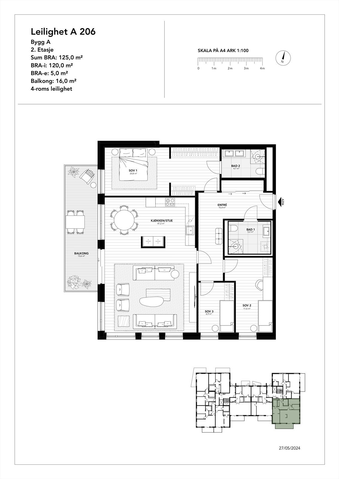
Velkommen til Ekebergveien 239D - En 4-roms hjørneleilighet med stor vestvendt terrasse i populære Poppelhagen
Poppelhagen på Sæter
Stor & lys 4-roms hjørneleilighet|Vestvendt balkong på 16 m²|3 sov & 2 bad|Innflyttingsklar|Lave omkostninger|Parkering*
Prisantydning16 000 000 kr
Nøkkelinfo
- Boligtype
- Leilighet
- Eieform
- Eier (Selveier)
- Soverom
- 3
- Internt bruksareal
- 120 m² (BRA-i)
- Bruksareal
- 125 m²
- Eksternt bruksareal
- 5 m² (BRA-e)
- Balkong/Terrasse
- 16 m² (TBA)
- Etasje
- 2
- Byggeår
- 2024
- Rom
- 4
- Tomteareal
- 7 643 m² (eiet)
Fasiliteter
Balkong/Terrasse
Barnevennlig
Bredbåndstilknytning
Garasje/P-plass
Heis
Kjæledyr tillatt
Kabel-TV
Offentlig vann/kloakk
Parkett
Sentralt
Vaktmester-/vektertjeneste
Turterreng
Balansert ventilasjon
Visning
Oppmøte i den hvite villaen i bakgården. Skiltet med Nordvik visningsskilt. Husk påmelding, visning blir ikke gjennomført dersom det ikke er påmeldinger.
VisningspåmeldingOm boligen
Velkommen til leilighet A206 i idylliske Poppelhagen. Dette er en flott 4-roms leilighet med en stor vestvendt balkong på 16 m². Store vinduer sikrer rikelig med lysinnslipp, og screens på vinduer mot syd og vest bedrer inneklimaet.
Mulighet for fleksibel overtakelse.
Mulighet for fleksibel overtakelse.
- Stor 4-roms på hele 120 m²
- Solrik balkong med plass til både loungesett og spisebord
- 3 sov og 2 bad
- Stilren kjøkkeninnredning fra HTH med hvitevarer fra Siemens
- Mulighet for kjøp av Garasjeplass
- Gjennomgående ny og moderne standard
- Store, pent opparbeidede fellesarealer med beplantning, internstier og sitteplasser
- Attraktiv beliggenhet på Sæter med et rikelig utvalg fasiliteter i umiddelbar nærhet
- Se prosjektets hjemmeside: poppelhagen.no
NB: Knappen for å vise hele beskrivelsen har kun en visuell effekt.
NB: Knappen for å vise hele beskrivelsen har kun en visuell effekt.
Salgsoppgaven beskriver vesentlig og lovpålagt informasjon om eiendommen
Se komplett salgsoppgaveNyttige lenker
Nærområdet
Nordvik Frogner
Annonseinformasjon
| FINN-kode | 371946248 |
|---|---|
| Sist endret | 11. des. 2025 10:52 |
| Referanse | 14-0671/24 |
Annonsene kan være mangelfulle i forhold til lovpålagt opplysningsplikt. Før bindende avtale inngås oppfordres interessenter til å innhente komplett informasjon fra meglerforetaket, selger eller utleier.










































