Bildegalleri

Velkommen til Olav Nygards veg 15 presentert av Ida Lundøy Pedersen v/EIE eiendomsmegling.
Stor og delikat 2-roms med innglasset balkong og gode solforhold | Fyring/varmtvann inkl. | Rett ved Østmarka
Nøkkelinfo
- Boligtype
- Leilighet
- Eieform
- Andel
- Soverom
- 1
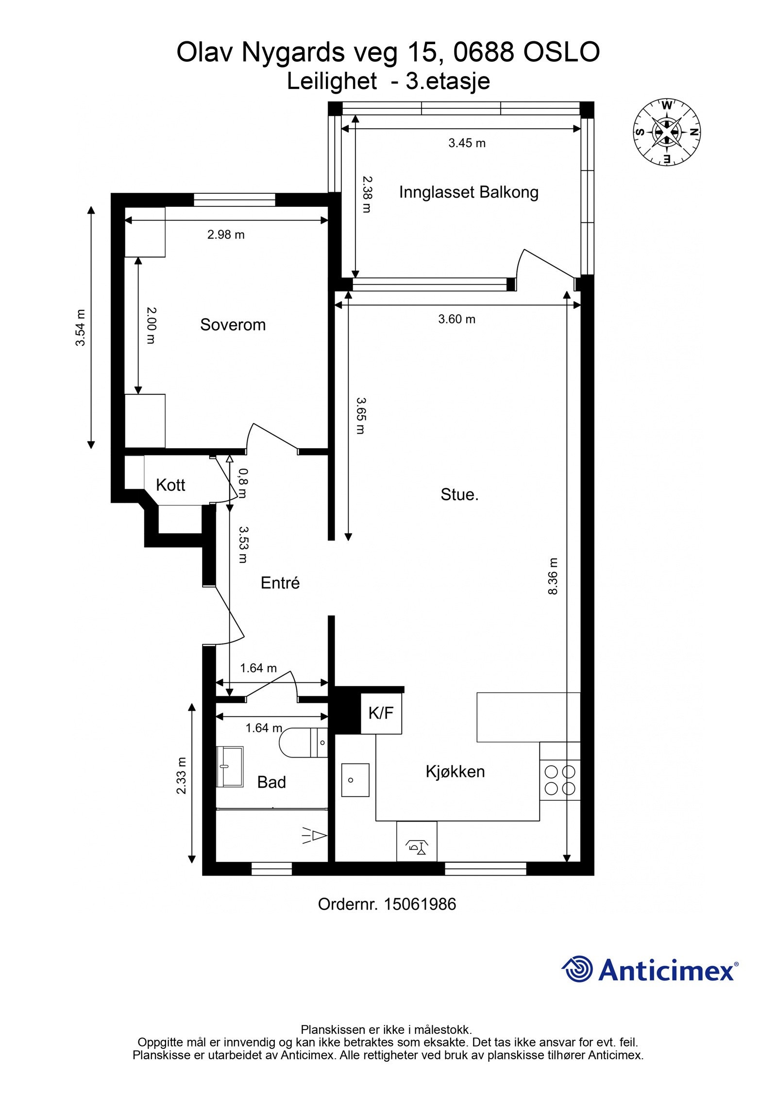
- Internt bruksareal
- 53 m² (BRA-i)
- Bruksareal
- 62 m²
- Eksternt bruksareal
- 4 m² (BRA-e)
- Innglasset balkong
- 9 m² (BRA-b)
- Etasje
- 3
- Byggeår
- 1961
- Energimerking
- G - Mørkegrønn
- Tomteareal
- 39 546 m² (eiet)
Fasiliteter
Om boligen
Lys og innbydende 2-roms leilighet med gjennomgående planløsning i naturskjønne omgivelser på Ulsrud. Leiligheten har en meget god og praktisk planløsning med romslig størrelse på alle rom. Boligen inneholder entré, med lagringskott, stort soverom, bad, samt åpen stue/kjøkkenløsning med god plass til spiseplass og sofagruppe. Balkongen er vestvendt og har optimale solforhold. Her kan du nyte flott utsikt og solnedganger på egen uteplass.
Leiligheten er en del av veldrevne Ulsrud borettslag med egen vaktmester og felles elbilladere for beboerne som er rett utenfor oppgangen, gratis gateparkering.
Attraktiv beliggenhet i et rolig boområde rett ved Østmarka. Det er kort vei til både Bøler- og Oppsal senter, samt flere nærliggende butikker. I tillegg er det få minutters gange til T-bane og buss.
Salgsoppgaven beskriver vesentlig og lovpålagt informasjon om eiendommen
Se komplett salgsoppgaveNærområdet
EIE eiendomsmegling Røa, Skøyen og Ullern
Annonseinformasjon
| FINN-kode | 371604652 |
|---|---|
| Sist endret | 03. okt. 2024 14:09 |
| Referanse | 50240219 |
Annonsene kan være mangelfulle i forhold til lovpålagt opplysningsplikt. Før bindende avtale inngås oppfordres interessenter til å innhente komplett informasjon fra meglerforetaket, selger eller utleier.









































