Bildegalleri

Velkommen til visning i Sandakerveien 41!
Lekker, unik 3-roms fabrikkleilighet over 2 plan - Ny 2013 - Solrik balkong - Heis - *Garasje kan kjøpes!
Nøkkelinfo
- Boligtype
- Leilighet
- Eieform
- Andel
- Soverom
- 2
- Internt bruksareal
- 67 m² (BRA-i)
- Bruksareal
- 73 m²
- Eksternt bruksareal
- 6 m² (BRA-e)
- Balkong/Terrasse
- 7 m² (TBA)
- Etasje
- 2
- Byggeår
- 1940
- Energimerking
- F - Rød
- Rom
- 3
- Tomteareal
- 1 500 m² (eiet)
Fasiliteter
Om boligen
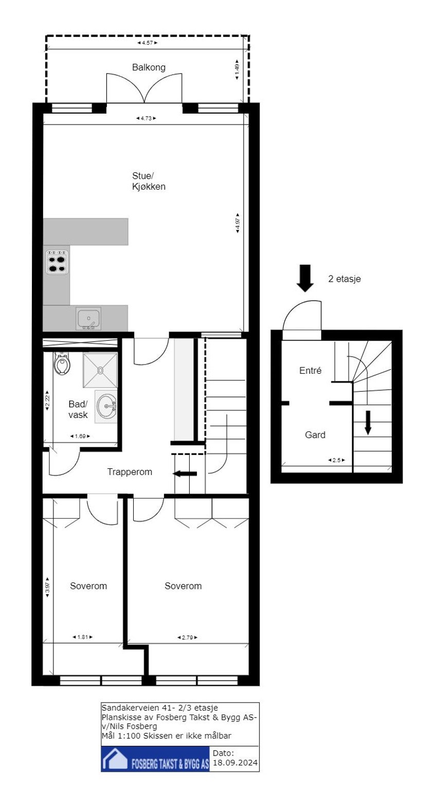
Lekker fabrikk-leilighet, sentralt og attraktiv beliggende på Torshov. Opprinnelig industribygg fra 1940 som ble renovert og ombygget til boliger i 2013. I tillegg er leiligheten nylig oppgradert med blant annet modernisert kjøkken, garderober og delikate tidsriktige farger.
Gjennomgående leilighet med høy moderne standard, og svært gode lysforhold fra store takhøye vindusflater. Utgang fra stuen til solrik sydvendt balkong. Generøs takhøyde på over 3 meter!
2. et: Entré med walk-in closet.
3. et: Romslig gang/trapperom, stue/kjøkken i åpen sosial løsning m/ utgang til balkong, 2 gode soverom og bad/WC.
*Mulighet for kjøp av garasjeplass med heisadkomst og ladeboks for el-bil for kr. 450.000,-.
Offentlig kommunikasjon og et komplett servicetilbud i umiddelbar nærhet.
Velkommen til visning!
Salgsoppgaven beskriver vesentlig og lovpålagt informasjon om eiendommen
Se komplett salgsoppgaveNærområdet
EIE eiendomsmegling Majorstuen & St. Hanshaugen
Annonseinformasjon
| FINN-kode | 371558147 |
|---|---|
| Sist endret | 02. nov. 2024 14:49 |
| Referanse | 125240534 |
Annonsene kan være mangelfulle i forhold til lovpålagt opplysningsplikt. Før bindende avtale inngås oppfordres interessenter til å innhente komplett informasjon fra meglerforetaket, selger eller utleier.









































