Bildegalleri

HAMAR SENTRUM - Innbydende 3-roms leilighet med innglasset balkong og mjøsgløtt. Nyere kjøkken.
Nøkkelinfo
- Boligtype
- Leilighet
- Eieform
- Andel
- Soverom
- 2
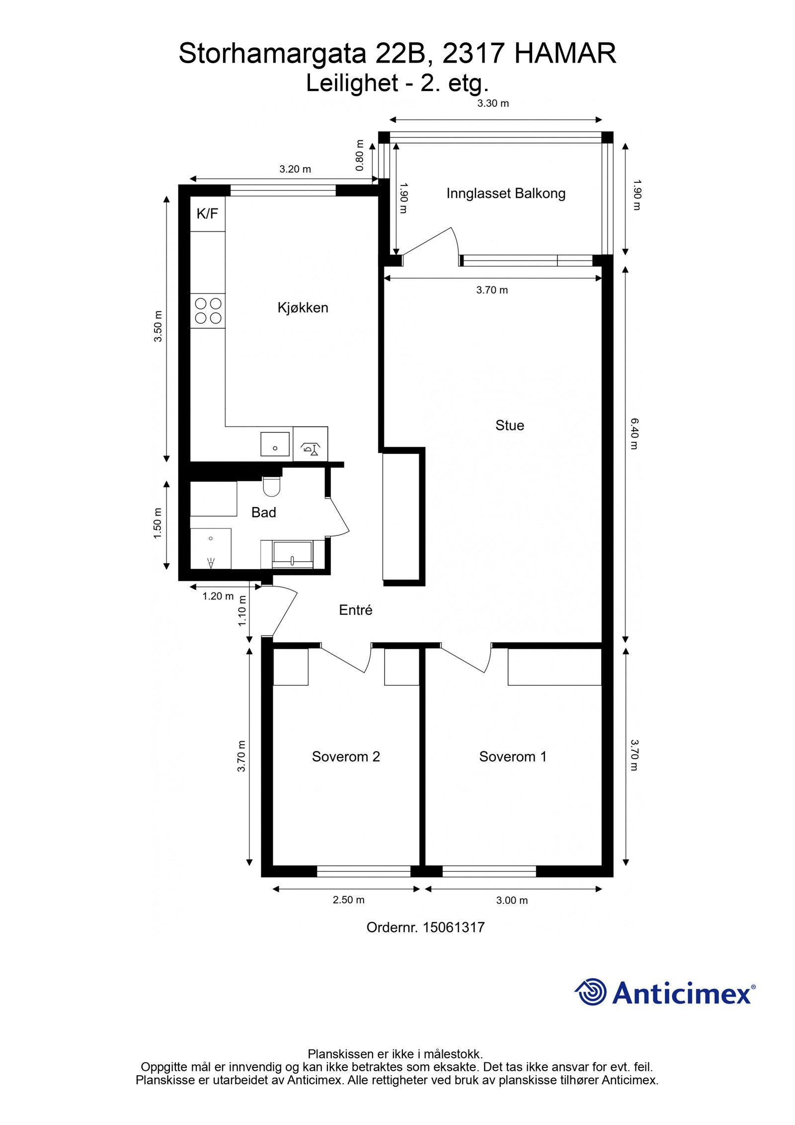
- Internt bruksareal
- 67 m² (BRA-i)
- Bruksareal
- 79 m²
- Eksternt bruksareal
- 5 m² (BRA-e)
- Innglasset balkong
- 7 m² (BRA-b)
- Byggeår
- 1963
- Energimerking
- G - Mørkegrønn
- Tomteareal
- 1 920 m² (eiet)
Fasiliteter
Om boligen
EIE har gleden av å presentere denne innbydende 3-roms leiligheten i Storhamargata 22B!
Leiligheten har en sentral beliggenhet midt i hjertet av Hamar. Her er det nærhet til "alt"!
Leiligheten ligger i 2. etasje og har en god planløsning, som sammen med de store vindusflatene sørger for luftige oppholdsrom. Her er det en romslig stue, nyere kjøkken, to soverom og flislagt bad. I tillegg disponerer leiligheten en bod i kjeller. Fra stuen er det utgang til innglasset balkong, som blir en fin forlengelse av rommet. Glassene kan enkelt åpnes opp, og fra balkongen er det et lite mjøsgløtt. Enkel adkomst via heis.
Med god beliggenhet, to soverom, nyere kjøkken og enkel adkomst med heis, er dette en leilighet som kan passe for de fleste.
Velkommen til en hyggelig visning!
Salgsoppgaven beskriver vesentlig og lovpålagt informasjon om eiendommen
Se komplett salgsoppgaveNærområdet
EIE eiendomsmegling Innlandet
Annonseinformasjon
| FINN-kode | 371407976 |
|---|---|
| Sist endret | 24. okt. 2024 10:24 |
| Referanse | 22240079 |
Annonsene kan være mangelfulle i forhold til lovpålagt opplysningsplikt. Før bindende avtale inngås oppfordres interessenter til å innhente komplett informasjon fra meglerforetaket, selger eller utleier.




























