Bildegalleri

Solgt
Velkommen til Etterstad
Attraktiv og gjennomgående 4-roms endeleilighet med solrik vestvendt balkong og parkering*. Sentralt og barnevennlig
Prisantydning6 450 000 kr
Nøkkelinfo
- Boligtype
- Leilighet
- Eieform
- Andel
- Soverom
- 3
- Internt bruksareal
- 78 m² (BRA-i)
- Bruksareal
- 90 m²
- Eksternt bruksareal
- 12 m² (BRA-e)
- Balkong/Terrasse
- 8 m² (TBA)
- Etasje
- 2
- Byggeår
- 1951
- Energimerking
- E - Rød
- Rom
- 4
- Tomteareal
- 44 841 m²
Fasiliteter
Barnevennlig
Balkong/Terrasse
Kabel-TV
Offentlig vann/kloakk
Parkett
Turterreng
Vaktmester-/vektertjeneste
Fellesvaskeri
Sentralt
Bredbåndstilknytning
Moderne
Rolig
Om boligen
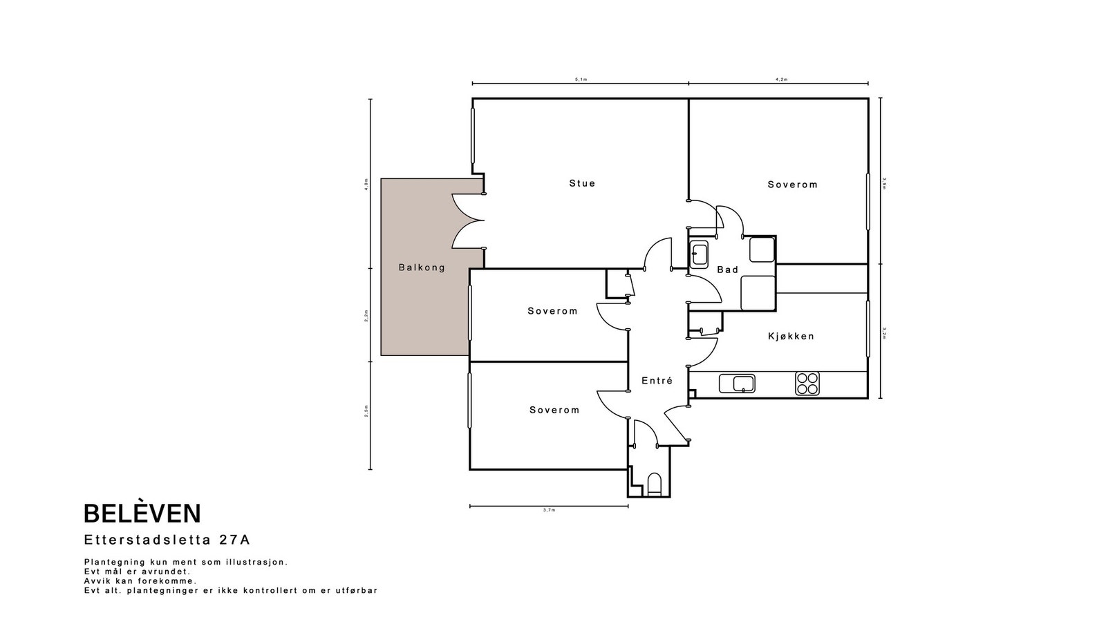
Etterstadsletta 27 A er en lys og velholdt 4-roms familieleilighet, beliggende i rolige omgivelser på populære Etterstad. Leiligheten kan by på en solrik vestvendt balkong med gode solforhold og flott utsyn over nærområdet. Leiligheten har to parkeringstillatelser. Fra boligen er det gangavstand til skoler, barnehager, butikker, marka og kollektivtransport - samtidig som det er tilbaketrukket.
Innvendig har leiligheten tidsriktige fargevalg og en smart planløsning. De store vindusflatene i to retninger sørger for rikelig med naturlig lysinnslipp. Leiligheten fikk et løft i 2018 med bl.a nymalte vegg- og himlingsoverflater og byttet gulv. Stuen har fine lysforhold og plass til møblement i form av sofagruppe og spisebord. Kjøkkenet er funksjonelt og velutstyrt med medfølgende hvitevarer. Videre har leiligheten et baderom pusset opp i regi av borettslaget, separat wc og tre romslige soverom.
Barnevennlig beliggenhet og boligens planløsning gjør dette til en attraktiv familiebolig.
Innvendig har leiligheten tidsriktige fargevalg og en smart planløsning. De store vindusflatene i to retninger sørger for rikelig med naturlig lysinnslipp. Leiligheten fikk et løft i 2018 med bl.a nymalte vegg- og himlingsoverflater og byttet gulv. Stuen har fine lysforhold og plass til møblement i form av sofagruppe og spisebord. Kjøkkenet er funksjonelt og velutstyrt med medfølgende hvitevarer. Videre har leiligheten et baderom pusset opp i regi av borettslaget, separat wc og tre romslige soverom.
Barnevennlig beliggenhet og boligens planløsning gjør dette til en attraktiv familiebolig.
NB: Knappen for å vise hele beskrivelsen har kun en visuell effekt.
NB: Knappen for å vise hele beskrivelsen har kun en visuell effekt.
Salgsoppgaven beskriver vesentlig og lovpålagt informasjon om eiendommen
Se komplett salgsoppgaveNærområdet
Belèven Eiendomsmegling
Prisstatistikk
Etterstadsletta 27A
3 383 klikk
på annonsen
83 188 kr
prisantydning per kvadratmeter
Prisfordeling
Pris per m² ligger 15 812 kr under snittet for leiligheter i Helsfyr - Sinsen.
Grafen viser antall leiligheter solgt i Helsfyr - Sinsen siste året fordelt på pris per m² - totalt 1 707 leiligheter
Antall boliger
Kvadratmeterpris tilsvarer prisantydning pluss fellesgjeld per kvadratmeter (p-rom eller BRA-i). Prisene i grafen er avrundet til nærmeste 1000 kr.
Annonsene kan være mangelfulle i forhold til lovpålagt opplysningsplikt. Før bindende avtale inngås oppfordres interessenter til å innhente komplett informasjon fra meglerforetaket, selger eller utleier.



























