Bildegalleri

Strøken 3-roms som ble renovert i 2019/20.
Solgt
Eberg
STRØKEN 3-ROMS. Lys og flott stue med spisestue. Moderne kjøkken. (TG1) Lekkert bad. (TG0/1) Vestvendt balkong. P-plass.
Prisantydning3 350 000 kr
Nøkkelinfo
- Boligtype
- Leilighet
- Eieform
- Andel
- Soverom
- 2
- Internt bruksareal
- 54 m² (BRA-i)
- Bruksareal
- 65 m²
- Eksternt bruksareal
- 11 m² (BRA-e)
- Balkong/Terrasse
- 9 m² (TBA)
- Etasje
- 1
- Byggeår
- 1971
- Energimerking
- F - Rød
- Rom
- 3
- Tomteareal
- 47 477 m² (eiet)
Fasiliteter
Balkong/Terrasse
Garasje/P-plass
Kabel-TV
Offentlig vann/kloakk
Ingen gjenboere
Turterreng
Vaktmester-/vektertjeneste
Sentralt
Bredbåndstilknytning
Moderne
Rolig
Om boligen
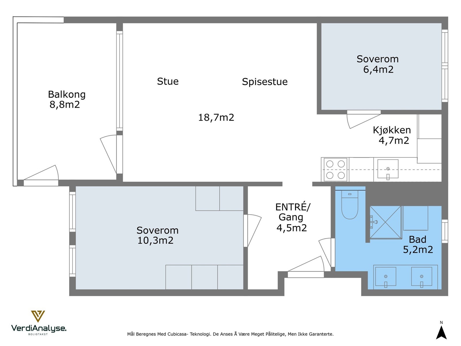
STRØKEN 3-ROMS - RENOVERT I 2019/20.
- Leiligheten har en god beliggenhet i området
- Ligger skjermet til i solrike og grønne omgivelser
- Egen balkong med trapp ned til stort grøntareal
- Lys og flott stue, med plass til egen spisestue
- Moderne kjøkken med integrerte hvitevarer
- Delikat, flislagt bad med behagelig gulvvarme og downlights
- 2 soverom på 10,3 kvm og 6,4 kvm. Skyvedørsgarderobe
- Medfølger 2 private boder i kjeller. Felles sykkelbod
- Inntil 2 oppstillingsplasser for bil
- Kort vei til buss samt flere dagligvarebutikker i nærområdet
- Gang og sykkelavstand til NTNU på Gløshaugen/ Dragvoll, St. Olavs m.m
- Fellesutgifter inkluderer kabel-tv/internett, trappevask, kommunale avgifter, renter og avdrag på fellesgjeld, vaktmestertjenester, bygningsforsikring m.m
NB: Knappen for å vise hele beskrivelsen har kun en visuell effekt.
NB: Knappen for å vise hele beskrivelsen har kun en visuell effekt.
Salgsoppgaven beskriver vesentlig og lovpålagt informasjon om eiendommen
Se komplett salgsoppgaveNyttige lenker
Nærområdet
EiendomsMegler 1 Valentinlyst
Vi loser deg trygt gjennom hele boligsalget
Prisstatistikk
Østre Berg 12
3 688 klikk
på annonsen
64 066 kr
prisantydning per kvadratmeter
Prisfordeling
Pris per m² ligger 1 066 kr over snittet for leiligheter i Trondheim Øst.
Grafen viser antall leiligheter solgt i Trondheim Øst siste året fordelt på pris per m² - totalt 2 611 leiligheter
Antall boliger
Kvadratmeterpris tilsvarer prisantydning pluss fellesgjeld per kvadratmeter (p-rom eller BRA-i). Prisene i grafen er avrundet til nærmeste 1000 kr.
Annonseinformasjon
| FINN-kode | 371138865 |
|---|---|
| Sist endret | 16. jan. 2025 06:13 |
| Referanse | 34240265 |
Annonsene kan være mangelfulle i forhold til lovpålagt opplysningsplikt. Før bindende avtale inngås oppfordres interessenter til å innhente komplett informasjon fra meglerforetaket, selger eller utleier.





















