Bildegalleri

Velkommen til Nedre Vålevegen 4!
Våler-Modernisert hel tomannsbolig med innredet hybelleilighet i kjeller. Gode leieinntekter på 25 000,- per mnd.
Prisantydning5 500 000 kr
Nøkkelinfo
- Boligtype
- Tomannsbolig
- Eieform
- Eier (Selveier)
- Soverom
- 8
- Internt bruksareal
- 287 m² (BRA-i)
- Bruksareal
- 422 m²
- Eksternt bruksareal
- 135 m² (BRA-e)
- Balkong/Terrasse
- 38 m² (TBA)
- Etasje
- 2
- Byggeår
- 1952
- Energimerking
- B - Lysegrønn
- Rom
- 11
- Tomteareal
- 2 602 m² (eiet)
Fasiliteter
Garasje/P-plass
Hage
Offentlig vann/kloakk
Rolig
Sentralt
Turterreng
Om boligen
Velkommen til Våler og Nedre Vålevegen 4!
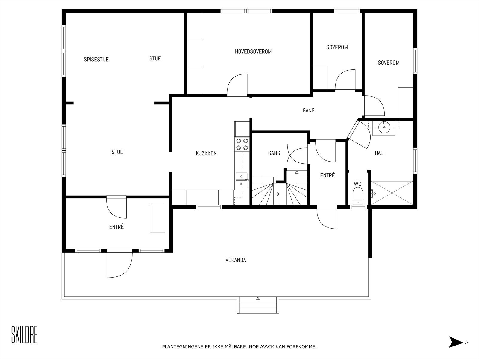
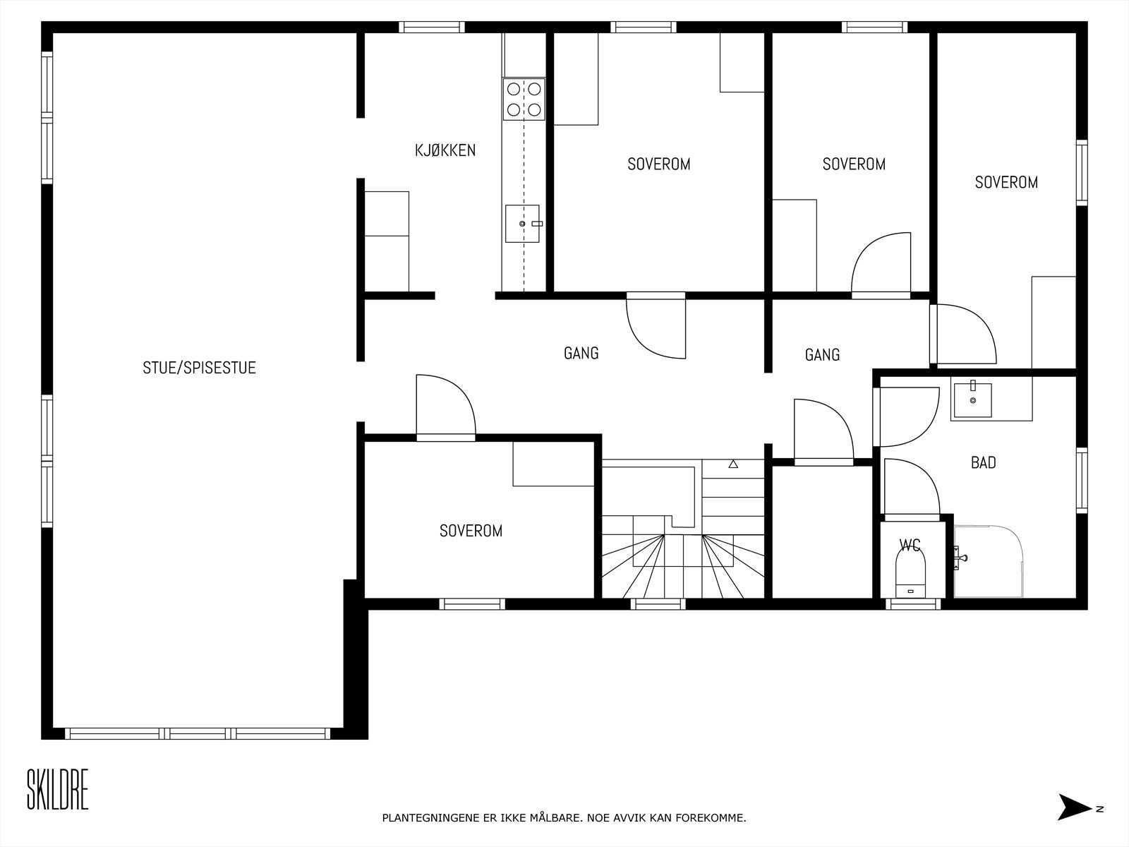
Her kan vi presentere en oppgradert hel tomannsbolig med innredet hybelleilighet i kjeller. Leiligheten i 1.etg består av 3 soverom, bad, wc, stue og kjøkken og vindfang. Leiligheten i 2.etg består av 4 soverom, bad, wc, stue, kjøkken og bod. Hybelleiligheten består av bad, stue/kjøkken, vindfang og ett soverom.
Frittstående garasje/utebod med oppgraderingsbehov.
Leieinntekter på kr. 25 000,- per mnd.
Det er gangavstand til Våler sentrum, samt dagligvare, barnehage skoler, bensinstasjon og Glomma blant annet. Fine turområder i nærheten, både sommer som vinter.
Velkommen til visning!
Meld deg på via påmeldingsknappen, eller ta kontakt med Hans Petter Carlsson, eiendomsmegler MNEF på tlf. 911 25 518.
Her kan vi presentere en oppgradert hel tomannsbolig med innredet hybelleilighet i kjeller. Leiligheten i 1.etg består av 3 soverom, bad, wc, stue og kjøkken og vindfang. Leiligheten i 2.etg består av 4 soverom, bad, wc, stue, kjøkken og bod. Hybelleiligheten består av bad, stue/kjøkken, vindfang og ett soverom.
Frittstående garasje/utebod med oppgraderingsbehov.
Leieinntekter på kr. 25 000,- per mnd.
Det er gangavstand til Våler sentrum, samt dagligvare, barnehage skoler, bensinstasjon og Glomma blant annet. Fine turområder i nærheten, både sommer som vinter.
Velkommen til visning!
Meld deg på via påmeldingsknappen, eller ta kontakt med Hans Petter Carlsson, eiendomsmegler MNEF på tlf. 911 25 518.
NB: Knappen for å vise hele beskrivelsen har kun en visuell effekt.
NB: Knappen for å vise hele beskrivelsen har kun en visuell effekt.
Salgsoppgaven beskriver vesentlig og lovpålagt informasjon om eiendommen
Se komplett salgsoppgaveNyttige lenker
Nærområdet
Meglerhuset Østlandet AS
Annonseinformasjon
| FINN-kode | 370489276 |
|---|---|
| Sist endret | 21. sep. 2025 13:34 |
| Referanse | GAR14.2494 |
Annonsene kan være mangelfulle i forhold til lovpålagt opplysningsplikt. Før bindende avtale inngås oppfordres interessenter til å innhente komplett informasjon fra meglerforetaket, selger eller utleier.








































