Bildegalleri

Jon Solberg ved EIE Løren har gleden av å presentere Kanonhallveien 58 J!
Solgt
Løren
Innbydende 3-roms endeleilighet med solrik markterrasse på 33 kvm. Garasje m/lader. Barnevennlig & populær beliggenhet!
Prisantydning6 700 000 kr
Nøkkelinfo
- Boligtype
- Leilighet
- Eieform
- Selveier
- Soverom
- 2
- Internt bruksareal
- 74 m² (BRA-i)
- Bruksareal
- 81 m²
- Eksternt bruksareal
- 7 m² (BRA-e)
- Balkong/Terrasse
- 33 m² (TBA)
- Etasje
- 1
- Byggeår
- 2006
- Energimerking
- D - Mørkegrønn
- Tomteareal
- 10 990 m² (eiet)
Fasiliteter
Barnevennlig
Balkong/Terrasse
Garasje/P-plass
Kabel-TV
Offentlig vann/kloakk
Parkett
Turterreng
Vaktmester-/vektertjeneste
Sentralt
Bredbåndstilknytning
Moderne
Rolig
Lademulighet
Balansert ventilasjon
Om boligen
Jon Solberg ved EIE Løren har gleden av å presentere Kanonhallveien 58 J!
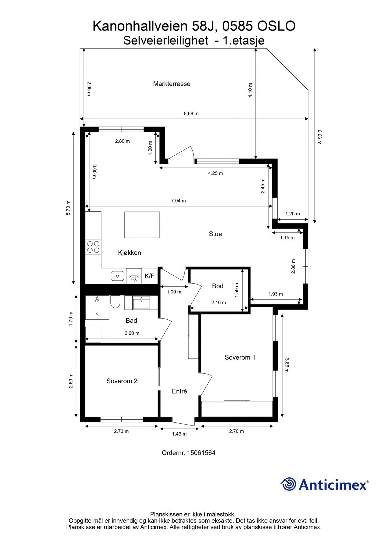
Dette er en lys og tiltalende 3-roms endeleilighet med meget god planløsning og flott beliggenhet like ved Lørenparken i bilfritt, barnevennlig miljø. Her får du gleden av en stor, privat uteplass på 33 kvm med gode solforhold. Store vindusflater kombinert med den gjennomgående planløsningen gir svært gode lysforhold i leiligheten.
Boligen inneholder en romslig stue med fine soneinndelinger og et pent kjøkken fra 2018 med mye skap- og benkeplass. Videre er det to gode soverom, delikat bad oppgradert i 2021, praktisk innvendig bod samt en lys entré.
A-konto fjernvarme (varmtvann og fyring), tv og bredbånd er inkludert i felleskostnadene. Garasjeplass med lader i kjeller samt ekstern bod på 7 kvm medfølger.
Velkommen til en hyggelig visning - denne bør ses!
Dette er en lys og tiltalende 3-roms endeleilighet med meget god planløsning og flott beliggenhet like ved Lørenparken i bilfritt, barnevennlig miljø. Her får du gleden av en stor, privat uteplass på 33 kvm med gode solforhold. Store vindusflater kombinert med den gjennomgående planløsningen gir svært gode lysforhold i leiligheten.
Boligen inneholder en romslig stue med fine soneinndelinger og et pent kjøkken fra 2018 med mye skap- og benkeplass. Videre er det to gode soverom, delikat bad oppgradert i 2021, praktisk innvendig bod samt en lys entré.
A-konto fjernvarme (varmtvann og fyring), tv og bredbånd er inkludert i felleskostnadene. Garasjeplass med lader i kjeller samt ekstern bod på 7 kvm medfølger.
Velkommen til en hyggelig visning - denne bør ses!
NB: Knappen for å vise hele beskrivelsen har kun en visuell effekt.
NB: Knappen for å vise hele beskrivelsen har kun en visuell effekt.
Salgsoppgaven beskriver vesentlig og lovpålagt informasjon om eiendommen
Se komplett salgsoppgaveNyttige lenker
Nærområdet
EIE eiendomsmegling Løren
Annonseinformasjon
| FINN-kode | 370467548 |
|---|---|
| Sist endret | 03. mars 2025 14:00 |
| Referanse | 71240344 |
Annonsene kan være mangelfulle i forhold til lovpålagt opplysningsplikt. Før bindende avtale inngås oppfordres interessenter til å innhente komplett informasjon fra meglerforetaket, selger eller utleier.






















































