Bildegalleri

EiendomsMegler 1 v/Kristian Sundland har gleden av å presentere et stilrent og moderne rekkehus i et meget populært boområde.
MODERNE OG FLOTT REKKEHUS FRA 2021 | Takterrasse m/glimrende sol- og utsiktsforhold |Familievennlig område | p-kjeller.
Nøkkelinfo
- Boligtype
- Rekkehus
- Eieform
- Andel
- Soverom
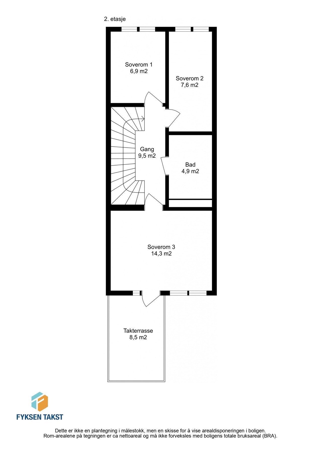
- 3
- Internt bruksareal
- 114 m² (BRA-i)
- Bruksareal
- 119 m²
- Eksternt bruksareal
- 5 m² (BRA-e)
- Balkong/Terrasse
- 34 m² (TBA)
- Byggeår
- 2021
- Energimerking
- A - Mørkegrønn
- Rom
- 4
- Tomt
- Eiet
Fasiliteter
Om boligen
Nå har du muligheten til å sikre deg et moderne og stilrent rekkehus fra 2021 med gjennomgående høy standard. Boligen har en særdeles god planløsning med bl.a 3 soverom, 2 romslige stuer, flislagt bad og 2 herlige takterrasser med nydelig sol- og utsiktsforhold. Boligens gjennomgående høye og moderne standard gjenspeiles i takstrapporten med TG0 og TG1 på alle punkter!
Rekkehuset har en fantastisk beliggenhet på det nyetablerte boligfeltet på Overvik. Her har man et rolig område med lite trafikk, fantastiske uteområder for rekreasjon og hygge, samtidig som man har flotte helårs turterreng rett utenfor dørstokken.
Av flere kvaliteter kan man spesielt nevne:
- 2 takterrasser med nydelig sol- og utsiktsforhold
- 3 gode soverom
- Praktisk avdelt toalettrom i 1.etasje som kan kombineres som et vaskerom
- Moderne fasiliteter som fjernvarme og balansert ventilasjon
- Stilrent kjøkken med integrerte hvitevarer
- Lyst og lekkert flislagt bad med alt man trenger
- P-plass i parkeringskjeller
Velkommen til en hyggelig visning!
Salgsoppgaven beskriver vesentlig og lovpålagt informasjon om eiendommen
Se komplett salgsoppgaveNyttige lenker
Nærområdet
EiendomsMegler 1 Grilstadporten
Prisstatistikk
Karen Aunes veg 11 B
på annonsen
prisantydning per kvadratmeter
Prisfordeling
Pris per m² ligger 10 052 kr over snittet for rekkehus i Trondheim Øst.
Grafen viser antall rekkehus solgt i Trondheim Øst siste året fordelt på pris per m² - totalt 194 rekkehus
Antall boliger
Kvadratmeterpris tilsvarer prisantydning pluss fellesgjeld per kvadratmeter (p-rom eller BRA-i). Prisene i grafen er avrundet til nærmeste 1000 kr.
Annonseinformasjon
| FINN-kode | 370397911 |
|---|---|
| Sist endret | 30. sep. 2025 00:24 |
| Referanse | 33240285 |
Annonsene kan være mangelfulle i forhold til lovpålagt opplysningsplikt. Før bindende avtale inngås oppfordres interessenter til å innhente komplett informasjon fra meglerforetaket, selger eller utleier.











































