Bildegalleri

Eiendommen har en romslig eiendom med store terrasser rundt hovedhuset. Utleieboligen ligger fint til ved siden av og har egen parkering og uteplass.
Jessheim
50 mål stor eiendom m/hovedhus og utleiebolig - Stall - Perfekt for hestehold - Hobbyverksted - Sentralt beliggende!
Prisantydning24 000 000 kr
Nøkkelinfo
- Boligtype
- Gårdsbruk/Småbruk
- Eieform
- Eier (Selveier)
- Soverom
- 5
- Internt bruksareal
- 319 m² (BRA-i)
- Bruksareal
- 772 m²
- Eksternt bruksareal
- 453 m² (BRA-e)
- Balkong/Terrasse
- 215 m² (TBA)
- Etasje
- 1
- Byggeår
- 1985
- Energimerking
- F - Oransje
- Rom
- 6
- Tomteareal
- 49 528 m² (eiet)
Fasiliteter
Aircondition
Balkong/Terrasse
Barnevennlig
Bredbåndstilknytning
Garasje/P-plass
Hage
Kjæledyr tillatt
Ingen gjenboere
Offentlig vann/kloakk
Parkett
Peis/Ildsted
Rolig
Sentralt
Utsikt
Turterreng
Om boligen
En unik eiendom i Markvegen på Ekornrud/Jessheim er tilsalgs - kun 3,7 km fra Jessheim sentrum finner du denne lekre eiendommen i skjermede omgivelser.
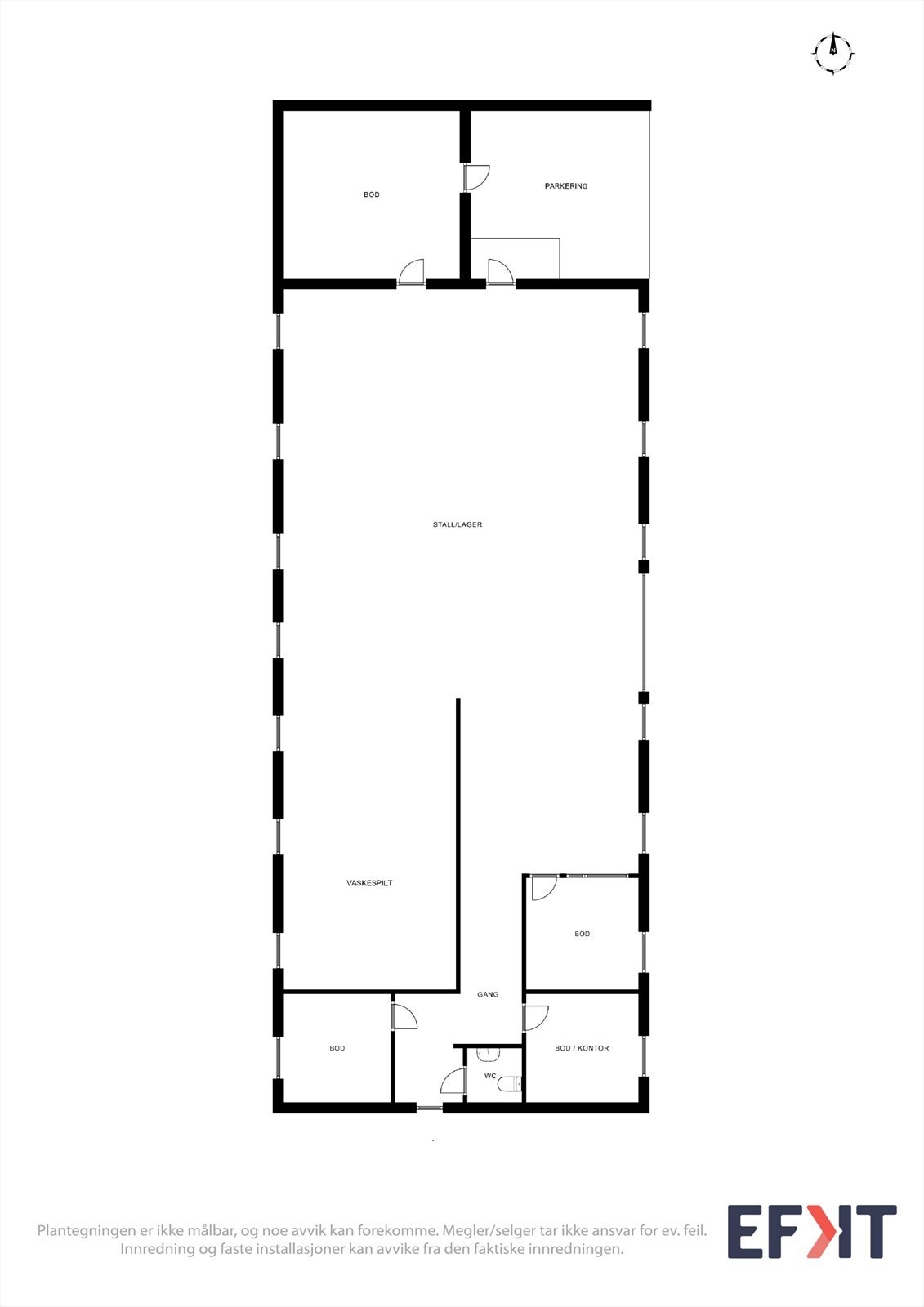
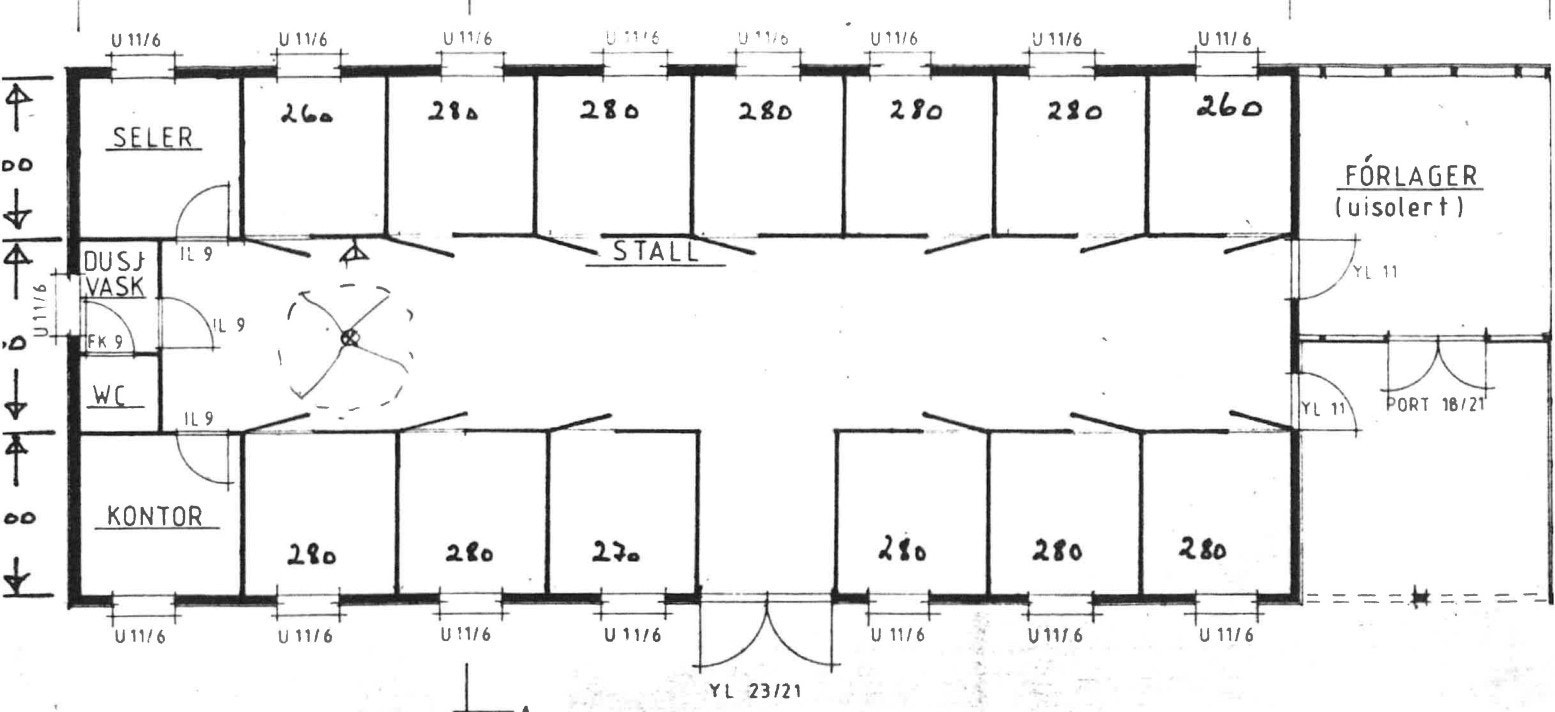
Den tidligere rideskolen har nyrenovert stall ombygd til lager, brakke m/to bokser, verksted/garasje, hovedhus og utleie bolig. Itillegg er det store paddocker og tilrettelagt for ridebane - turveier og galopp spor. Dette stedet er ideelt for videre drift innen hestehold eller annen virksomhet. Eiendommen tilbyr også muligheter for utvikling, med tilknytning til sentrale fasiliteter og enkel adkomst til hovedveier.
Buss fra hovedvegen 4-6 ganger i timen og ca 10 min til OSL Gardermoen samt togstasjon i sentrum.
Velkommen!
Den tidligere rideskolen har nyrenovert stall ombygd til lager, brakke m/to bokser, verksted/garasje, hovedhus og utleie bolig. Itillegg er det store paddocker og tilrettelagt for ridebane - turveier og galopp spor. Dette stedet er ideelt for videre drift innen hestehold eller annen virksomhet. Eiendommen tilbyr også muligheter for utvikling, med tilknytning til sentrale fasiliteter og enkel adkomst til hovedveier.
Buss fra hovedvegen 4-6 ganger i timen og ca 10 min til OSL Gardermoen samt togstasjon i sentrum.
Velkommen!
NB: Knappen for å vise hele beskrivelsen har kun en visuell effekt.
NB: Knappen for å vise hele beskrivelsen har kun en visuell effekt.
Salgsoppgaven beskriver vesentlig og lovpålagt informasjon om eiendommen
Se komplett salgsoppgaveNærområdet
Aktiv Kløfta
Annonseinformasjon
| FINN-kode | 370097122 |
|---|---|
| Sist endret | 26. nov. 2025 14:02 |
| Referanse | 1205240254 |
Annonsene kan være mangelfulle i forhold til lovpålagt opplysningsplikt. Før bindende avtale inngås oppfordres interessenter til å innhente komplett informasjon fra meglerforetaket, selger eller utleier.














































































