Bildegalleri

EiendomsMegler 1 v/Frank Robert Bae har gleden av å presentere en pen 2-roms selveierleilighet beliggende midt i hjertet av Midtbyen.
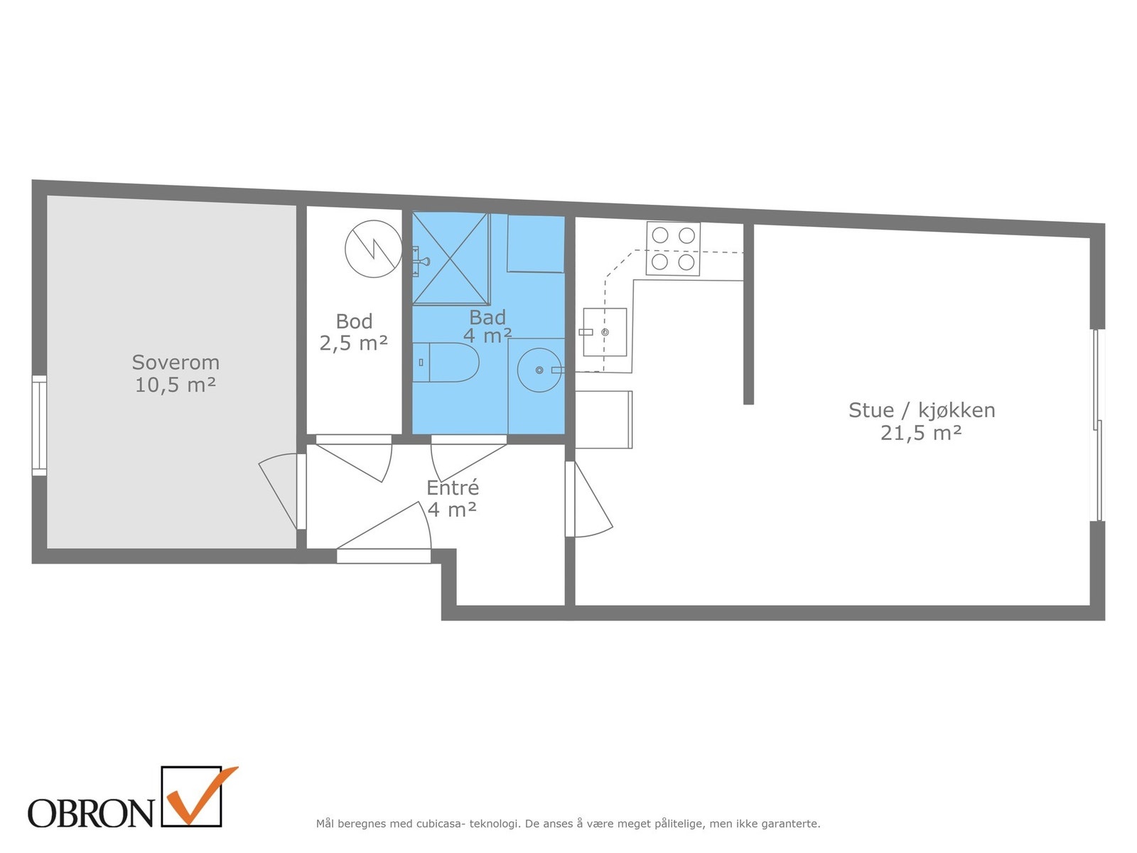
Pen og tilbaketrukket 2-roms selveierleilighet i 3. etasje fra 2004 - Lave felleskostn. - Sentralt med kort vei til alt!
Nøkkelinfo
- Boligtype
- Leilighet
- Eieform
- Eier (Selveier)
- Soverom
- 1
- Internt bruksareal
- 44 m² (BRA-i)
- Bruksareal
- 48 m²
- Eksternt bruksareal
- 4 m² (BRA-e)
- Etasje
- 3
- Byggeår
- 2004
- Energimerking
- D - Rød
- Rom
- 2
- Tomteareal
- 299 m² (eiet)
Fasiliteter
Om boligen
Leilighetsbygget ble oppført så sent som i 2004 og har derfor en nyere byggteknisk standard med moderne fasiliteter. Her bor man tilbaketrukket til i et rolig og skjermet nabolag, men likevel med gangavstand til alt byen har å by på. Er du student har du også gang- og sykkelavstand til de aller fleste studieinstitusjoner, samt byens beste busstilbud til de øvrige.
Kvaliteter verdt å fremheve:
- Romslig soverom vendt ut mot stille bakgård
- Flislagt bad med varmekabler i gulv og opplegg for vaskemaskin
- Delvis adskilt kjøkken hvor alle hvitevarer følger handelen
- Alle overflater er malt i tidsriktige fargetoner
- God lagringsplass i både intern og ekstern bod
- Lave felleskostnader som inkl. bl.a TV-pakke/fibernett og drift av sameiet
- Sikringsskap med automatsikringer
- Stor felles takterrasse
Velkommen til en hyggelig visning!
Salgsoppgaven beskriver vesentlig og lovpålagt informasjon om eiendommen
Se komplett salgsoppgaveNyttige lenker
Nærområdet
EiendomsMegler 1 Grilstadporten
Prisstatistikk
Taraldsgårdsveita 7
på annonsen
prisantydning per kvadratmeter
Prisfordeling
Pris per m² ligger 319 kr under snittet for leiligheter i Trondheim Sentrum.
Grafen viser antall leiligheter solgt i Trondheim Sentrum siste året fordelt på pris per m² - totalt 853 leiligheter
Antall boliger
Kvadratmeterpris tilsvarer prisantydning pluss fellesgjeld per kvadratmeter (p-rom eller BRA-i). Prisene i grafen er avrundet til nærmeste 1000 kr.
Annonseinformasjon
| FINN-kode | 370094046 |
|---|---|
| Sist endret | 26. nov. 2024 06:23 |
| Referanse | 33240190 |
Annonsene kan være mangelfulle i forhold til lovpålagt opplysningsplikt. Før bindende avtale inngås oppfordres interessenter til å innhente komplett informasjon fra meglerforetaket, selger eller utleier.





























