Bildegalleri

Velkommen til Slemdalsveien 71B!
Solgt
Vinderen
Innholdsrik og klassisk halvpart av tomannsbolig | Idyllisk hage og terrasse | Sentral beliggenhet
Prisantydning16 900 000 kr
Nøkkelinfo
- Boligtype
- Tomannsbolig
- Eieform
- Eier (Selveier)
- Soverom
- 4
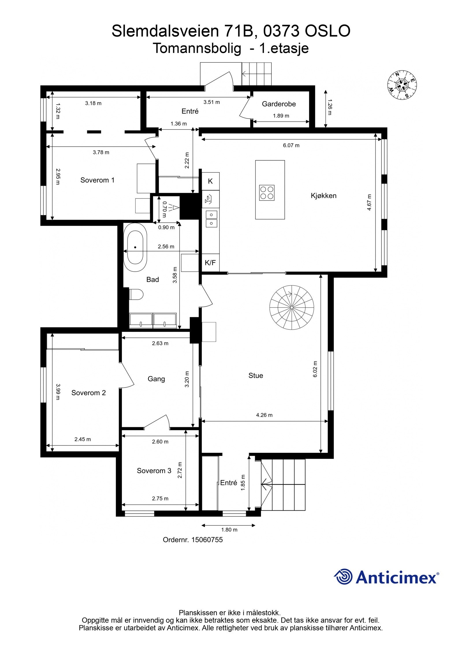
- Internt bruksareal
- 233 m² (BRA-i)
- Bruksareal
- 239 m²
- Eksternt bruksareal
- 6 m² (BRA-e)
- Balkong/Terrasse
- 96 m² (TBA)
- Etasje
- 1
- Byggeår
- 1917
- Energimerking
- F - Gul
- Tomteareal
- 461 m² (eiet)
Fasiliteter
Balkong/Terrasse
Peis/Ildsted
Parkett
Barnevennlig
Rolig
Kabel-TV
Moderne
Sentralt
Garasje/P-plass
Offentlig vann/kloakk
Bredbåndstilknytning
Lademulighet
Om boligen
Velkommen til Slemdalsveien 71B!
Klassisk, innholdsrik halvpart av horisontaldelt tomannsbolig over to plan på Vinderen. Eiendommen ligger i et attraktivt område på Vinderen rett ved skoler, barnehager, kollektivtransport, marka og et godt utvalg av fasiliteter og servicetilbud
Verdt å merke seg:
- Boligen er pusset opp i 1.etg. i 2019, bad i 2022.
- Ny fasade, drenering, isolasjon og tak i 2020
- 4 soverom og 2 bad.
- Store vindusflater og godt med lys
- Hyggelig kjøkken med spiseplass
- Stor underetasje med kjellerstue og soverom
- Eksklusiv bruksrett til idyllisk hage og terrasse med pergola
- Hagen og terrassen vender bort fra veien
- Godt med bodplass
- Parkeringsplasser med elbillader
Velkommen på visning!
NB: Knappen for å vise hele beskrivelsen har kun en visuell effekt.
NB: Knappen for å vise hele beskrivelsen har kun en visuell effekt.
Salgsoppgaven beskriver vesentlig og lovpålagt informasjon om eiendommen
Se komplett salgsoppgaveNærområdet
EIE eiendomsmegling Vinderen
Annonseinformasjon
| FINN-kode | 370019864 |
|---|---|
| Sist endret | 23. sep. 2024 13:05 |
| Referanse | 31240116 |
Annonsene kan være mangelfulle i forhold til lovpålagt opplysningsplikt. Før bindende avtale inngås oppfordres interessenter til å innhente komplett informasjon fra meglerforetaket, selger eller utleier.































































