Bildegalleri

EIE Eiendomsmegling har gleden av å presentere denne spektakulære eiendommen i Sør-Villen 24 - Denne muligheten vil du ikke la gå fra deg!
Rålekker enebolig med spektakulær beliggenhet og eiendom på 907 mål | Ekslusive og moderne løsninger | Fantastisk utsikt
Nøkkelinfo
- Boligtype
- Gårdsbruk/Småbruk
- Eieform
- Eier (Selveier)
- Soverom
- 4
- Internt bruksareal
- 242 m² (BRA-i)
- Bruksareal
- 301 m²
- Eksternt bruksareal
- 59 m² (BRA-e)
- Balkong/Terrasse
- 67 m² (TBA)
- Byggeår
- 1920
- Energimerking
- B - Gul
- Tomteareal
- 907 000 m² (eiet)
Om boligen
EIE eiendomsmegling har gleden av å presentere Sør-Villen 24 - En spektakulær utsiktseiendom i landlige omgivelser.
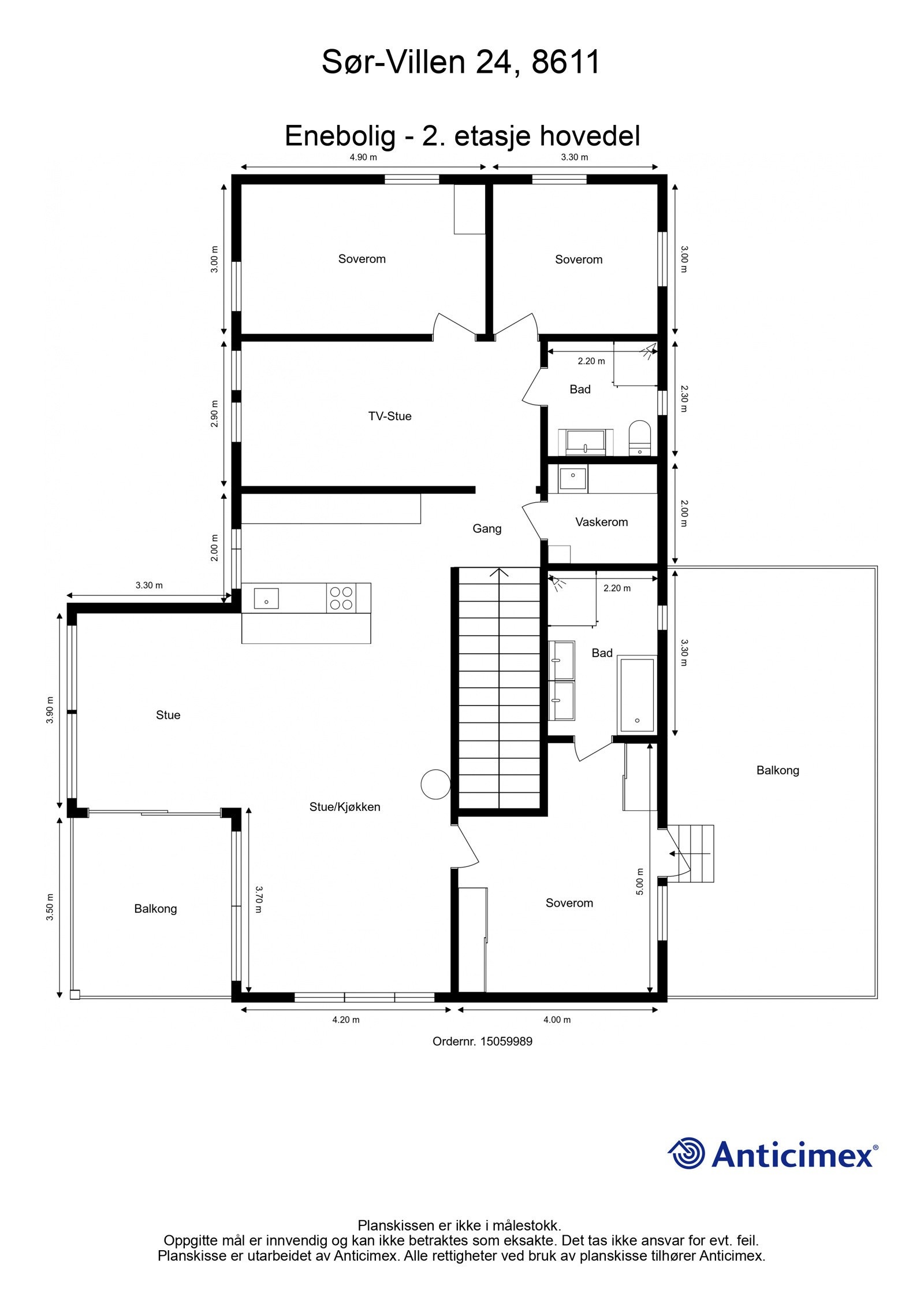
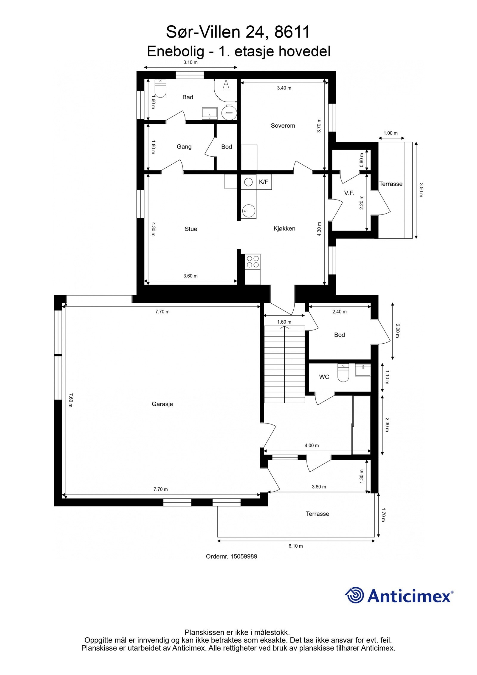
Velkommen til en bolig som kombinerer moderne design med eksklusive detaljer og gjennomtenkte løsninger. Her møtes romslige oppholdsrom, et stilrent kjøkken med integrerte hvitevarer mot en romslig stue og spisestue. Flere luksuriøse bad, alt i en lun og elegant fargepalett. Hovedsoverommet er en suite med eget bad, stor garderobe og utgang til en solrik terrasse. Videre har du to romslige soverom, TV-stue og vaskerom. Underetasjen byr på en separat leilighet, med mulighet for inntekt. Uteområdene er like imponerende med flere solrike terrasser og frodig tomt.
Denne eiendommen er en sjelden mulighet for deg som søker et drømmehjem i unike omgivelser.
EIE ønsker velkommen!
Salgsoppgaven beskriver vesentlig og lovpålagt informasjon om eiendommen
Se komplett salgsoppgaveNærområdet
EIE eiendomsmegling Mo i Rana
Annonseinformasjon
| FINN-kode | 369578795 |
|---|---|
| Sist endret | 07. sep. 2024 08:24 |
| Referanse | 100240035 |
Annonsene kan være mangelfulle i forhold til lovpålagt opplysningsplikt. Før bindende avtale inngås oppfordres interessenter til å innhente komplett informasjon fra meglerforetaket, selger eller utleier.












































