Bildegalleri

Velkommen til Hvitsteinbakken 24. Foto: Efkt - Eivind Stensnes
Holmestrand
Innflyttingsklar enebolig over 3 etasjer i attraktivt område med fantastisk sjøutsikt. Gangavstand til Fjellheisen/tog
Prisantydning7 990 000 kr
Nøkkelinfo
- Boligtype
- Enebolig
- Eieform
- Eier (Selveier)
- Soverom
- 3
- Internt bruksareal
- 283 m² (BRA-i)
- Bruksareal
- 319 m²
- Eksternt bruksareal
- 36 m² (BRA-e)
- Balkong/Terrasse
- 56 m² (TBA)
- Byggeår
- 1927
- Energimerking
- G - Oransje
- Rom
- 7
- Renovert år
- 2018
- Tomteareal
- 705 m² (eiet)
Fasiliteter
Balkong/Terrasse
Barnevennlig
Bredbåndstilknytning
Garasje/P-plass
Hage
Offentlig vann/kloakk
Parkett
Peis/Ildsted
Sentralt
Utsikt
Om boligen
Velkommen til Hvitsteinbakken 24!
Dette er en meget lekker og moderne enebolig med familievennlig og praktisk planløsning. Boligen er vesentlig oppgradert i 2017/2018. Nydelig sjøutsikt og gode solforhold.
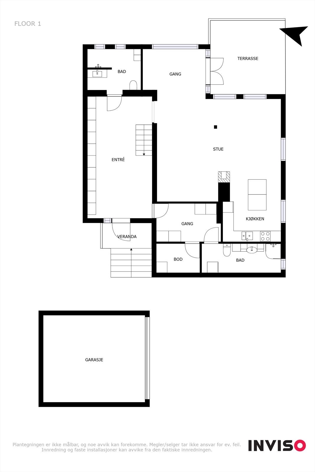
Boligen er over tre etasjer og er meget innholdsrik med bl.a. stor hall, 3 soverom, kontor, 2 bad, vaskerom, romslig kjøkken/stue, kjellerstue og loftsstue
- MøreRoyal Kledning
- Garasje
Boligen er beliggende i ett attraktivt boligområde med kort vei til skoler, barnehage og til forretninger både til Kleivbrottet og på Holmestrandtoppen. Flott stasjonshall med dobbelt spor til Oslo og heis ned til hallen fra Rove som tar deg ned til jernbanestasjon og til byens sentrum. I sentrum er det forretninger, badestrand, koselig båthavn, brygge, kafeer, vinmonopol og restauranter
Dette er en meget lekker og moderne enebolig med familievennlig og praktisk planløsning. Boligen er vesentlig oppgradert i 2017/2018. Nydelig sjøutsikt og gode solforhold.
Boligen er over tre etasjer og er meget innholdsrik med bl.a. stor hall, 3 soverom, kontor, 2 bad, vaskerom, romslig kjøkken/stue, kjellerstue og loftsstue
- MøreRoyal Kledning
- Garasje
Boligen er beliggende i ett attraktivt boligområde med kort vei til skoler, barnehage og til forretninger både til Kleivbrottet og på Holmestrandtoppen. Flott stasjonshall med dobbelt spor til Oslo og heis ned til hallen fra Rove som tar deg ned til jernbanestasjon og til byens sentrum. I sentrum er det forretninger, badestrand, koselig båthavn, brygge, kafeer, vinmonopol og restauranter
NB: Knappen for å vise hele beskrivelsen har kun en visuell effekt.
NB: Knappen for å vise hele beskrivelsen har kun en visuell effekt.
Salgsoppgaven beskriver vesentlig og lovpålagt informasjon om eiendommen
Se komplett salgsoppgaveNyttige lenker
Nærområdet
Eiendomsmegler 1 Holmestrand
et foretak i SpareBank 1 Sør-Norge konsernet
Annonseinformasjon
| FINN-kode | 368949003 |
|---|---|
| Sist endret | 13. jan. 2026 13:19 |
| Referanse | 2868250028 |
Annonsene kan være mangelfulle i forhold til lovpålagt opplysningsplikt. Før bindende avtale inngås oppfordres interessenter til å innhente komplett informasjon fra meglerforetaket, selger eller utleier.

















































