Bildegalleri

Velkommen til Slåttengvegen 1!
Solgt
Lekker, nyere, innholdsrikt og oppgradert rekkehus i ende - Beliggende like ved Tornesvatnet
Prisantydning3 390 000 kr
Nøkkelinfo
- Boligtype
- Rekkehus
- Eieform
- Eier (Selveier)
- Soverom
- 3
- Internt bruksareal
- 134 m² (BRA-i)
- Bruksareal
- 150 m²
- Eksternt bruksareal
- 16 m² (BRA-e)
- Balkong/Terrasse
- 27 m² (TBA)
- Etasje
- 2
- Byggeår
- 2017
- Energimerking
- B - Rød
- Rom
- 4
- Tomteareal
- 5 334 m² (eiet)
Fasiliteter
Balkong/Terrasse
Barnevennlig
Bredbåndstilknytning
Garasje/P-plass
Hage
Kjæledyr tillatt
Ingen gjenboere
Offentlig vann/kloakk
Parkett
Sentralt
Turterreng
Balansert ventilasjon
Om boligen
Velkommen til Slåttengvegen 1 - Tiltalende rekkehus med endebeliggenhet og flott uteområde!
Boligen har gjennomgående god standard over begge plan. Rekkehuset er påkostet utover utbyggers leveransebeskrivelse.
Boligen inneholder følgende rom:
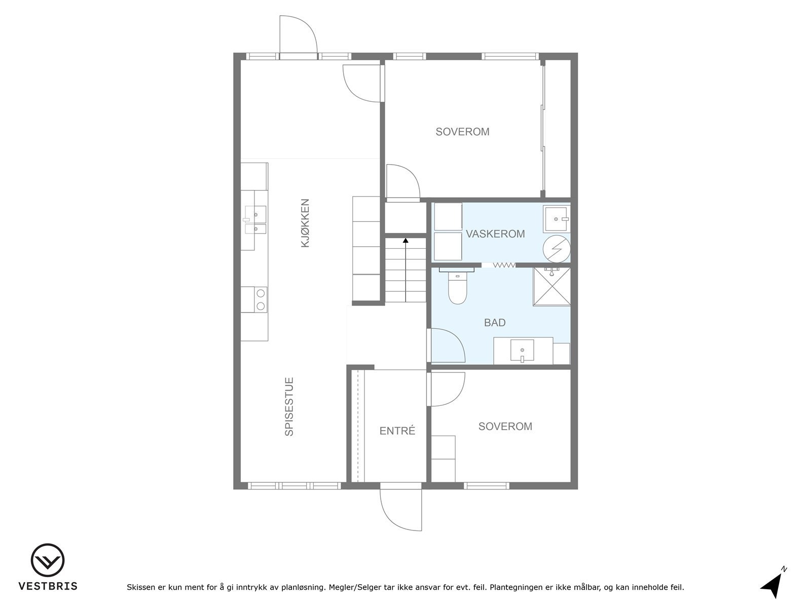
1. etasje: Entrè, kjøkken, soverom, soverom 2, bad og vaskerom.
2. etasje: Stue, soverom 3, rom med soveromsinnredning og bad.
Kjekk beliggenhet like ved Tornesvatnet. Her er det mange fritidsaktiviteter like ved og kort vei til sentrum og alle nødvendige fasiliteter. Barnehage, lekeplass og turområder like ved.
Boligen har gjennomgående god standard over begge plan. Rekkehuset er påkostet utover utbyggers leveransebeskrivelse.
Boligen inneholder følgende rom:
1. etasje: Entrè, kjøkken, soverom, soverom 2, bad og vaskerom.
2. etasje: Stue, soverom 3, rom med soveromsinnredning og bad.
Kjekk beliggenhet like ved Tornesvatnet. Her er det mange fritidsaktiviteter like ved og kort vei til sentrum og alle nødvendige fasiliteter. Barnehage, lekeplass og turområder like ved.
NB: Knappen for å vise hele beskrivelsen har kun en visuell effekt.
NB: Knappen for å vise hele beskrivelsen har kun en visuell effekt.
Salgsoppgaven beskriver vesentlig og lovpålagt informasjon om eiendommen
Se komplett salgsoppgaveNyttige lenker
Nærområdet
Eiendomsmegler Norge Haugesund
Best der du bor
Annonseinformasjon
| FINN-kode | 368913985 |
|---|---|
| Sist endret | 18. mars 2025 13:19 |
| Referanse | 19240176 |
Annonsene kan være mangelfulle i forhold til lovpålagt opplysningsplikt. Før bindende avtale inngås oppfordres interessenter til å innhente komplett informasjon fra meglerforetaket, selger eller utleier.








































